Bucklow Gardens, Lymm, WA13 9RQ
By Banner & Co
£ 400,000
Reviews
4 out of 5 stars
Banner & Co says ..
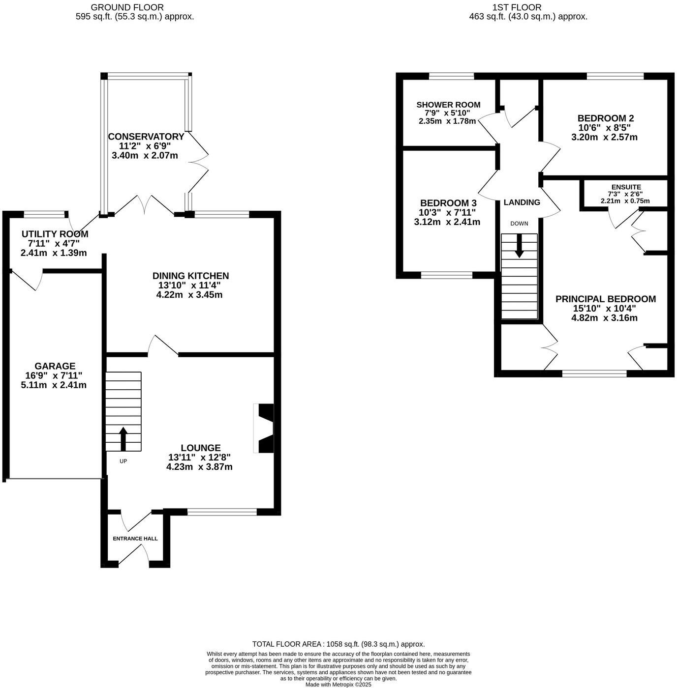
Well presented three bedroom semi-detached property located in a popular location within walking distance of local schools. Having the benefit of a driveway providing off-road parking, attached garage and fully enclosed lawned rear garden, early viewings are strongly recommended to appre...
Property Oracle says ..
Lymm is a highly sought-after village in Cheshire, known for its excellent schools, attractive green spaces, and convenient access to transport links to major cities such as Manchester. The property’s location on Bucklow Gardens places it within easy reach of Oughtrington Primary School (0.43km) and Lymm High School (0.88km), both well-regarded institutions. The proximity to these schools significantly enhances the property’s desirability for families. Additionally, the relatively close proximity to train stations such as Glazebrook (4.69km) provides convenient access to commuting routes.
Based on the provided images, the property appears to be in good condition. The interior is well-maintained and updated, with a modern kitchen and bathrooms. There is no visible evidence of significant wear and tear or the need for extensive renovations. The garden is a notable feature, offering a private outdoor space.
The property boasts a well-maintained garden, providing additional living space and enhancing its overall appeal. The size of the garden, while not explicitly stated in square footage, appears to be reasonably sized for a semi-detached property in Lymm.
Considering the property’s location in Lymm, its good condition, and the inclusion of a garden, the list price of £400,000 appears to be in line with the average price of similar properties in the area (£364,038). While the average price per square foot in the area is £337, the lack of plot size information for the subject property and nearby listings prevents a precise comparison on a per-square-foot basis. However, considering the overall market conditions and the property’s attributes, the list price is reasonably competitive.
Therefore, we give this property 8 / 10. *Disclaimer: This is our option and does constitute a recommendation or financial advice. Do your own research. *
- Price
- 8
- Condition
- 9
- Location
- 9
- Land
- 7
- Bedrooms
- 3
- Bathrooms
- 2
- Sqft (est)
- 1,058.00
The heatmap indicates the level of crime in the area. The color of the heatmap indicates the crime severity and recency.
Metrics Year-on-Year
- Average area value
- 415,495.00 £Increased by 10.96 %
- Est sale value
- 541,696.00 £Increased by 57.06 %
- Average area rental value
- 1,617.00 £/moIncreased by 34.75 %
- Est letting value
- 1,058.00 £/moUnchanged by 0.00 %
- Est rental Yield
- 4.67 %Increased by 21.30 %
- Crime Rate
- 14.00 %Unchanged by 0.00 %
Agent Activity
Banner & Co created the listing.
Nearby Schools
| Name | Type | Ofsted | Distance |
|---|---|---|---|
| Oughtrington Primary School | Academy Converter | 0.43 KM | |
| Lymm High School | Academy Converter | Good | 0.88 KM |
| Ravenbank Primary School | Academy Converter | 0.99 KM | |
| Lymm Children'S Centre | Children's Centre Linked Site | 2.15 KM | |
| St Helen'S Church Of England Primary School | Academy Converter | 3.19 KM |
Images
Nearby Streets
| Name | Average Price | Average Sqft | Distance |
|---|---|---|---|
| Dyers Lane | £ 0 | 0 | 0.00 KM |
| St. Peter's Close | £ 0 | 0 | 0.00 KM |
| Lodge Close | £ 0 | 0 | 0.00 KM |
| Green View | £ 360,000 | 0 | 0.00 KM |
| Cloverfield | £ 0 | 0 | 0.00 KM |
Nearby Transport
| Name | NLC | TLC | Distance |
|---|---|---|---|
| Glazebrook | 2301 | GLZ | 4.69 KM |
| Irlam | 2817 | IRL | 6.26 KM |
| Birchwood | 2304 | BWD | 7.50 KM |
Nearby Listings
| Address | Price | Type | Score | Distance |
|---|---|---|---|---|
| Bucklow Gardens, Lymm, WA13 9RQ | £ 400,000 | BUY | 8 / 10 | 0.00 KM |
| 60 Bucklow Gardens, Lymm | £ 370,000 | BUY | 7 / 10 | 0.03 KM |
| 60 Bucklow Gardens, Lymm | £ 390,000 | BUY | 7 / 10 | 0.03 KM |
| Rushgreen Road, Lymm | £ 575,000 | BUY | Unknown | 0.11 KM |
| The Greenacres, Lymm, WA13 9NT | £ 620,000 | BUY | 8 / 10 | 0.14 KM |
Nearby Properties
| Address | Price | Distance |
|---|---|---|
| 54 Bucklow Gardens | £ 215,000 | 0.01 KM |
| 48 Bucklow Gardens | £ 300,000 | 0.01 KM |
| 68 Bucklow Gardens | £ 235,000 | 0.01 KM |
| 90 Bucklow Gardens | £ 607,500 | 0.01 KM |
| 66 Bucklow Gardens | £ 116,000 | 0.01 KM |