DR
Alcester Road, Hollywood, B47 5NR
By Drakes Estate Agents
£ 585,000
Reviews
3 out of 5 stars
Drakes Estate Agents says ..
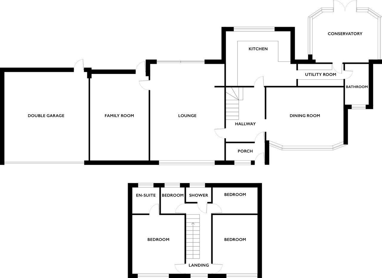
A spacious, extended detached home occupying an impressive plot with further scope for extension, subject to the relevant planning consent. The well-maintained accommodation comprises in brief of entrance porch, reception hall, lounge, dining room, study/family room, modern kitchen, utility, b...
Property Oracle says ..
Therefore, we give this property 7 / 10. *Disclaimer: This is our option and does constitute a recommendation or financial advice. Do your own research. *
- Price
- 7
- Condition
- 8
- Location
- 8
- Land
- 8
- Bedrooms
- 4
- Bathrooms
- 3
- Sqft (est)
- 1,932.00
The heatmap indicates the level of crime in the area. The color of the heatmap indicates the crime severity and recency.
Metrics Year-on-Year
- Average area value
- 463,235.00 £Increased by 4.33 %
- Est sale value
- 627,900.00 £Increased by 26.46 %
- Average area rental value
- 1,595.00 £/moIncreased by 25.10 %
- Est letting value
- 1,932.00 £/mo
- Est rental Yield
- 4.13 %Increased by 19.71 %
- Crime Rate
- 3.00 %Unchanged by 0.00 %
from 443,996.00 £
from 496,524.00 £
from 1,275.00 £/mo
from 0.00 £/mo
from 3.45 %
from 3.00 %
Agent Activity
Drakes Estate Agents created the listing.
Nearby Schools
| Name | Type | Ofsted | Distance |
|---|---|---|---|
| Coppice Primary School | Academy Converter | Good | 0.72 KM |
| Woodrush High School | Academy Converter | Good | 0.79 KM |
| Hollywood Primary School | Community School | Good | 1.07 KM |
| St Jude'S Catholic Primary School | Voluntary Aided School | Good | 1.53 KM |
| Cottonwood Children'S Centre | Children's Centre | 1.98 KM |
Images
Nearby Streets
| Name | Average Price | Average Sqft | Distance |
|---|---|---|---|
| Kenway | £ 0 | 0 | 0.00 KM |
| Elmwood Grove | £ 0 | 0 | 0.00 KM |
| Alcester Road | £ 0 | 0 | 0.00 KM |
| Dark Lane | £ 0 | 0 | 0.00 KM |
| Tudor Close | £ 0 | 0 | 0.00 KM |
Nearby Transport
| Name | NLC | TLC | Distance |
|---|---|---|---|
| Wythall | 4532 | WYT | 2.46 KM |
| Whitlocks End | 4539 | WTE | 3.45 KM |
| Earlswood (West Midlands) | 4520 | EWD | 3.87 KM |
| Shirley | 4526 | SRL | 4.27 KM |
| Yardley Wood | 4537 | YRD | 4.37 KM |
Nearby Listings
| Address | Price | Type | Score | Distance |
|---|---|---|---|---|
| Alcester Road, Hollywood, B47 5NR | £ 585,000 | BUY | 7 / 10 | 0.00 KM |
| Alcester Road, Hollywood | £ 400,000 | BUY | Unknown | 0.18 KM |
| Douglas Road, Birmingham | £ 300,000 | BUY | 7 / 10 | 0.20 KM |
| Douglas Road, Hollywood, B47 5JZ | £ 385,000 | BUY | 7 / 10 | 0.21 KM |
| Douglas Road, Hollywood, B47 5LB | £ 465,000 | BUY | 7 / 10 | 0.22 KM |
Nearby Properties
| Address | Price | Distance |
|---|---|---|
| 119 Alcester Road | £ 247,000 | 0.01 KM |
| 127 Alcester Road | £ 283,000 | 0.01 KM |
| 123 Alcester Road | £ 370,000 | 0.01 KM |
| 131 Alcester Road | £ 495,000 | 0.01 KM |
| 137 Alcester Road | £ 355,000 | 0.01 KM |