Merchant Exchange, Bridge Street, York Centre, YO1 6LT
By Hudson Moody
£ 395,000
Reviews
3 out of 5 stars
Hudson Moody says ..
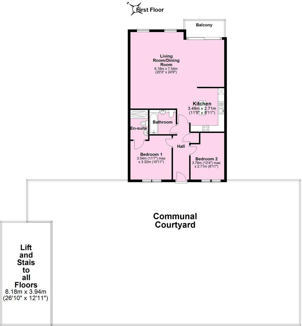
A STUNNING FIRST FLOOR APARTMENT with superb BACLONY views over the River Ouse. It is situated close to Ouse Bridge within the heart of the City of York. The property provides excellent city centre accommodation with two bedrooms and an open plan living area, balcony, two bathrooms and a secure...
Property Oracle says ..
This property is a 2 bedroom 2 bathroom apartment in York city centre. It is located on Skeldergate, close to the River Ouse and within walking distance of York city centre. The apartment is modern and well-presented, with a balcony offering views of the river. The property benefits from a good-sized living/dining area and a modern kitchen. While the apartment itself is modern, the overall plot size is relatively small. The list price is slightly below the average price for the area, but this is likely due to the smaller plot size compared to other properties in the area.
Therefore, we give this property 7 / 10. *Disclaimer: This is our option and does constitute a recommendation or financial advice. Do your own research. *
- Price
- 8
- Condition
- 9
- Location
- 10
- Land
- 3
- Bedrooms
- 2
- Bathrooms
- 2
- Sqft (est)
- 936.24
- Lot (est)
- 939.69
The heatmap indicates the level of crime in the area. The color of the heatmap indicates the crime severity and recency.
Metrics Year-on-Year
- Average area value
- 542,496.00 £Increased by 34.28 %
- Est sale value
- 391,348.32 £Increased by 33.55 %
- Average area rental value
- 1,435.00 £/moIncreased by 6.30 %
- Est letting value
- 936.24 £/moUnchanged by 0.00 %
- Est rental Yield
- 3.17 %Decreased by 20.95 %
- Crime Rate
- 22.00 %Unchanged by 0.00 %
Agent Activity
Hudson Moody created the listing.
Nearby Schools
| Name | Type | Ofsted | Distance |
|---|---|---|---|
| Scarcroft Primary School | Academy Converter | 0.78 KM | |
| Bootham School | Other Independent School | 0.87 KM | |
| York St John University | Higher Education Institutions | 1.01 KM | |
| St Wilfrid'S Catholic Primary School - A Catholic Voluntary Academy | Academy Converter | 1.08 KM | |
| Millthorpe School | Academy Converter | Good | 1.14 KM |
Images
Nearby Streets
| Name | Average Price | Average Sqft | Distance |
|---|---|---|---|
| Ouse Bridge | £ 0 | 0 | 0.00 KM |
| Victoria Cloisters | £ 251,667 | 0 | 0.00 KM |
| Bishops Court | £ 0 | 0 | 0.00 KM |
| King's Staith | £ 1,000,000 | 0 | 0.00 KM |
| Church Lane | £ 0 | 0 | 0.00 KM |
Nearby Transport
| Name | NLC | TLC | Distance |
|---|---|---|---|
| York | 8263 | YRK | 0.96 KM |
| Poppleton | 8254 | POP | 7.38 KM |
Nearby Listings
| Address | Price | Type | Score | Distance |
|---|---|---|---|---|
| Merchant Exchange, Bridge Street, York Centre, YO1 6LT | £ 395,000 | BUY | 7 / 10 | 0.00 KM |
| Merchant Exchange, Bridge Street, York, YO1 | £ 320,000 | BUY | 6 / 10 | 0.02 KM |
| Pound Lane, York, North Yorkshire, YO1 | £ 299,950 | BUY | 7 / 10 | 0.03 KM |
| Pound Lane, York, North Yorkshire, YO1 | £ 255,500 | BUY | 8 / 10 | 0.03 KM |
| Skeldergate, York, YO1 6DE | £ 425,000 | BUY | 6 / 10 | 0.06 KM |
Nearby Properties
| Address | Price | Distance |
|---|---|---|
| 18 Centurion Square | £ 240,000 | 0.09 KM |
| 23 Centurion Square | £ 280,000 | 0.09 KM |
| 24 Centurion Square | £ 325,000 | 0.09 KM |
| 5 Centurion Square | £ 162,000 | 0.09 KM |
| 14 Centurion Square | £ 170,000 | 0.09 KM |