Dexters says ..
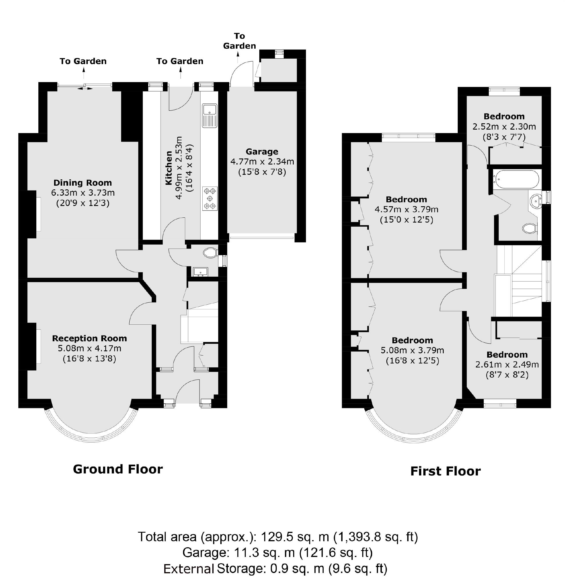
This semi-detached house benefits from close to 1,400 sq.ft of internal living space accommodating four bedrooms, one bathroom, WC, separate kitchen and two reception rooms. There is a generous garden, garage and ample off-street parking.
Property Oracle says ..
This is a four-bedroom house in Cricklewood, London. The property is in a good location, close to schools and transportation. The property is in need of some renovation, but it has a good-sized garden. The price is reasonable for the area.
Therefore, we give this property 6 / 10. *Disclaimer: This is our option and does constitute a recommendation or financial advice. Do your own research. *
- Price
- 7
- Condition
- 5
- Location
- 7
- Land
- 7
- Bedrooms
- 4
- Bathrooms
- 1
- Sqft (est)
- 1,393.93
The heatmap indicates the level of crime in the area. The color of the heatmap indicates the crime severity and recency.
Metrics Year-on-Year
- Average area value
- 1,318,000.00 £Increased by 70.66 %
- Est sale value
- 2,056,046.75 £Increased by 119.49 %
- Average area rental value
- 1,474.00 £/moDecreased by 27.60 %
- Est letting value
- 1,393.93 £/moUnchanged by 0.00 %
- Est rental Yield
- 1.34 %Decreased by 57.59 %
- Crime Rate
- 2.00 %Unchanged by 0.00 %
Agent Activity
Dexters created the listing.
Nearby Schools
| Name | Type | Ofsted | Distance |
|---|---|---|---|
| Anson Primary School | Community School | Good | 0.42 KM |
| Mora Primary School | Community School | Good | 0.46 KM |
| Convent Of Jesus And Mary Rc Infant School | Voluntary Aided School | Outstanding | 0.98 KM |
| Our Lady Of Grace Rc Infant And Nursery School | Academy Converter | 0.99 KM | |
| Gladstone Park Primary School | Academy Sponsor Led | Good | 1.01 KM |
Images
Nearby Streets
| Name | Average Price | Average Sqft | Distance |
|---|---|---|---|
| Gardiner Avenue | £ 0 | 0 | 0.00 KM |
| Clovelly Court | £ 0 | 0 | 0.00 KM |
| Stoll Close | £ 0 | 0 | 0.00 KM |
| Hudson Way | £ 625,000 | 0 | 0.00 KM |
| Kendal Road | £ 0 | 0 | 0.00 KM |
Nearby Transport
| Name | NLC | TLC | Distance |
|---|---|---|---|
| Cricklewood | 1519 | CRI | 1.15 KM |
| Brondesbury Park | 1438 | BSP | 2.15 KM |
| Kensal Rise | 1448 | KNR | 2.35 KM |
| Brondesbury | 1437 | BSY | 2.53 KM |
| Kensal Green | 1447 | KNL | 2.79 KM |
Nearby Listings
| Address | Price | Type | Score | Distance |
|---|---|---|---|---|
| Wren Avenue, Cricklewood | £ 1,295,000 | BUY | 6 / 10 | 0.00 KM |
| Wren Avenue, Cricklewood | £ 1,250,000 | BUY | 6 / 10 | 0.00 KM |
| Anson Road, Cricklewood | £ 2,000,000 | BUY | 8 / 10 | 0.10 KM |
| Dawson Road, Cricklewood, London, NW2 | £ 1,600,000 | BUY | 7 / 10 | 0.11 KM |
| Dawson Road, Willesden Green | £ 1,700,000 | BUY | 6 / 10 | 0.12 KM |
Nearby Properties
| Address | Price | Distance |
|---|---|---|
| 27 Wren Avenue | £ 440,000 | 0.01 KM |
| 23 Wren Avenue | £ 335,000 | 0.01 KM |
| 25 Wren Avenue | £ 1,399,950 | 0.01 KM |
| 21 Wren Avenue | £ 1,435,000 | 0.01 KM |
| 29 Wren Avenue | £ 930,000 | 0.01 KM |