Exeter
UN

Exeter

By Underhill Estate Agents

£ 325,000

Reviews

3 out of 5 stars

Underhill Estate Agents says ..

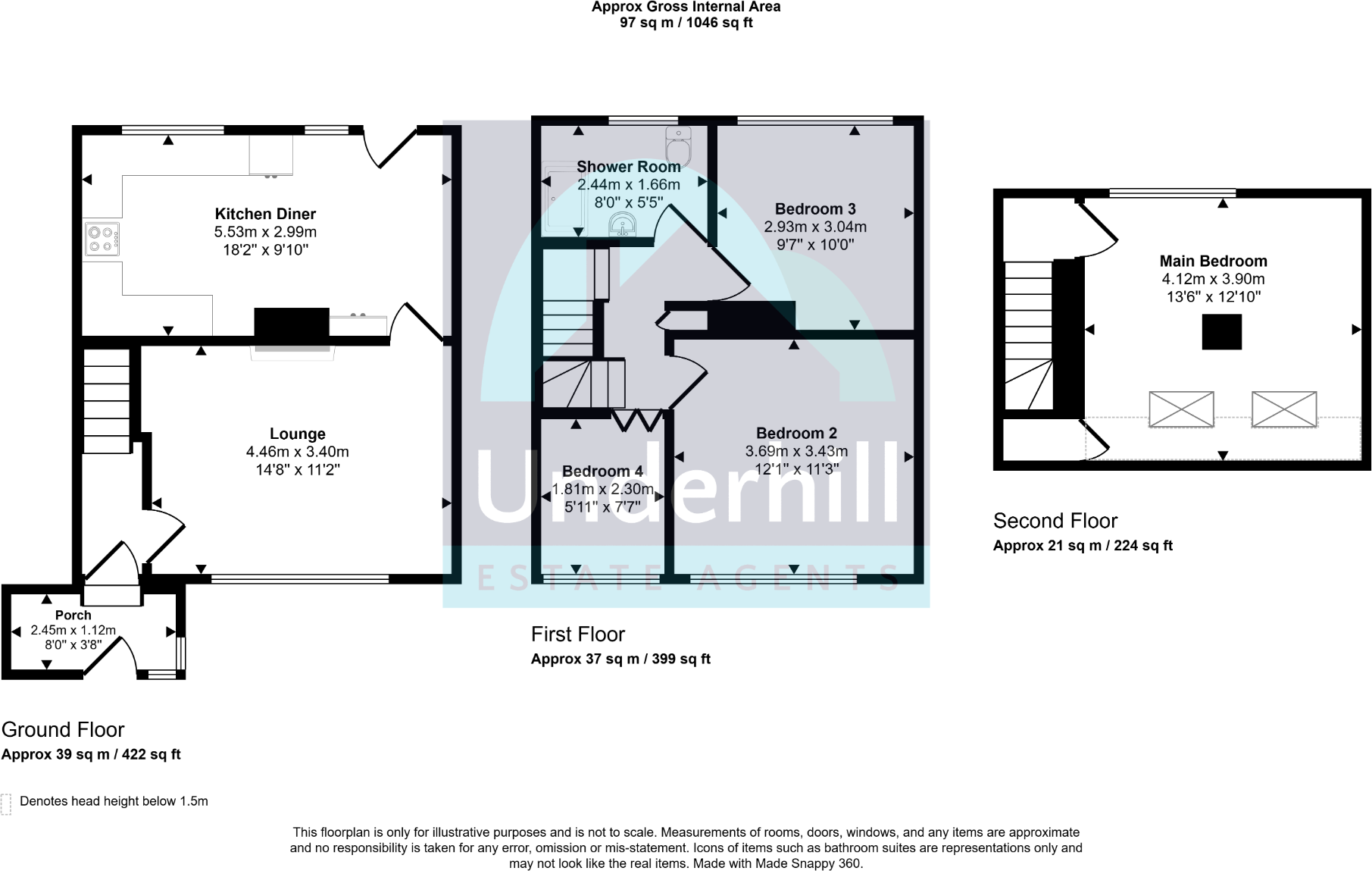
Underhill Estate Agents are delighted to bring to market this well presented four bedroom, mid-terrace house, west of the river in Exeter. This bright and spacious property has a good sized living room, spacious fitted kitchen - diner, sitting room, three bedrooms and a modern fitted shower room ...

Property Oracle says ..

This 4-bedroom, 1-bathroom property in Exwick, Exeter, presents a potentially attractive option for families. The property’s interior appears well-maintained and updated, with modern flooring and kitchen appliances giving it a contemporary feel. The presence of a garden, although relatively modest in size, is a positive feature, particularly for families. The location benefits from being close to several well-regarded primary schools and Exeter St David’s railway station. The list price of £325,000 seems reasonable in the context of comparable properties in the area, although a more detailed comparison would require more precise data on square footage and property features of nearby sales. Potential buyers should conduct a thorough survey to assess the property’s condition further and confirm the absence of any hidden issues. The limited plot size might be a drawback for buyers seeking a larger outdoor space. Overall, the property presents a good balance of location, condition, and price, making it a viable option for those seeking a family home in Exeter.

Therefore, we give this property 6 / 10. *Disclaimer: This is our option and does constitute a recommendation or financial advice. Do your own research. *

Price
7
Condition
6
Location
7
Land
4
Bedrooms
4
Bathrooms
1
Sqft (est)
1,046.00

The heatmap indicates the level of crime in the area. The color of the heatmap indicates the crime severity and recency.

Metrics Year-on-Year

Average area value
237,000.00 £
Decreased by 16.10 %
from 282,477.00 £
Est sale value
372,376.00 £
Increased by 5.01 %
from 354,594.00 £
Average area rental value
1,204.00 £/mo
Increased by 6.36 %
from 1,132.00 £/mo
Est letting value
1,046.00 £/mo
Unchanged by 0.00 %
from 1,046.00 £/mo
Est rental Yield
6.10 %
Increased by 26.82 %
from 4.81 %
Crime Rate
2.00 %
Unchanged by 0.00 %
from 2.00 %

Agent Activity

  • Underhill Estate Agents created the listing.

Nearby Schools

NameTypeOfstedDistance
Redhills Primary SchoolAcademy ConverterGood0.13 KM
Torlands AcademyAcademy Alternative Provision Converter0.57 KM
Bowhill Primary SchoolAcademy ConverterGood0.79 KM
Montgomery Primary SchoolFoundation SchoolGood0.86 KM
West Exe Children'S CentreChildren's Centre0.94 KM

Images

Front of Property Views From Property Kitchen/Diner First Floor Landing Bedroom Four Bedroom Three Views From Property Views From Property Rear Garden Rear Garden Patio Rear Garden Patio Front of Property Kitchen/Diner Lounge Bedroom Two Kitchen View from Ground floor Bedroom Two Bedroom Three Bedroom Four Bathroom View from First Floor Master Bedroom View from Second Floor Porch Patio First Tier of Garden Second Tier of Garden View from top of Garden View of Garden from First Floor

Nearby Streets

NameAverage PriceAverage SqftDistance
Ashleigh Close £ 000.00 KM
Isleworth Road £ 000.00 KM
Cleve Road £ 300,00000.00 KM
Chester Close £ 000.00 KM
Emmanuel Close £ 000.00 KM

Nearby Transport

NameNLCTLCDistance
Exeter St David'S3410EXD1.20 KM
Exeter St Thomas3414EXT1.49 KM
Exeter Central5755EXC2.06 KM
St James Park (Exeter)5751SJP3.40 KM
Polsloe Bridge3422POL5.56 KM

Nearby Listings

AddressPriceTypeScoreDistance
Exeter £ 325,000BUY6 / 100.00 KM
Wellpark Close, Redhills, EX4 £ 240,000BUY5 / 100.00 KM
Wellpark Close, Exeter £ 300,000BUYUnknown0.00 KM
Wellpark Close, Exeter, EX4 £ 270,000BUY6 / 100.03 KM
Wellpark Close, Redhills, Exeter £ 240,000BUYUnknown0.05 KM

Nearby Properties

AddressPriceDistance
37 Wellpark Close £ 225,0000.01 KM
26 Wellpark Close £ 220,0000.01 KM
2 Wellpark Close £ 164,0000.01 KM
35 Wellpark Close £ 178,0000.01 KM
36 Wellpark Close £ 164,2000.01 KM