Westhill Avenue, Torquay, TQ1 4LQ
By Taylors (Torbay) Ltd
£ 250,000
Reviews
3 out of 5 stars
Taylors (Torbay) Ltd says ..
GUIDE PRICE £250,000 - £260,000 Taylors are delighted to offer this beautifully presented spacious and bright property in a popular area of Torquay. Viewing highly recommended.
Property Oracle says ..
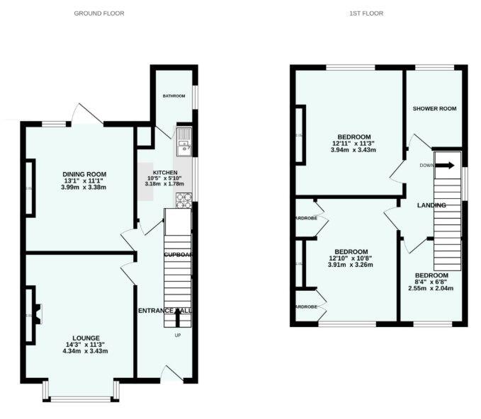
This property is a 3-bedroom semi-detached house located in St Marychurch, Torquay. The location benefits from being close to several well-regarded schools, including Homelands Primary School (Good Ofsted rating) and St Margaret’s Academy (Good Ofsted rating), both within a short distance. Several train stations are also within reasonable proximity, providing convenient access to other towns. The property itself appears to be well-maintained and in good condition, with a pleasant garden visible in the provided photos. The interior photos show a modern and updated kitchen and bathrooms. The list price of £250,000 seems reasonable compared to the average price of similar properties in the area, although it is slightly below the average price of £300,134. However, the lack of plot size information makes a definitive statement on value difficult.
Therefore, we give this property 7 / 10. *Disclaimer: This is our option and does constitute a recommendation or financial advice. Do your own research. *
- Price
- 7
- Condition
- 8
- Location
- 8
- Land
- 7
- Bedrooms
- 3
- Bathrooms
- 2
- Sqft (est)
- 793.27
The heatmap indicates the level of crime in the area. The color of the heatmap indicates the crime severity and recency.
Metrics Year-on-Year
- Average area value
- 396,809.00 £Increased by 30.40 %
- Est sale value
- 184,831.91 £Decreased by 15.88 %
- Average area rental value
- 892.00 £/moDecreased by 10.80 %
- Est letting value
- 0.00 £/mo
- Est rental Yield
- 2.70 %Decreased by 31.47 %
- Crime Rate
- 4.00 %Unchanged by 0.00 %
Agent Activity
Taylors (Torbay) Ltd created the listing.
Nearby Schools
| Name | Type | Ofsted | Distance |
|---|---|---|---|
| Homelands Primary School | Community School | Good | 0.26 KM |
| St Margaret'S Academy | Academy Converter | Good | 0.41 KM |
| St Cuthbert Mayne School | Voluntary Aided School | Good | 0.54 KM |
| Priory Roman Catholic Primary School, Torquay | Academy Converter | Requires improvement | 0.57 KM |
| Upton St James Cofe Primary School | Academy Converter | Good | 0.71 KM |
Images
Nearby Streets
| Name | Average Price | Average Sqft | Distance |
|---|---|---|---|
| Shirburn Road | £ 0 | 0 | 0.00 KM |
| Third Avenue | £ 0 | 0 | 0.00 KM |
| Lymington Road | £ 0 | 0 | 0.00 KM |
| Greenway Close | £ 250,000 | 0 | 0.00 KM |
| Garden Road | £ 0 | 0 | 0.00 KM |
Nearby Transport
| Name | NLC | TLC | Distance |
|---|---|---|---|
| Torre | 3432 | TRR | 1.91 KM |
| Torquay | 3434 | TQY | 2.50 KM |
| Paignton | 3427 | PGN | 6.28 KM |
| Teignmouth | 3430 | TGM | 8.57 KM |
| Newton Abbot | 3426 | NTA | 9.41 KM |
Nearby Listings
| Address | Price | Type | Score | Distance |
|---|---|---|---|---|
| Westhill Avenue, Torquay, TQ1 4LQ | £ 250,000 | BUY | 7 / 10 | 0.00 KM |
| Chatto Road, Torquay | £ 400,000 | BUY | 6 / 10 | 0.09 KM |
| Chatto Road, Torquay, TQ1 | £ 250,000 | BUY | 6 / 10 | 0.10 KM |
| Torquay, TQ1 4FQ | £ 275,000 | BUY | 7 / 10 | 0.12 KM |
| 23 Main Avenue, Torquay | £ 260,000 | BUY | 6 / 10 | 0.14 KM |
Nearby Properties
| Address | Price | Distance |
|---|---|---|
| 48 Westhill Avenue | £ 205,000 | 0.01 KM |
| 43 Westhill Avenue | £ 135,000 | 0.01 KM |
| 53a Westhill Avenue | £ 163,000 | 0.01 KM |
| 51 Westhill Avenue | £ 161,500 | 0.01 KM |
| 49 Westhill Avenue | £ 193,995 | 0.01 KM |