Pearsons says ..
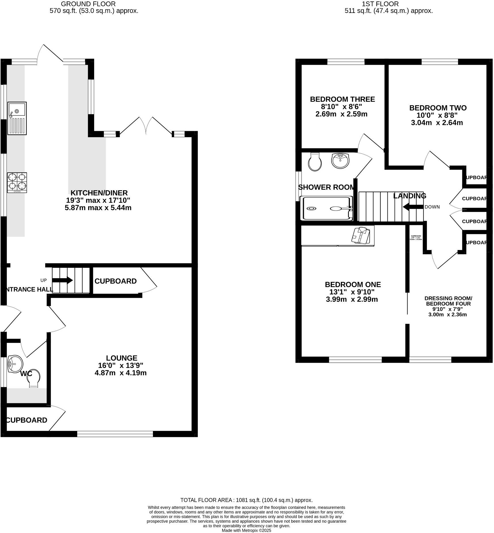
A beautifully presented semi-detached house located within the popular Uplands development. The house was originally designed as a four bedroom and has been cleverly modified to provide a dressing room to the principal bedroom, but could be separated and turned back into a four bedroom home if re...
Property Oracle says ..
This is a semi-detached property in Fareham North. The property benefits from a modern interior, a garden, and off-street parking. While the location offers proximity to schools and transport, the price appears high compared to the average for the area, especially considering the smaller square footage.
Therefore, we give this property 7 / 10. *Disclaimer: This is our option and does constitute a recommendation or financial advice. Do your own research. *
- Price
- 6
- Condition
- 8
- Location
- 7
- Land
- 7
- Bedrooms
- 3
- Bathrooms
- 1
- Sqft (est)
- 252.52
The heatmap indicates the level of crime in the area. The color of the heatmap indicates the crime severity and recency.
Metrics Year-on-Year
- Average area value
- 316,146.00 £Decreased by 21.41 %
- Est sale value
- 94,695.00 £Increased by 22.15 %
- Average area rental value
- 2,250.00 £/moIncreased by 65.56 %
- Est letting value
- 505.04 £/moIncreased by 100.00 %
- Est rental Yield
- 8.54 %Increased by 110.86 %
- Crime Rate
- 2.00 %Unchanged by 0.00 %
Agent Activity
Pearsons created the listing.
Nearby Schools
| Name | Type | Ofsted | Distance |
|---|---|---|---|
| Uplands Primary School | Community School | Good | 0.69 KM |
| Orchard Lea Junior School | Community School | Good | 0.87 KM |
| Orchard Lea Infant School | Community School | Good | 0.89 KM |
| Kingsgate School | Other Independent Special School | Good | 1.38 KM |
| Fareham College | Further Education | Outstanding | 1.40 KM |
Images
Nearby Streets
| Name | Average Price | Average Sqft | Distance |
|---|---|---|---|
| Braemar Close | £ 0 | 0 | 0.00 KM |
| Hillary Close | £ 355,000 | 0 | 0.00 KM |
| Tanglewood | £ 750,000 | 0 | 0.00 KM |
| Craven Court | £ 315,000 | 0 | 0.00 KM |
| Tennyson Gardens | £ 0 | 0 | 0.00 KM |
Nearby Transport
| Name | NLC | TLC | Distance |
|---|---|---|---|
| Fareham | 5900 | FRM | 1.24 KM |
| Swanwick | 5920 | SNW | 7.82 KM |
| Portchester | 5928 | PTC | 8.13 KM |
| Botley | 5894 | BOE | 9.13 KM |
Nearby Listings
| Address | Price | Type | Score | Distance |
|---|---|---|---|---|
| LYNTON GARDENS, FAREHAM | £ 400,000 | BUY | 7 / 10 | 0.00 KM |
| LYNTON GARDENS, FAREHAM | £ 345,000 | BUY | 7 / 10 | 0.00 KM |
| Lynton Gardens, Fareham | £ 400,000 | BUY | Unknown | 0.05 KM |
| Lynton Gardens, Fareham, Hampshire, PO16 | £ 400,000 | BUY | 7 / 10 | 0.06 KM |
| The Cedars, FAREHAM | £ 900,000 | BUY | 8 / 10 | 0.10 KM |
Nearby Properties
| Address | Price | Distance |
|---|---|---|
| 6 Lynton Gardens | £ 182,000 | 0.01 KM |
| 3 Lynton Gardens | £ 182,000 | 0.01 KM |
| 2 Lynton Gardens | £ 330,000 | 0.01 KM |
| 21 Lynton Gardens | £ 325,000 | 0.01 KM |
| 12 Lynton Gardens | £ 249,995 | 0.01 KM |