Stone Estate Agency says ..
Tucked away along the leafy serenity of Fairfield Avenue, this distinctive collection of beautifully crafted homes offers a life perfectly balanced between the timeless charm of classic architecture and the effortless ease of contemporary design. Each residence feels like a carefully composed wor...
Property Oracle says ..
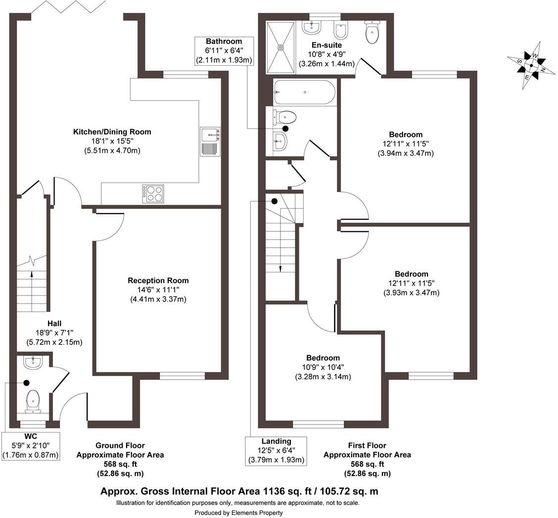
This is a modern semi-detached property located on Fairfield Avenue in Horley, Surrey. It features three bedrooms and two bathrooms, with a total square footage of 1,136. The property benefits from a well-maintained garden. The interior appears to be in excellent condition, with a modern kitchen and bathrooms. The property is conveniently located near schools and transportation links, including Horley train station and Gatwick Airport. The asking price of £595,000 seems reasonable given the property’s size, condition, and location.
Therefore, we give this property 7 / 10. *Disclaimer: This is our option and does constitute a recommendation or financial advice. Do your own research. *
- Price
- 7
- Condition
- 9
- Location
- 7
- Land
- 7
- Bedrooms
- 3
- Bathrooms
- 2
- Sqft (est)
- 1,136.00
The heatmap indicates the level of crime in the area. The color of the heatmap indicates the crime severity and recency.
Metrics Year-on-Year
- Average area value
- 401,643.00 £Decreased by 13.23 %
- Est sale value
- 540,736.00 £Increased by 40.83 %
- Average area rental value
- 1,377.00 £/moDecreased by 6.96 %
- Est letting value
- 1,136.00 £/moUnchanged by 0.00 %
- Est rental Yield
- 4.11 %Increased by 7.03 %
- Crime Rate
- 1.00 %Unchanged by 0.00 %
Agent Activity
Stone Estate Agency created the listing.
Nearby Schools
| Name | Type | Ofsted | Distance |
|---|---|---|---|
| Horley Infant School | Community School | Good | 0.77 KM |
| Yattendon School | Foundation School | Good | 1.07 KM |
| Oakwood School | Community School | Good | 1.14 KM |
| Langshott Primary School | Community School | Good | 1.26 KM |
| Manorfield Primary And Nursery School | Community School | Good | 1.34 KM |
Images
Nearby Streets
| Name | Average Price | Average Sqft | Distance |
|---|---|---|---|
| The Drive | £ 475,000 | 0 | 0.00 KM |
| Delta Bungalows | £ 0 | 0 | 0.00 KM |
| Fishers Farm | £ 795,000 | 0 | 0.00 KM |
| Larksfield | £ 550,000 | 0 | 0.00 KM |
| Oakwood Road | £ 500,000 | 0 | 0.00 KM |
Nearby Transport
| Name | NLC | TLC | Distance |
|---|---|---|---|
| Horley | 5365 | HOR | 0.36 KM |
| Gatwick Airport | 5416 | GTW | 1.28 KM |
| Salfords (Surrey) | 5380 | SAF | 3.81 KM |
| Three Bridges | 5491 | TBD | 5.64 KM |
| Crawley | 5484 | CRW | 6.65 KM |
Nearby Listings
| Address | Price | Type | Score | Distance |
|---|---|---|---|---|
| Fairfield Avenue | £ 595,000 | BUY | 7 / 10 | 0.00 KM |
| Fairfield Avenue, Horley | £ 750,000 | BUY | 7 / 10 | 0.00 KM |
| Cheyne Walk, Horley, Surrey | £ 650,000 | BUY | 7 / 10 | 0.06 KM |
| Ref: SM - Cheyne Walk, Horley, RH6 7PF | £ 550,000 | BUY | 7 / 10 | 0.11 KM |
| Spiers Farm Close, Horley, Surrey, RH6 | £ 525,000 | BUY | 7 / 10 | 0.18 KM |
Nearby Properties
| Address | Price | Distance |
|---|---|---|
| 31 Cheyne Walk | £ 460,000 | 0.06 KM |
| 33 Cheyne Walk | £ 470,000 | 0.06 KM |
| 3 Cheyne Walk | £ 389,950 | 0.06 KM |
| 5 Cheyne Walk | £ 402,000 | 0.06 KM |
| 17 Cheyne Walk | £ 279,450 | 0.06 KM |