Hoskins Close, Manchester, M12
By Lancashire Properties
£ 230,000
Reviews
2 out of 5 stars
Lancashire Properties says ..
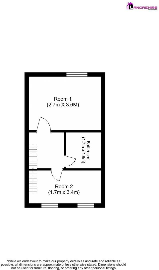
*** TWO BEDROOM + LOFT CONVERSION *** PRIVATE GARDEN *** CLOSE TO LONGSIGHT MARKET *** CLOSE TO HYDE ROAD *** WALKING DISTANCE TO ALL LOCAL AMENITIES *** FULL UPVC DOUBLE GLAZED *** GAS CENTRAL HEATED *** EXCELLENT TRANSPORT LINKS *** EXCELLENT FIRST TIME BUY OR BTL OPPORTUNITY ***
Property Oracle says ..
This is a 2-bedroom terraced house in Longsight, Manchester. The property is located close to schools and transportation. The house is in reasonable condition but would benefit from some modernisation. The garden needs landscaping. The property is priced higher than the average price per square foot in the area, considering the condition, the price seems high.
Therefore, we give this property 5 / 10. *Disclaimer: This is our option and does constitute a recommendation or financial advice. Do your own research. *
- Price
- 4
- Condition
- 5
- Location
- 7
- Land
- 4
- Bedrooms
- 2
- Bathrooms
- 1
- Sqft (est)
- 312.26
The heatmap indicates the level of crime in the area. The color of the heatmap indicates the crime severity and recency.
Metrics Year-on-Year
- Average area value
- 480,222.00 £Decreased by 47.72 %
- Est sale value
- 177,363.68 £Decreased by 10.13 %
- Average area rental value
- 1,868.00 £/moIncreased by 9.11 %
- Est letting value
- 624.52 £/moIncreased by 100.00 %
- Est rental Yield
- 4.67 %Increased by 108.48 %
- Crime Rate
- 0.00 %
Agent Activity
Lancashire Properties created the listing.
Nearby Schools
| Name | Type | Ofsted | Distance |
|---|---|---|---|
| St Peter'S Rc High School | Voluntary Aided School | Good | 0.23 KM |
| All Saints Primary School | Community School | Good | 0.60 KM |
| Rodney House School | Community Special School | Outstanding | 0.69 KM |
| Progress Schools - Gorton | Other Independent School | 0.76 KM | |
| Stanley Grove Primary Academy | Academy Sponsor Led | Good | 0.85 KM |
Images
Nearby Streets
| Name | Average Price | Average Sqft | Distance |
|---|---|---|---|
| Great Lake Close | £ 0 | 0 | 0.00 KM |
| Hetherington Walk | £ 0 | 0 | 0.00 KM |
| Laurence Close | £ 0 | 0 | 0.00 KM |
| Scenic Street | £ 0 | 0 | 0.00 KM |
| Hyde Road | £ 0 | 0 | 0.00 KM |
Nearby Transport
| Name | NLC | TLC | Distance |
|---|---|---|---|
| Belle Vue | 2785 | BLV | 1.18 KM |
| Ashburys | 2941 | ABY | 1.21 KM |
| Levenshulme | 2862 | LVM | 1.91 KM |
| Ryder Brow | 2977 | RRB | 2.06 KM |
| Ardwick | 2960 | ADK | 2.75 KM |
Nearby Listings
| Address | Price | Type | Score | Distance |
|---|---|---|---|---|
| Hoskins Close, Manchester, M12 | £ 230,000 | BUY | 5 / 10 | 0.00 KM |
| Hoskins Close, Belle Vue | £ 230,000 | BUY | 7 / 10 | 0.06 KM |
| Lockhart Close, Manchester, Greater Manchester, M12 | £ 160,000 | BUY | 7 / 10 | 0.10 KM |
| Ellen Wilkinson Crescent, Manchester, M12 | £ 165,000 | BUY | 6 / 10 | 0.11 KM |
| Ellen Wilkinson Crescent, Manchester, M12 | £ 159,950 | BUY | 6 / 10 | 0.11 KM |
Nearby Properties
| Address | Price | Distance |
|---|---|---|
| 27 Hoskins Close | £ 180,000 | 0.01 KM |
| 12 Hoskins Close | £ 131,000 | 0.01 KM |
| 3 Hoskins Close | £ 121,500 | 0.01 KM |
| 4 Hoskins Close | £ 129,950 | 0.01 KM |
| 11 Hoskins Close | £ 60,000 | 0.01 KM |