HA
Manor Gardens, Seaton
By Harris & Harris
£ 315,000
Harris & Harris says ..
This is a well presented and delightfully situated spacious, mid terrace house located in a tranquil, 'tucked away' private cul de sac location within easy walking of both the town centre and popular beach. We are advised the property was converted from part of the former Seaton convent in the 1...
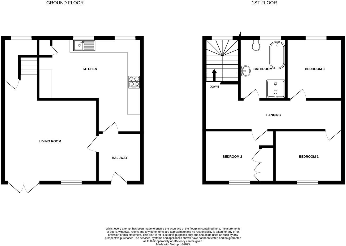
- Bedrooms
- 3
- Bathrooms
- 1
- Sqft (est)
- 938.00
The heatmap indicates the level of crime in the area. The color of the heatmap indicates the crime severity and recency.
Metrics Year-on-Year
- Average area value
- 313,952.00 £Increased by 24.10 %
- Est sale value
- 295,470.00 £Increased by 16.24 %
- Average area rental value
- 876.00 £/moIncreased by 10.19 %
- Est letting value
- 0.00 £/mo
- Est rental Yield
- 3.35 %Decreased by 11.14 %
- Crime Rate
- 26.00 %Unchanged by 0.00 %
from 252,982.00 £
from 254,198.00 £
from 795.00 £/mo
from 0.00 £/mo
from 3.77 %
from 26.00 %
Agent Activity
Harris & Harris created the listing.
Nearby Schools
| Name | Type | Ofsted | Distance |
|---|---|---|---|
| Axe Valley Children'S Centre | Children's Centre | 0.14 KM | |
| Seaton Primary School | Community School | Outstanding | 0.63 KM |
| Colyton Grammar School | Academy Converter | 2.24 KM | |
| Beer Church Of England Primary School | Academy Converter | Requires improvement | 3.52 KM |
| Colyton Primary Academy | Academy Sponsor Led | 3.57 KM |
Images
Nearby Streets
| Name | Average Price | Average Sqft | Distance |
|---|---|---|---|
| Stock Lane | £ 0 | 0 | 0.00 KM |
| Kings Court | £ 245,000 | 0 | 0.00 KM |
| Turnstone Avenue | £ 0 | 0 | 0.00 KM |
| Burrow Road | £ 650,000 | 0 | 0.00 KM |
| Gravel Lane | £ 0 | 0 | 0.00 KM |
Nearby Listings
| Address | Price | Type | Score | Distance |
|---|---|---|---|---|
| Manor Gardens, Seaton | £ 315,000 | BUY | Unknown | 0.00 KM |
| Fleet Court, Seaton, Devon, EX12 | £ 325,000 | BUY | Unknown | 0.05 KM |
| Fleet Court, Seaton, Devon | £ 265,000 | BUY | 6 / 10 | 0.06 KM |
| Fleet Court, Seaton, Devon, EX12 | £ 225,000 | BUY | Unknown | 0.06 KM |
| Fore Street, Seaton | £ 295,000 | BUY | 5 / 10 | 0.08 KM |
Nearby Properties
| Address | Price | Distance |
|---|---|---|
| 5 Manor Gardens | £ 295,000 | 0.01 KM |
| 4 Manor Gardens | £ 170,000 | 0.01 KM |
| 3 Manor Gardens | £ 222,500 | 0.01 KM |
| 8 Fleet Court | £ 189,950 | 0.04 KM |
| 5 Fleet Court | £ 260,000 | 0.04 KM |