Callaway & Co says ..
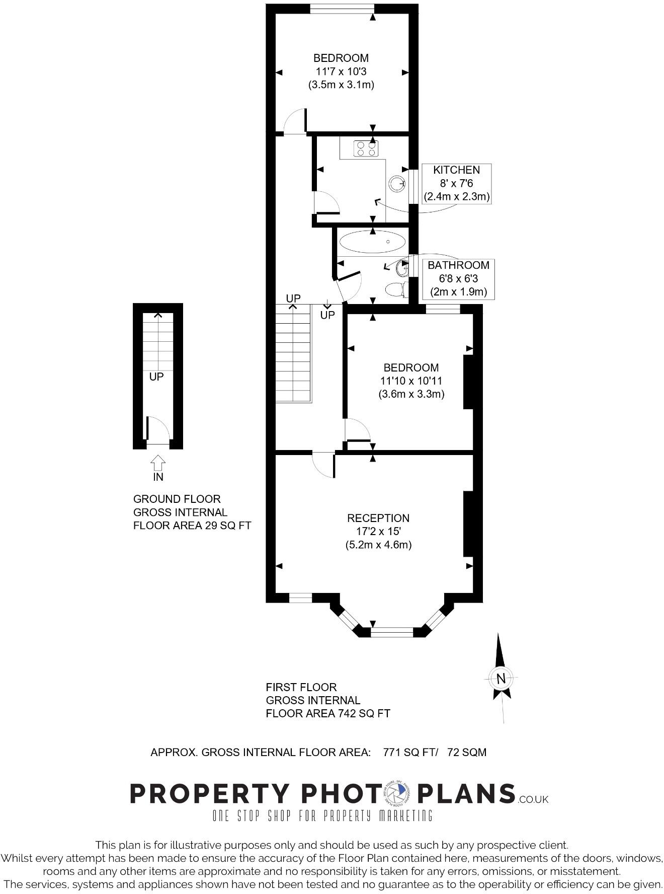
A newly presented two bedroom first floor apartment converted from this period style property set in the heart of Cricklewood close to transport communications, schools, shops and the open acres of Gladstone Park.Featuring new kitchen, bathroom, double glazed windows and floor coverings. Chain Free
Property Oracle says ..
Therefore, we give this property 5 / 10. *Disclaimer: This is our option and does constitute a recommendation or financial advice. Do your own research. *
- Price
- 5
- Condition
- 8
- Location
- 7
- Land
- 1
- Bedrooms
- 2
- Bathrooms
- 0
- Sqft (est)
- 599.67
The heatmap indicates the level of crime in the area. The color of the heatmap indicates the crime severity and recency.
Metrics Year-on-Year
- Average area value
- 1,318,000.00 £Increased by 70.66 %
- Est sale value
- 884,513.25 £Increased by 119.49 %
- Average area rental value
- 1,474.00 £/moDecreased by 27.60 %
- Est letting value
- 599.67 £/moUnchanged by 0.00 %
- Est rental Yield
- 1.34 %Decreased by 57.59 %
- Crime Rate
- 2.00 %Unchanged by 0.00 %
from 772,293.00 £
from 402,978.24 £
from 2,036.00 £/mo
from 599.67 £/mo
from 3.16 %
from 2.00 %
Agent Activity
Callaway & Co created the listing.
Nearby Schools
| Name | Type | Ofsted | Distance |
|---|---|---|---|
| Mora Primary School | Community School | Good | 0.32 KM |
| Anson Primary School | Community School | Good | 0.54 KM |
| Our Lady Of Grace Rc Infant And Nursery School | Academy Converter | 0.85 KM | |
| Gladstone Park Primary School | Academy Sponsor Led | Good | 1.03 KM |
| Convent Of Jesus And Mary Rc Infant School | Voluntary Aided School | Outstanding | 1.08 KM |
Images
Nearby Streets
| Name | Average Price | Average Sqft | Distance |
|---|---|---|---|
| Gardiner Avenue | £ 0 | 0 | 0.00 KM |
| Stoll Close | £ 0 | 0 | 0.00 KM |
| Clovelly Court | £ 0 | 0 | 0.00 KM |
| Hudson Way | £ 625,000 | 0 | 0.00 KM |
| Kendal Road | £ 0 | 0 | 0.00 KM |
Nearby Transport
| Name | NLC | TLC | Distance |
|---|---|---|---|
| Cricklewood | 1519 | CRI | 1.17 KM |
| Brondesbury Park | 1438 | BSP | 2.29 KM |
| Kensal Rise | 1448 | KNR | 2.49 KM |
| Brondesbury | 1437 | BSY | 2.64 KM |
| Kensal Green | 1447 | KNL | 2.92 KM |
Nearby Listings
| Address | Price | Type | Score | Distance |
|---|---|---|---|---|
| Olive Road, London, NW2 | £ 500,000 | BUY | 5 / 10 | 0.00 KM |
| Olive Road, Cricklewood | £ 1,275,000 | BUY | Unknown | 0.02 KM |
| Olive Road, London | £ 365,000 | BUY | 6 / 10 | 0.03 KM |
| Olive Road, Cricklewood | £ 494,950 | BUY | Unknown | 0.04 KM |
| Olive Road, Cricklewood, London, NW2 | £ 625,000 | BUY | 7 / 10 | 0.10 KM |
Nearby Properties
| Address | Price | Distance |
|---|---|---|
| 61 Olive Road | £ 480,000 | 0.00 KM |
| 67 Olive Road | £ 900,000 | 0.00 KM |
| 75 Olive Road | £ 410,000 | 0.00 KM |
| 69 Olive Road | £ 999,950 | 0.00 KM |
| 53 Olive Road | £ 485,000 | 0.00 KM |