The Maltings, Connahs Quay Road, Northop
By Signature
£ 425,000
Reviews
3 out of 5 stars
Signature says ..
A truly stunning Grade II listed former Malt House, believed to date back to the 18th century, now exquisitely transformed into an exceptional, distinctive family home. This unique four-bedroom property seamlessly blends historic charm with modern luxury, featuring striking exposed beams, ston...
Property Oracle says ..
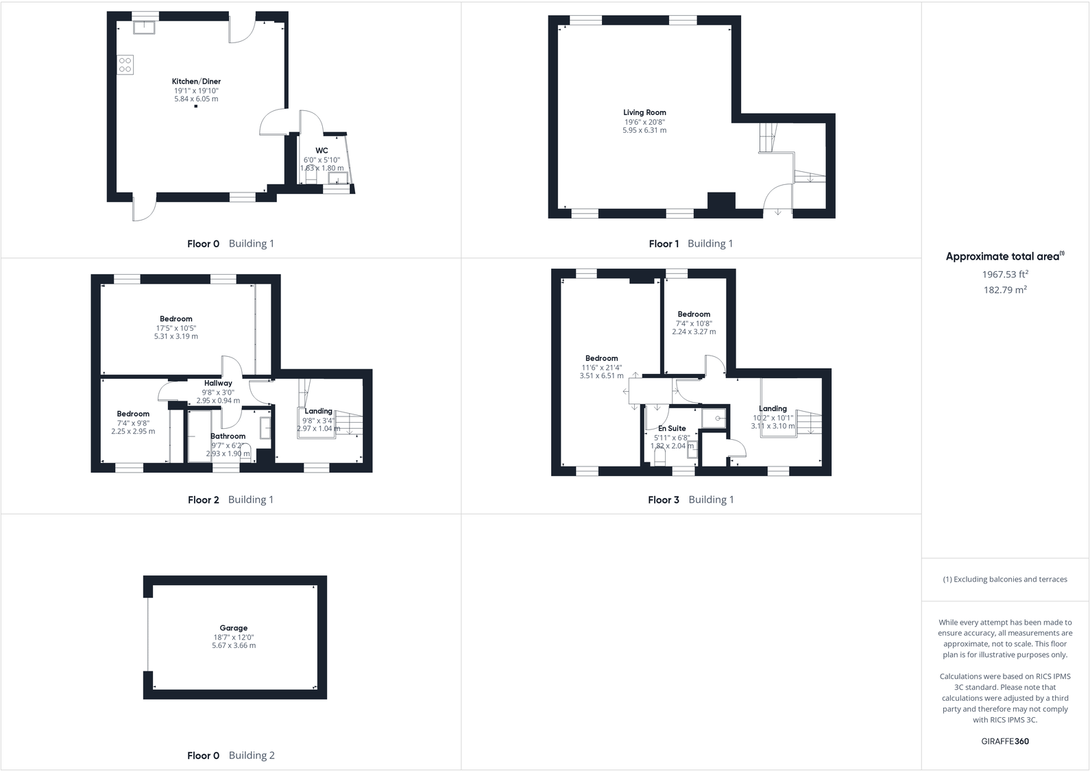
The property is located in Northop, Flintshire, and is a character property. The average house price in the area is £312,744, significantly lower than the list price of £425,000. However, the average price per square foot is £298, and this property is larger than average at 1,967.53 sqft.
Based on the images provided, the property appears to be in excellent condition. It has been recently renovated or refurbished to a high standard. The property has character features such as exposed stonework and beams, which are desirable in the UK housing market.
The property has a garden, which is a desirable feature for many buyers. The size of the garden is not specified, but based on the images provided, it appears to be of a reasonable size.
The list price of £425,000 is higher than the average price for the area, but considering the property’s size, condition, and features, it may be considered reasonable. More information on comparable properties in the immediate vicinity would be needed to make a definitive statement on the price. The lack of plot size data in square feet hinders a more precise valuation.
The location is in a rural setting, with nearby schools and transportation links. The proximity to these amenities is positive, but the exact distances and quality of the schools and transport would need further investigation.
Therefore, we give this property 7 / 10. *Disclaimer: This is our option and does constitute a recommendation or financial advice. Do your own research. *
- Price
- 7
- Condition
- 10
- Location
- 7
- Land
- 7
- Bedrooms
- 4
- Bathrooms
- 2
- Sqft (est)
- 1,967.53
The heatmap indicates the level of crime in the area. The color of the heatmap indicates the crime severity and recency.
Metrics Year-on-Year
- Average area value
- 267,500.00 £Decreased by 0.99 %
- Est sale value
- 505,655.21 £Increased by 5.33 %
- Average area rental value
- 1,107.00 £/moDecreased by 6.11 %
- Est letting value
- 1,967.53 £/moUnchanged by 0.00 %
- Est rental Yield
- 4.97 %Decreased by 5.15 %
- Crime Rate
- 10.00 %Unchanged by 0.00 %
Agent Activity
Signature marked this listing as sold.
Signature created the listing.
Nearby Schools
| Name | Type | Ofsted | Distance |
|---|---|---|---|
| Ysgol Owen Jones C.P. | Welsh Establishment | 2.18 KM | |
| Sychdyn C.P. School | Welsh Establishment | 2.58 KM | |
| Northop Hall C.P. School | Welsh Establishment | 2.73 KM | |
| St Richard Gwyn Roman Catholic High School | Welsh Establishment | 3.87 KM | |
| St Mary'S R.C. Primary School | Welsh Establishment | 4.02 KM |
Images
Nearby Streets
| Name | Average Price | Average Sqft | Distance |
|---|---|---|---|
| Starkey Lane | £ 815,000 | 0 | 0.00 KM |
Nearby Transport
| Name | NLC | TLC | Distance |
|---|---|---|---|
| Flint | 2513 | FLN | 4.97 KM |
| Buckley | 2422 | BCK | 8.39 KM |
| Shotton | 2546 | SHT | 8.72 KM |
| Hawarden Bridge | 2146 | HWB | 9.41 KM |
| Hawarden | 2428 | HWD | 9.73 KM |
Nearby Listings
| Address | Price | Type | Score | Distance |
|---|---|---|---|---|
| The Maltings, Connahs Quay Road, Northop | £ 425,000 | BUY | 7 / 10 | 0.00 KM |
| The Maltings, Connahs Quay Road, Northop | £ 425,000 | BUY | 7 / 10 | 0.00 KM |
| The Maltings, Swn Dwr, Connah's Quay Road, Northop, Mold, Flintshire, CH7 6BT | £ 415,000 | BUY | 7 / 10 | 0.28 KM |
| The Maltings, Swn Dwr, Connah's Quay Road, Northop, Mold, Flintshire, CH7 6BT | £ 420,000 | BUY | 7 / 10 | 0.28 KM |
| Connah's Quay Road, Northop | £ 485,000 | BUY | Unknown | 0.72 KM |
Nearby Properties
| Address | Price | Distance |
|---|---|---|
| Highfield Cottage | £ 155,000 | 0.01 KM |
| Springfield Cottage | £ 242,000 | 0.01 KM |
| Swn Dwr Farm | £ 107,000 | 0.01 KM |
| Glebe House | £ 825,000 | 0.01 KM |
| 9 Park View | £ 270,000 | 0.69 KM |