Barnard Marcus says ..
Situated along a tree lined road you will find this three bedroom Victorian period conversion. This property is offered chain free to the market and is ready to move into.
Property Oracle says ..
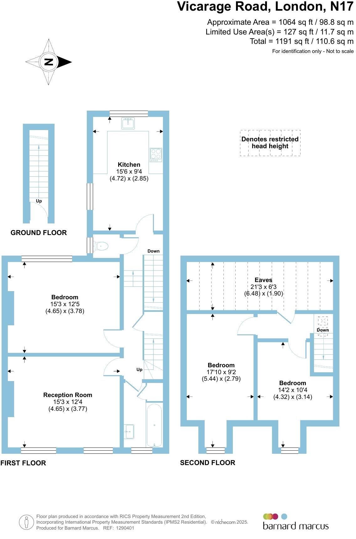
This three-bedroom apartment is located on Vicarage Road in Northumberland Park, Haringey. The property benefits from being close to several schools, including St Paul’s and All Hallows C of E Infant and Junior Schools (both rated as “Good” by Ofsted), and is also within reasonable distance of several Overground and Greater Anglia train stations. The apartment itself appears to be in good condition based on the provided images, with a modern kitchen and recently decorated rooms. The property is listed at £450,000 and has a floor area of 948.89 sqft. Compared to the average price per sqft in the area (£450), the listed price seems reasonable, although further information on the property’s specific features and amenities would be helpful for a more comprehensive evaluation. The plot size of 1,064 sqft suggests the presence of some outdoor space, which is a positive feature. Nearby comparable properties range in price from £169,000 to £420,000, indicating some price variation in the immediate vicinity. The lack of information on the condition of nearby properties makes it difficult to precisely compare the condition of this property to its neighbors.
Therefore, we give this property 7 / 10. *Disclaimer: This is our option and does constitute a recommendation or financial advice. Do your own research. *
- Price
- 7
- Condition
- 8
- Location
- 7
- Land
- 6
- Bedrooms
- 3
- Bathrooms
- 1
- Sqft (est)
- 948.89
- Lot (est)
- 1,064.00
The heatmap indicates the level of crime in the area. The color of the heatmap indicates the crime severity and recency.
Metrics Year-on-Year
- Average area value
- 335,833.00 £Decreased by 14.05 %
- Est sale value
- 640,500.75 £Increased by 47.38 %
- Average area rental value
- 1,767.00 £/moDecreased by 13.00 %
- Est letting value
- 2,846.67 £/moIncreased by 50.00 %
- Est rental Yield
- 6.31 %Increased by 1.12 %
- Crime Rate
- 5.00 %Unchanged by 0.00 %
Agent Activity
Barnard Marcus created the listing.
Nearby Schools
| Name | Type | Ofsted | Distance |
|---|---|---|---|
| St Paul'S And All Hallows Cofe Infant School | Academy Converter | Good | 0.16 KM |
| St Paul'S And All Hallows Cofe Junior School | Academy Converter | Good | 0.18 KM |
| Park Lane Children'S Centre | Children's Centre | 0.40 KM | |
| Pembury House Nursery School & Children'S Centre | Children's Centre | 0.40 KM | |
| London Academy Of Excellence Tottenham | Free Schools 16 To 19 | 0.40 KM |
Images
Nearby Streets
| Name | Average Price | Average Sqft | Distance |
|---|---|---|---|
| Emilia Place | £ 430,000 | 0 | 0.00 KM |
| Somerford Grove | £ 0 | 0 | 0.00 KM |
| Paxton Place | £ 0 | 0 | 0.00 KM |
| Harpers Yard | £ 0 | 0 | 0.00 KM |
| Brunswick Square | £ 0 | 0 | 0.00 KM |
Nearby Transport
| Name | NLC | TLC | Distance |
|---|---|---|---|
| White Hart Lane | 6956 | WHL | 0.81 KM |
| Bruce Grove | 6958 | BCV | 1.02 KM |
| Northumberland Park | 6971 | NUM | 1.18 KM |
| Silver Street | 6972 | SLV | 1.50 KM |
| Tottenham Hale | 6951 | TOM | 1.56 KM |
Nearby Listings
| Address | Price | Type | Score | Distance |
|---|---|---|---|---|
| Vicarage Road, London | £ 450,000 | BUY | 7 / 10 | 0.00 KM |
| Vicarage Road, Tottenham | £ 370,000 | BUY | 7 / 10 | 0.06 KM |
| Park Lane, Tottenham, London, N17 | £ 300,000 | BUY | 6 / 10 | 0.07 KM |
| Park Lane, Tottenham, London, N17 | £ 350,000 | BUY | 4 / 10 | 0.07 KM |
| Park Lane, Tottenham, London, N17 | £ 275,000 | BUY | 6 / 10 | 0.07 KM |
Nearby Properties
| Address | Price | Distance |
|---|---|---|
| 32a Vicarage Road | £ 101,000 | 0.00 KM |
| 20a Vicarage Road | £ 350,000 | 0.00 KM |
| 8 Vicarage Road | £ 105,000 | 0.00 KM |
| 32 Vicarage Road | £ 101,000 | 0.00 KM |
| 8a Vicarage Road | £ 230,000 | 0.00 KM |