Totternhoe Close, Harrow, HA3
By Phillip Shaw
£ 800,000
Reviews
3 out of 5 stars
Phillip Shaw says ..
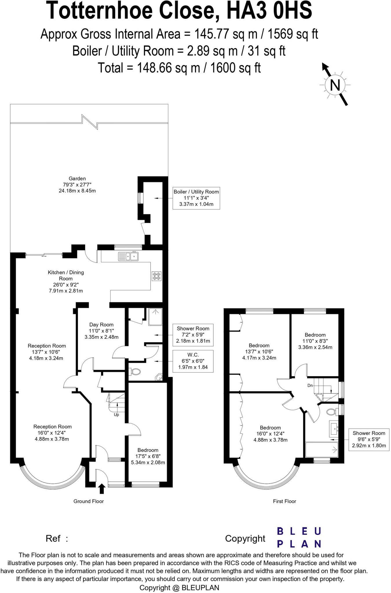
Phillip Shaw Ltd is delighted to present this spacious and versatile four-bedroom family home, located on a quiet cul-de-sac in the sought-after Totternhoe Close, HA3.Set on a generous plot, this beautifully maintained property offers over 1,600 sq ft of living space and is perfect for growing fa...
Property Oracle says ..
This semi-detached property is located in a popular area of Harrow, offering convenient access to local amenities, transportation, and well-regarded schools. The house features four bedrooms and two bathrooms, making it suitable for families. While the property is generally in good order, it would benefit from some modernisation to enhance its appeal. The presence of a garden is a definite plus. However, the asking price of £800,000 appears to be on the higher side when compared to average property prices in the area, especially considering the need for some refurbishment. Potential buyers should factor in renovation costs when assessing the overall value.
Therefore, we give this property 6 / 10. *Disclaimer: This is our option and does constitute a recommendation or financial advice. Do your own research. *
- Price
- 6
- Condition
- 6
- Location
- 7
- Land
- 7
- Bedrooms
- 4
- Bathrooms
- 2
- Sqft (est)
- 1,600.16
The heatmap indicates the level of crime in the area. The color of the heatmap indicates the crime severity and recency.
Metrics Year-on-Year
- Average area value
- 200,667.00 £Decreased by 60.33 %
- Est sale value
- 404,840.48 £Decreased by 29.53 %
- Average area rental value
- 1,454.00 £/moDecreased by 8.95 %
- Est letting value
- 1,600.16 £/moUnchanged by 0.00 %
- Est rental Yield
- 8.70 %Increased by 129.55 %
- Crime Rate
- 5.00 %Unchanged by 0.00 %
Agent Activity
Phillip Shaw created the listing.
Nearby Schools
| Name | Type | Ofsted | Distance |
|---|---|---|---|
| St Gregory'S Catholic Science College | Academy Converter | Outstanding | 0.34 KM |
| Mount Stewart Infant School | Community School | Good | 0.97 KM |
| Mount Stewart Junior School | Community School | Outstanding | 1.07 KM |
| Mount Stewart Children'S Centre | Children's Centre | 1.07 KM | |
| Uxendon Manor Primary School | Community School | Good | 1.07 KM |
Images
Nearby Streets
| Name | Average Price | Average Sqft | Distance |
|---|---|---|---|
| Saint Leonards Avenue | £ 0 | 0 | 0.00 KM |
| Kenton Park Parade | £ 185,000 | 0 | 0.00 KM |
| Ebrington Road | £ 340,000 | 0 | 0.00 KM |
| Draycott Close | £ 1,650,000 | 0 | 0.00 KM |
| The Ridgeway | £ 864,975 | 0 | 0.00 KM |
Nearby Transport
| Name | NLC | TLC | Distance |
|---|---|---|---|
| Kenton | 1399 | KNT | 1.11 KM |
| South Kenton | 1453 | SOK | 1.66 KM |
| North Wembley | 1422 | NWB | 2.54 KM |
| Harrow And Wealdstone | 1397 | HRW | 3.10 KM |
| Harrow-On-The-Hill | 598 | HOH | 3.35 KM |
Nearby Listings
| Address | Price | Type | Score | Distance |
|---|---|---|---|---|
| Totternhoe Close, Harrow, HA3 | £ 800,000 | BUY | 6 / 10 | 0.00 KM |
| Woodgrange Avenue, Harrow, HA3 | £ 650,000 | BUY | 7 / 10 | 0.15 KM |
| Kenton Road, Kenton, Harrow, HA3 | £ 365,000 | BUY | 5 / 10 | 0.15 KM |
| Woodgrange Avenue, Harrow, Middlesex, HA3 | £ 650,000 | BUY | 8 / 10 | 0.16 KM |
| Woodgrange Avenue, Harrow, HA3 | £ 330,000 | BUY | 5 / 10 | 0.19 KM |
Nearby Properties
| Address | Price | Distance |
|---|---|---|
| 11 Totternhoe Close | £ 725,000 | 0.04 KM |
| 13 Totternhoe Close | £ 595,000 | 0.04 KM |
| 25 Totternhoe Close | £ 315,000 | 0.04 KM |
| 7 Totternhoe Close | £ 647,500 | 0.04 KM |
| 19 Totternhoe Close | £ 332,500 | 0.04 KM |