Thornfalcon, Taunton, Somerset, TA3
By Carter Jonas Rural
£ 250,000
Reviews
3 out of 5 stars
Carter Jonas Rural says ..
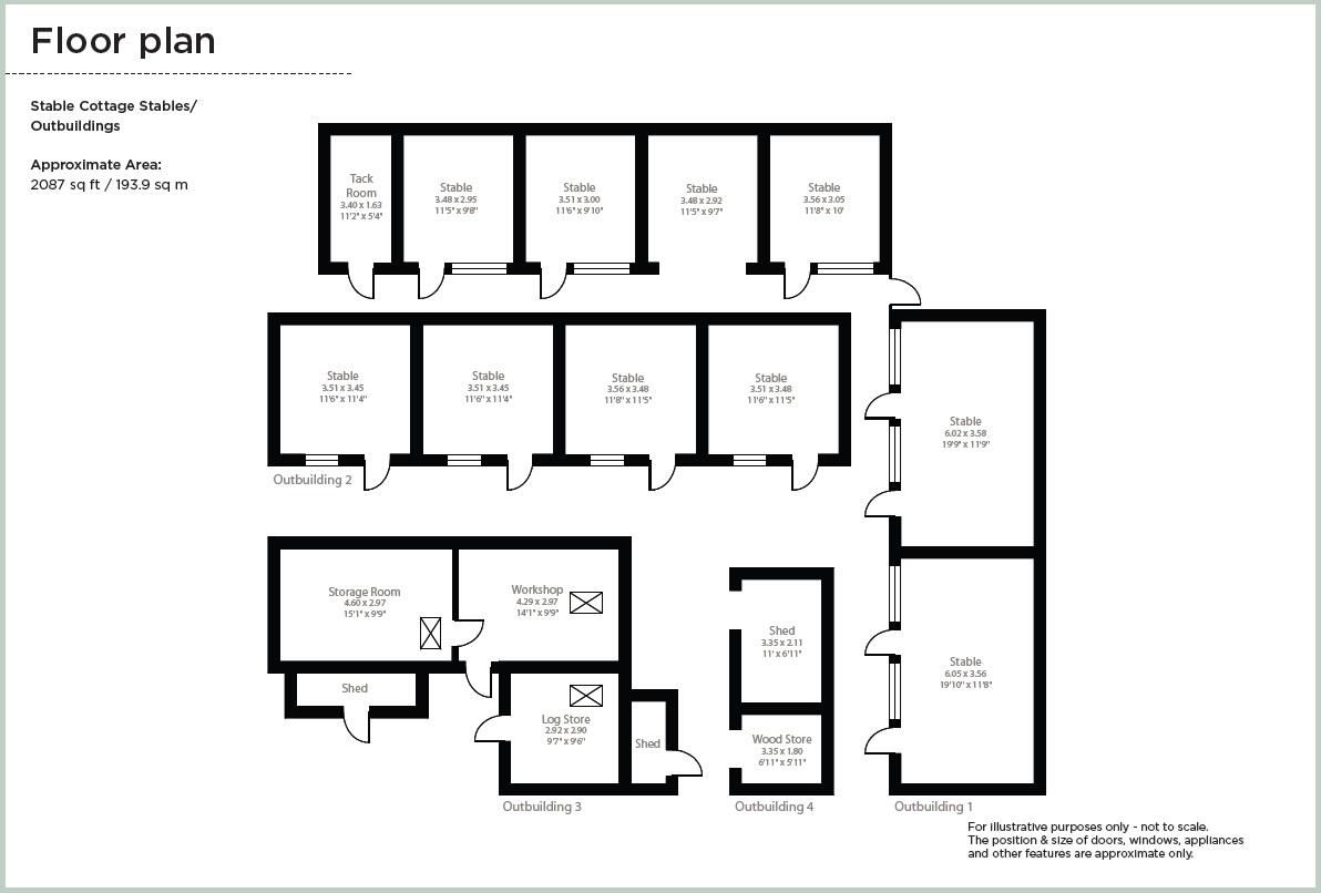
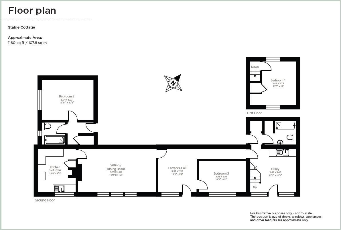
A detached former groom's cottage for renovation/rebuild together with a range of stables, outbuildings and adjoining land. In all extending to 0.83 acre. For sale by private treaty as a whole.
Property Oracle says ..
This is an equestrian facility in Thornfalcon, near Taunton, Somerset. The property requires renovation but includes a good amount of land. The location is rural but still accessible to Taunton. The asking price of £250,000 seems reasonable given the property’s condition and features.
Therefore, we give this property 6 / 10. *Disclaimer: This is our option and does constitute a recommendation or financial advice. Do your own research. *
- Price
- 8
- Condition
- 3
- Location
- 6
- Land
- 7
- Bedrooms
- 0
- Bathrooms
- 0
The heatmap indicates the level of crime in the area. The color of the heatmap indicates the crime severity and recency.
Metrics Year-on-Year
- Average area value
- 549,387.00 £Increased by 31.03 %
- Average area rental value
- 1,181.00 £/moDecreased by 30.53 %
- Est rental Yield
- 2.58 %Decreased by 47.02 %
- Crime Rate
- 0.00 %
Agent Activity
Carter Jonas Rural created the listing.
Nearby Schools
| Name | Type | Ofsted | Distance |
|---|---|---|---|
| Somerset Progressive School | Other Independent Special School | Good | 1.93 KM |
| Ruishton Church Of England School | Academy Converter | 2.23 KM | |
| Cambian Somerset School | Other Independent Special School | Good | 2.62 KM |
| The Villages Children'S Centre | Children's Centre Linked Site | 2.67 KM | |
| Thurlbear Church Of England Primary School | Voluntary Aided School | Good | 2.85 KM |
Images
Nearby Streets
| Name | Average Price | Average Sqft | Distance |
|---|---|---|---|
| Greenway Lane | £ 0 | 0 | 0.00 KM |
| Ilminster Road | £ 206,667 | 0 | 0.00 KM |
Nearby Transport
| Name | NLC | TLC | Distance |
|---|---|---|---|
| Taunton | 3471 | TAU | 8.25 KM |
Nearby Listings
| Address | Price | Type | Score | Distance |
|---|---|---|---|---|
| Thornfalcon, Taunton, Somerset, TA3 | £ 250,000 | BUY | 6 / 10 | 0.00 KM |
| The Mount Somerset, Lower Henlade, Taunton, TA3 5NB | £ 2,750,000 | BUY | Unknown | 0.41 KM |
| The Mount Somerset, Henlade, Taunton, TA3 5NB | £ 2,750,000 | BUY | 7 / 10 | 0.41 KM |
| Henlade, Taunton | £ 695,000 | BUY | 7 / 10 | 0.44 KM |
| Stoke Hill, Henlade, Taunton | £ 400,000 | BUY | 8 / 10 | 0.56 KM |
Nearby Properties
| Address | Price | Distance |
|---|---|---|
| 5 Presidents Court | £ 285,000 | 0.44 KM |
| 4 Presidents Court | £ 320,000 | 0.44 KM |
| 2 Presidents Court | £ 352,500 | 0.44 KM |
| 6 Presidents Court | £ 285,000 | 0.44 KM |
| 3 Presidents Court | £ 295,000 | 0.44 KM |