Gresford Avenue, Prenton
By Brennan Ayre O'Neill
£ 300,000
Reviews
3 out of 5 stars
Brennan Ayre O'Neill says ..
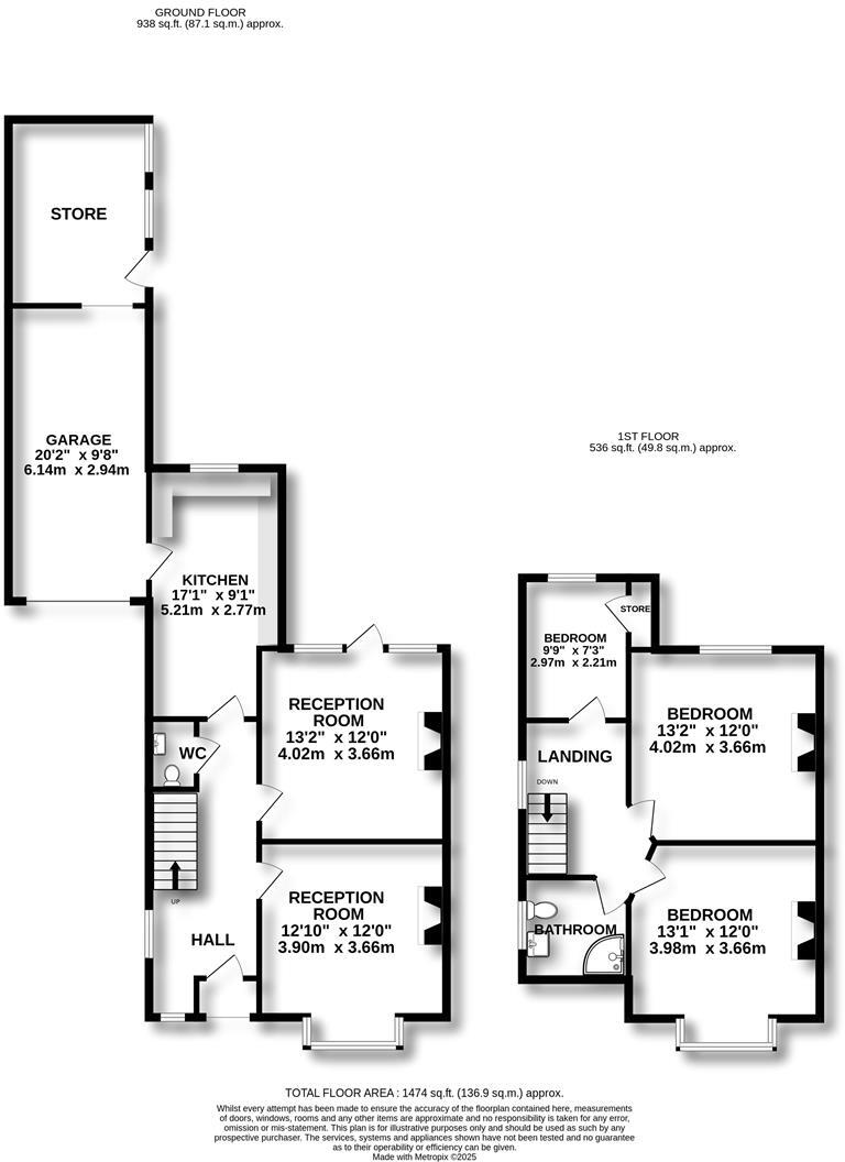
Gresford Avenue is a hugely popular and short, tree lined road within an established sub district of Prenton; standing just off the main road and as such very convenient for easy access to the motorway spur as well as for a direct to Liverpool along Woodchurch Road. With a generous amoun...
Property Oracle says ..
This semi-detached property on Gresford Avenue in Prenton offers a blend of traditional charm and modern updates. The house features three bedrooms and one bathroom. While the square footage is not specified, the property includes a garden and is situated in a convenient location near schools and transportation. The interior condition appears well-maintained, with a modern kitchen and bathroom, though some areas could benefit from cosmetic updates. The asking price of £300,000 is competitive for the area, making it an attractive option for families and commuters seeking a well-located home in the Wirral.
Therefore, we give this property 6 / 10. *Disclaimer: This is our option and does constitute a recommendation or financial advice. Do your own research. *
- Price
- 7
- Condition
- 7
- Location
- 7
- Land
- 6
- Bedrooms
- 3
- Bathrooms
- 1
The heatmap indicates the level of crime in the area. The color of the heatmap indicates the crime severity and recency.
Metrics Year-on-Year
- Average area value
- 287,500.00 £Increased by 19.71 %
- Average area rental value
- 850.00 £/moIncreased by 25.00 %
- Est rental Yield
- 3.55 %Increased by 4.41 %
- Crime Rate
- 3.00 %Unchanged by 0.00 %
Agent Activity
Brennan Ayre O'Neill created the listing.
Nearby Schools
| Name | Type | Ofsted | Distance |
|---|---|---|---|
| Prenton Children'S Centre | Children's Centre Linked Site | 0.45 KM | |
| Prenton Primary School | Community School | Good | 0.58 KM |
| Oxton St Saviour'S Cofe Aided Primary School | Voluntary Aided School | Good | 0.59 KM |
| Prenton Preparatory School | Other Independent School | 1.18 KM | |
| Townfield Primary School | Academy Converter | Good | 1.43 KM |
Images
Nearby Streets
| Name | Average Price | Average Sqft | Distance |
|---|---|---|---|
| Bryanston Road | £ 630,000 | 0 | 0.00 KM |
| Redwood Close | £ 0 | 0 | 0.00 KM |
| Mill Hill | £ 0 | 0 | 0.00 KM |
| OvertonClose | £ 250,000 | 0 | 0.00 KM |
| Hartford Close | £ 0 | 0 | 0.00 KM |
Nearby Transport
| Name | NLC | TLC | Distance |
|---|---|---|---|
| Birkenhead Park | 2220 | BKP | 3.16 KM |
| Birkenhead North | 2145 | BKN | 3.66 KM |
| Birkenhead Central | 2217 | BKC | 3.88 KM |
| Upton (Merseyside) | 2141 | UPT | 3.91 KM |
| Conway Park | 3624 | CNP | 4.01 KM |
Nearby Listings
| Address | Price | Type | Score | Distance |
|---|---|---|---|---|
| Gresford Avenue, Prenton | £ 300,000 | BUY | 6 / 10 | 0.00 KM |
| Gresford Avenue, Prenton | £ 329,950 | BUY | 6 / 10 | 0.07 KM |
| Broxton Avenue, Prenton, CH43 | £ 250,000 | BUY | 6 / 10 | 0.09 KM |
| Pulford Avenue, Prenton, Merseyside, CH43 | £ 350,000 | BUY | 6 / 10 | 0.12 KM |
| Gresford Avenue, Prenton, CH43 | £ 340,000 | BUY | 6 / 10 | 0.14 KM |
Nearby Properties
| Address | Price | Distance |
|---|---|---|
| 17 Gresford Avenue | £ 150,000 | 0.07 KM |
| 20 Gresford Avenue | £ 185,000 | 0.07 KM |
| 10 Gresford Avenue | £ 82,000 | 0.07 KM |
| 3 Gresford Avenue | £ 196,000 | 0.07 KM |
| 24 Gresford Avenue | £ 169,000 | 0.07 KM |