University / Hospital Area, Reading, RG1
By Chancellors
£ 210,000
Reviews
3 out of 5 stars
Chancellors says ..
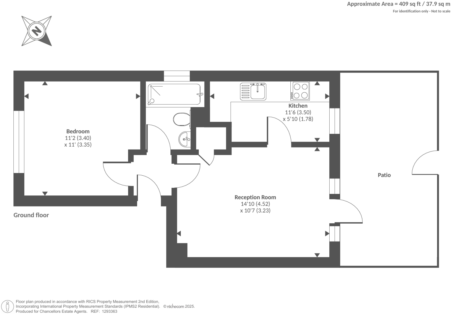
Set in the Hospital / University Area is this ground floor apartment with the benefit of a private garden with access to the allocated parking, Having been refurbished recently with kitchen, bathroom, double bedroom, sitting room with doors to garden, no chain.
Property Oracle says ..
This one bedroom flat is located in the University/Hospital area of Reading, close to local amenities and transport links. The property is in good condition and benefits from a small private rear garden. While the list price is above the average price per square foot for the area, the property’s condition, location, and inclusion of a garden may justify this. Further investigation into comparable properties in the immediate vicinity would be beneficial to determine a more precise market valuation.
Therefore, we give this property 6 / 10. *Disclaimer: This is our option and does constitute a recommendation or financial advice. Do your own research. *
- Price
- 7
- Condition
- 8
- Location
- 9
- Land
- 3
- Bedrooms
- 1
- Bathrooms
- 1
- Sqft (est)
- 409.00
The heatmap indicates the level of crime in the area. The color of the heatmap indicates the crime severity and recency.
Metrics Year-on-Year
- Average area value
- 429,375.00 £Increased by 2.76 %
- Est sale value
- 269,940.00 £Increased by 67.94 %
- Average area rental value
- 1,283.00 £/moIncreased by 0.16 %
- Est letting value
- 409.00 £/moUnchanged by 0.00 %
- Est rental Yield
- 3.59 %Decreased by 2.45 %
- Crime Rate
- 5.00 %Unchanged by 0.00 %
Agent Activity
Chancellors created the listing.
Nearby Schools
| Name | Type | Ofsted | Distance |
|---|---|---|---|
| East Reading Children'S Centre | Children's Centre | 0.29 KM | |
| St John'S Church Of England Primary School | Academy Converter | Requires improvement | 0.32 KM |
| Reading School | Academy Converter | 0.48 KM | |
| New Town Primary School | Academy Sponsor Led | Good | 0.60 KM |
| Red Balloon Learner Centre Reading | Other Independent School | 0.65 KM |
Images
Nearby Streets
| Name | Average Price | Average Sqft | Distance |
|---|---|---|---|
| Villa Mews | £ 0 | 0 | 0.00 KM |
| King's Road | £ 0 | 0 | 0.00 KM |
| Norwood Road | £ 380,000 | 0 | 0.00 KM |
| Woodstock Street | £ 0 | 0 | 0.00 KM |
| Sun Street | £ 240,000 | 0 | 0.00 KM |
Nearby Transport
| Name | NLC | TLC | Distance |
|---|---|---|---|
| Reading | 3149 | RDG | 2.32 KM |
| Earley | 5694 | EAR | 3.95 KM |
| Reading West | 3160 | RDW | 4.23 KM |
| Winnersh Triangle | 5698 | WTI | 6.92 KM |
| Winnersh | 5697 | WNS | 8.65 KM |
Nearby Listings
| Address | Price | Type | Score | Distance |
|---|---|---|---|---|
| University / Hospital Area, Reading, RG1 | £ 210,000 | BUY | 6 / 10 | 0.00 KM |
| London Road, Reading, Berkshire | £ 130,000 | BUY | 5 / 10 | 0.02 KM |
| Donnington Road, Reading | £ 360,000 | BUY | 6 / 10 | 0.06 KM |
| London Road, Reading, Berkshire, RG1 | £ 180,000 | BUY | 6 / 10 | 0.09 KM |
| Reading, Berkshire, RG1 | £ 230,000 | BUY | 5 / 10 | 0.11 KM |
Nearby Properties
| Address | Price | Distance |
|---|---|---|
| 96 London Road | £ 280,000 | 0.02 KM |
| 78 London Road | £ 405,000 | 0.02 KM |
| 129 London Road | £ 108,000 | 0.08 KM |
| 139 London Road | £ 305,000 | 0.08 KM |
| 125 London Road | £ 490,000 | 0.08 KM |