HO
The Limes 219- 221 High Street, Cottenham, Cambridge, CB24 8QP
By Hockeys
£ 1,250,000
Hockeys says ..
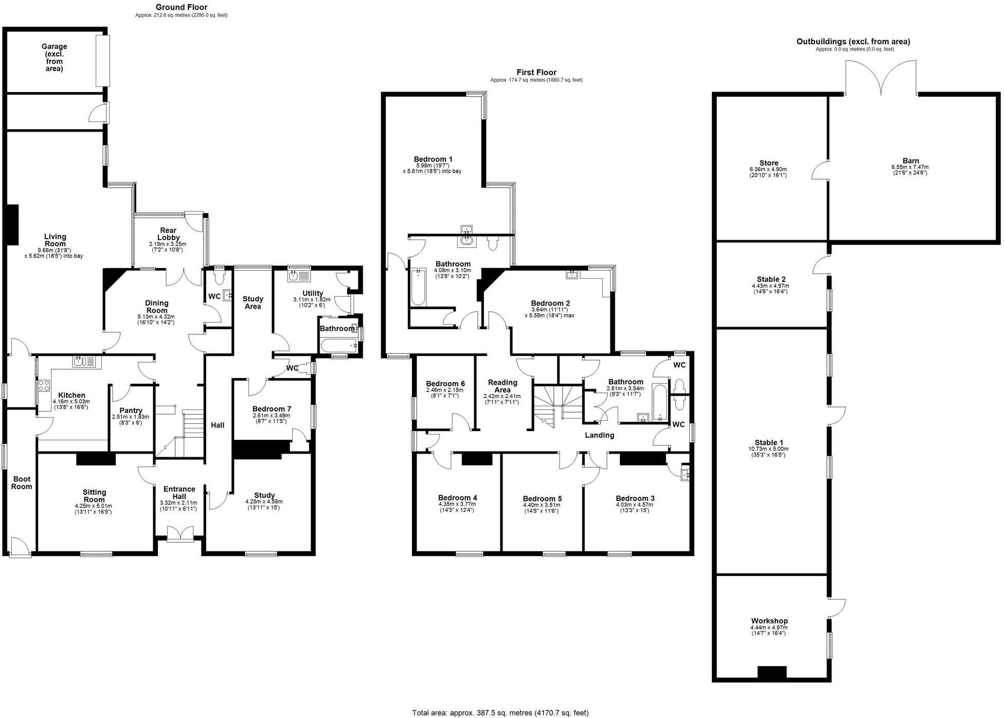
A particularly impressive, double fronted Victorian residence which offers scope for modernisation. Set within an established plot of 0.5 acre and including stable, workshop and a 10.5 SQM barn. To read details of the listing please use
- Bedrooms
- 6
- Bathrooms
- 3
The heatmap indicates the level of crime in the area. The color of the heatmap indicates the crime severity and recency.
Metrics Year-on-Year
- Average area value
- 422,576.00 £Increased by 8.20 %
- Average area rental value
- 1,434.00 £/moIncreased by 12.91 %
- Est rental Yield
- 4.07 %Increased by 4.36 %
- Crime Rate
- 30.00 %Unchanged by 0.00 %
from 390,556.00 £
from 1,270.00 £/mo
from 3.90 %
from 30.00 %
Agent Activity
Hockeys created the listing.
Nearby Schools
| Name | Type | Ofsted | Distance |
|---|---|---|---|
| The Centre School | Academy Special Converter | Good | 0.61 KM |
| Cottenham Village College | Academy Converter | Requires improvement | 0.61 KM |
| Cottenham Primary School | Community School | Good | 0.66 KM |
| Histon And Impington Park Primary School | Academy Converter | Good | 3.71 KM |
| Hope Tree School | Other Independent Special School | 3.83 KM |
Images
Nearby Streets
| Name | Average Price | Average Sqft | Distance |
|---|---|---|---|
| Lambs Row | £ 0 | 0 | 0.00 KM |
| Narrow Lane | £ 0 | 0 | 0.00 KM |
| Kestrel Close | £ 342,500 | 0 | 0.00 KM |
| Kingfisher Way | £ 0 | 0 | 0.00 KM |
| Broad Lane | £ 0 | 0 | 0.00 KM |
Nearby Transport
| Name | NLC | TLC | Distance |
|---|---|---|---|
| Cambridge North | 8001 | CMB | 7.98 KM |
| Waterbeach | 7079 | WBC | 8.43 KM |
Nearby Listings
| Address | Price | Type | Score | Distance |
|---|---|---|---|---|
| The Limes 219- 221 High Street, Cottenham, Cambridge, CB24 8QP | £ 1,250,000 | BUY | Unknown | 0.00 KM |
| High Street, Cottenham, Cambridge | £ 725,000 | BUY | 7 / 10 | 0.10 KM |
| Telegraph Street, Cottenham, Cambridge, CB24 | £ 300,000 | BUY | 6 / 10 | 0.10 KM |
| High Street, Cottenham, Cambridge, CB24 | £ 340,000 | BUY | 5 / 10 | 0.12 KM |
| Eastlands Close, Cottenham, CB24 | £ 300,000 | BUY | 7 / 10 | 0.15 KM |
Nearby Properties
| Address | Price | Distance |
|---|---|---|
| 4 Beagle Court | £ 137,500 | 0.04 KM |
| 7 Beagle Court | £ 60,000 | 0.04 KM |
| 8 Beagle Court | £ 138,000 | 0.04 KM |
| 6 Beagle Court | £ 138,000 | 0.04 KM |
| 5 Beagle Court | £ 108,000 | 0.04 KM |