Glyn Road, Clapton, London, E5
Keatons logo

Glyn Road, Clapton, London, E5

By Keatons

£ 900,000

Reviews

3 out of 5 stars

Keatons says ..

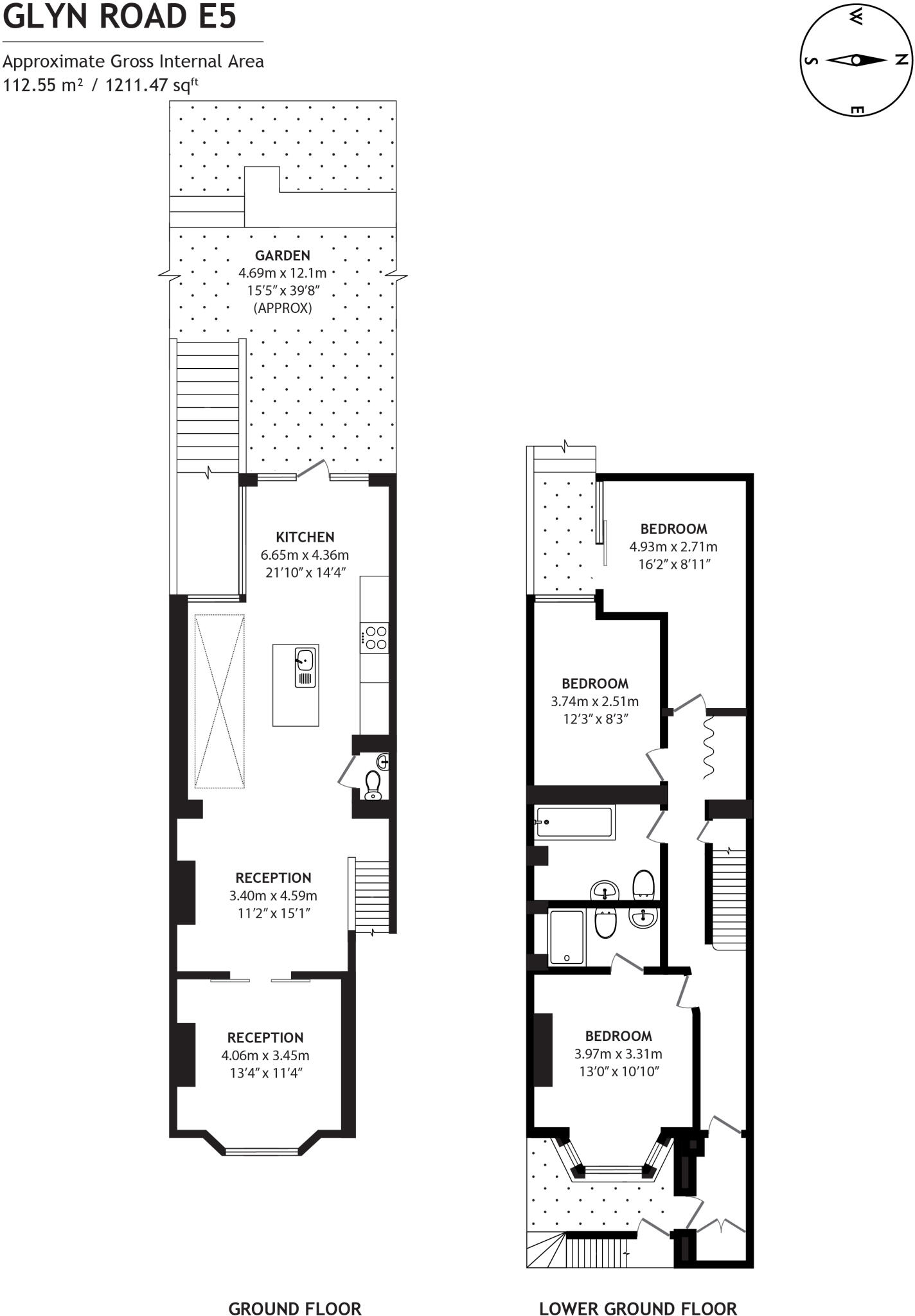
Forming part of the raised ground and lower ground floors of this imposing Victorian residence, this glorious garden maisonette offers the perfect blend of exquisite, stylish interiors and an array of charming, characterful features. It comprises its own front door, leading to an inviting recepti...

Property Oracle says ..

This four-bedroom, two-bathroom flat is located in Clapton, London, and is on the market for £900,000. The property boasts 1,211.48 sqft of living space and benefits from a well-maintained garden. The average price for properties in the area is £716,750, with an average price per sqft of £771. Considering the property’s size, location, and condition, the asking price appears to be slightly above average but within the range of comparable properties in the area. The property is within walking distance of Homerton station, providing convenient access to public transportation. Several well-regarded schools are also located nearby. The property has been recently renovated and is in excellent condition, as evidenced by the high-quality finishes and modern amenities. The garden is a particularly attractive feature, offering a private outdoor space in a densely populated area.

Therefore, we give this property 7 / 10. *Disclaimer: This is our option and does constitute a recommendation or financial advice. Do your own research. *

Price
7
Condition
9
Location
8
Land
7
Bedrooms
4
Bathrooms
2
Sqft (est)
1,211.48

The heatmap indicates the level of crime in the area. The color of the heatmap indicates the crime severity and recency.

Metrics Year-on-Year

Average area value
786,667.00 £
Decreased by 0.96 %
from 794,286.00 £
Est sale value
913,455.92 £
Decreased by 11.29 %
from 1,029,758.00 £
Average area rental value
2,720.00 £/mo
Decreased by 8.48 %
from 2,972.00 £/mo
Est letting value
2,422.96 £/mo
Decreased by 33.33 %
from 3,634.44 £/mo
Est rental Yield
4.15 %
Decreased by 7.57 %
from 4.49 %
Crime Rate
6.00 %
Unchanged by 0.00 %
from 6.00 %

Agent Activity

  • Keatons created the listing.

Nearby Schools

NameTypeOfstedDistance
Daubeney Children'S CentreChildren's Centre0.39 KM
Daubeney Primary SchoolCommunity SchoolRequires improvement0.41 KM
Ickburgh SchoolCommunity Special SchoolGood0.42 KM
St. Dominic'S Catholic Primary SchoolVoluntary Aided SchoolGood0.56 KM
Berger Primary SchoolCommunity SchoolGood0.66 KM

Images

Exterior Kitchen Bedroom 1 Garden Living Room/Kitchen Living Room Living Room/Kitchen Living Room Living Room/Kitchen Hallway Living Room/Kitchen Living Room/Kitchen Living Room/Kitchen Living Room/Kitchen Living Room Living Room/Kitchen Bedroom/Reception Bedroom/Reception Bedroom/Reception Bedroom 2 Bedroom 2 Bedroom 2 Garden Bedroom 1 En-Suite Bedroom 3 Bedroom 3 Bedroom 3 Bathroom Bathroom Stairs To Garden Garden Garden Garden Exterior

Nearby Streets

NameAverage PriceAverage SqftDistance
Crozier Terrace £ 000.00 KM
Thyme Walk £ 000.00 KM
Fisher Close £ 000.00 KM
Chowdhury Walk £ 625,00000.00 KM
Banister House £ 415,00000.00 KM

Nearby Transport

NameNLCTLCDistance
Homerton6979HMN0.39 KM
Hackney Central6977HKC1.76 KM
Hackney Wick6978HKW1.86 KM
Lea Bridge6927LEB1.89 KM
London Fields6966LOF2.15 KM

Nearby Listings

AddressPriceTypeScoreDistance
Glyn Road, Clapton, London, E5 £ 900,000BUY7 / 100.00 KM
Glyn Road, Hackney E5 £ 850,000BUYUnknown0.00 KM
Glyn Road, London, E5 £ 1,525,000BUYUnknown0.00 KM
Glyn Road, London, E5 £ 950,000BUY7 / 100.01 KM
Roding Road, E5 0DN £ 950,000BUYUnknown0.11 KM

Nearby Properties

AddressPriceDistance
75 Glyn Road £ 355,0000.01 KM
5 Glyn Road £ 1,000,0000.01 KM
29 Glyn Road £ 960,0000.01 KM
73 Glyn Road £ 828,0000.01 KM
45 Glyn Road £ 420,0000.01 KM