LA
Easter Crescent, Wishaw
By Lanarkshire Law Estate Agents Limited
£ 159,995
Reviews
3 out of 5 stars
Lanarkshire Law Estate Agents Limited says ..
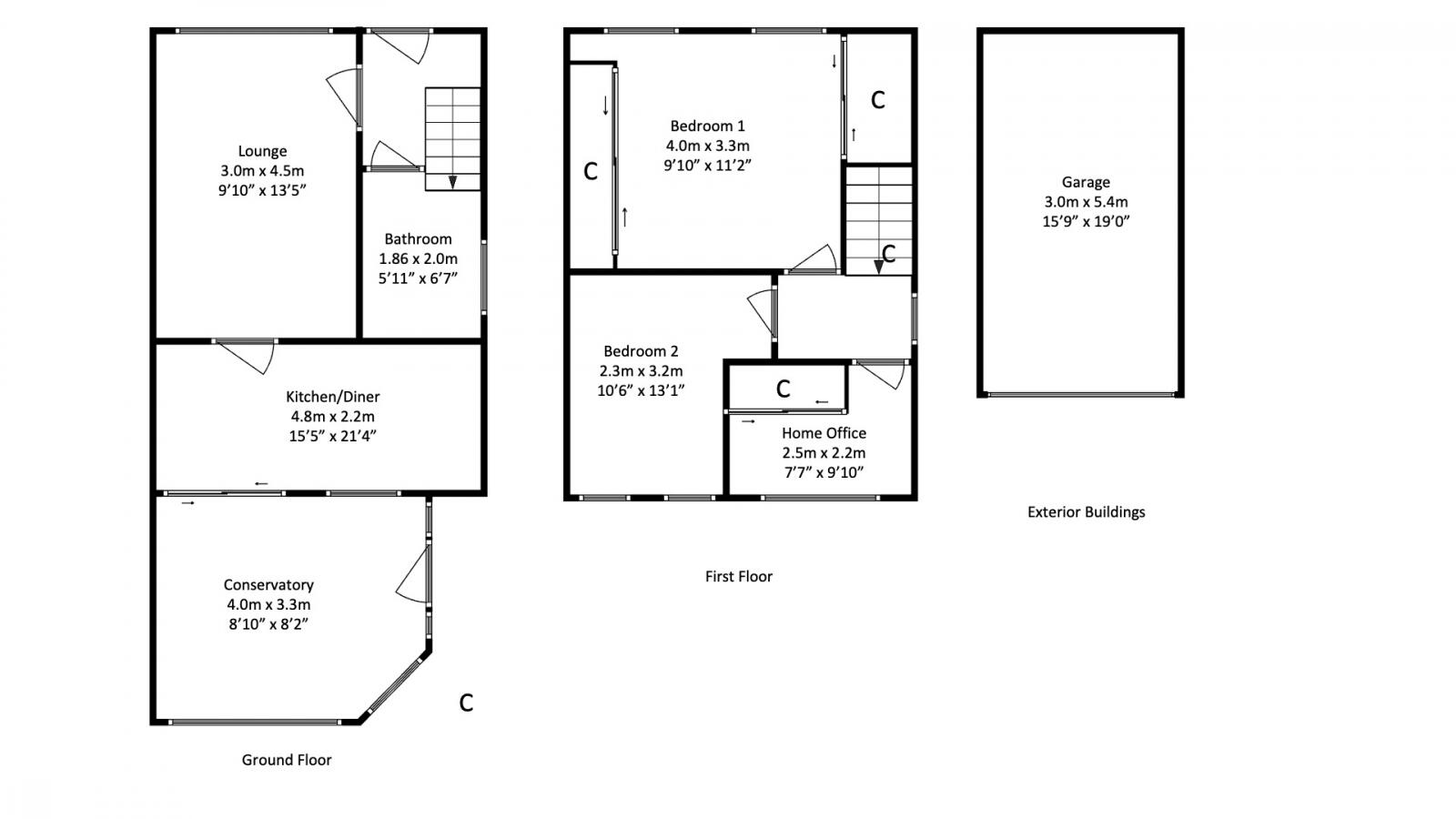
Lanarkshire Law Estate Agents are delighted to present this delightful three-bedroom semi-detached property is the perfect family home, offering both comfort and style throughout. Upon entering, you’re greeted by a welcoming entrance hallway that sets the tone for the rest of the property
Property Oracle says ..
Therefore, we give this property 6 / 10. *Disclaimer: This is our option and does constitute a recommendation or financial advice. Do your own research. *
- Price
- 7
- Condition
- 7
- Location
- 6
- Land
- 5
- Bedrooms
- 3
- Bathrooms
- 1
- Sqft (est)
- 102.30
The heatmap indicates the level of crime in the area. The color of the heatmap indicates the crime severity and recency.
Metrics Year-on-Year
- Average area value
- 925,000.00 £Increased by 139.51 %
- Est sale value
- 44,807.40 £Increased by 50.52 %
- Average area rental value
- 825.00 £/moDecreased by 10.71 %
- Est letting value
- 0.00 £/mo
- Est rental Yield
- 1.07 %Decreased by 62.72 %
- Crime Rate
- 0.00 %
from 386,204.00 £
from 29,769.30 £
from 924.00 £/mo
from 0.00 £/mo
from 2.87 %
from 0.00 %
Agent Activity
Lanarkshire Law Estate Agents Limited created the listing.
Images
Nearby Streets
| Name | Average Price | Average Sqft | Distance |
|---|---|---|---|
| Baillie Gardens | £ 0 | 0 | 0.00 KM |
| Hallside Gardens | £ 0 | 0 | 0.00 KM |
| Ronay Street | £ 79,998 | 0 | 0.00 KM |
| Foulsykes Road | £ 0 | 0 | 0.00 KM |
| Baird Place | £ 240,000 | 0 | 0.00 KM |
Nearby Transport
| Name | NLC | TLC | Distance |
|---|---|---|---|
| Cleland | 9718 | CEA | 3.29 KM |
| Wishaw | 9694 | WSH | 3.95 KM |
| Hartwood | 9246 | HTW | 6.72 KM |
| Shieldmuir | 9552 | SDM | 7.21 KM |
| Carluke | 9702 | CLU | 7.32 KM |
Nearby Listings
| Address | Price | Type | Score | Distance |
|---|---|---|---|---|
| Easter Crescent, Wishaw | £ 159,995 | BUY | 6 / 10 | 0.00 KM |
| Harper Crescent, Cambusnethan | £ 135,000 | BUY | 7 / 10 | 0.15 KM |
| Lewis Avenue, Wishaw, North Lanarkshire, ML2 | £ 149,000 | BUY | 7 / 10 | 0.21 KM |
| Fyneart Street, Cambusnethan, Wishaw | £ 100,000 | BUY | 7 / 10 | 0.31 KM |
| Lewis Avenue, Wishaw, North Lanarkshire, ML2 | £ 119,000 | BUY | 6 / 10 | 0.31 KM |