Simpsons says ..
This tucked away mid-terraced home has been well looked after and is offered for sale with no onward chain. Ideal for a buy to let investment, or for a first time purchase.
Property Oracle says ..
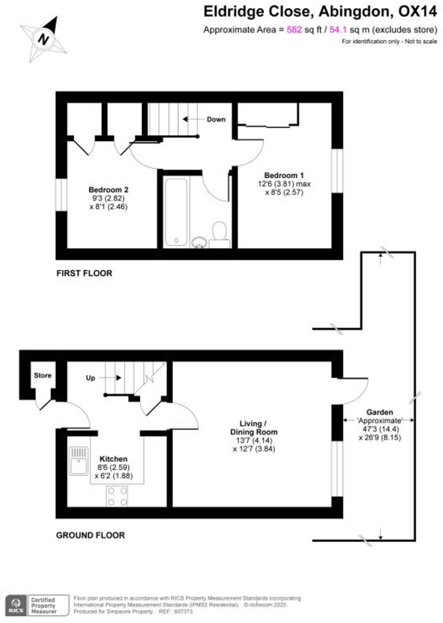
This is a two-bedroom terraced property located on Eldridge Close in Abingdon, Oxfordshire. The property is in reasonable condition and features a garden. The property is located close to local schools and transportation links. The listing price seems high for the area.
Therefore, we give this property 6 / 10. *Disclaimer: This is our option and does constitute a recommendation or financial advice. Do your own research. *
- Price
- 7
- Condition
- 7
- Location
- 7
- Land
- 6
- Bedrooms
- 2
- Bathrooms
- 1
- Sqft (est)
- 582.00
The heatmap indicates the level of crime in the area. The color of the heatmap indicates the crime severity and recency.
Metrics Year-on-Year
- Average area value
- 260,500.00 £Increased by 6.21 %
- Est sale value
- 148,992.00 £Increased by 6.22 %
- Average area rental value
- 1,100.00 £/moIncreased by 0.92 %
- Est letting value
- 582.00 £/moUnchanged by 0.00 %
- Est rental Yield
- 5.07 %Decreased by 4.88 %
- Crime Rate
- 4.00 %Unchanged by 0.00 %
Agent Activity
Simpsons created the listing.
Nearby Schools
| Name | Type | Ofsted | Distance |
|---|---|---|---|
| Long Furlong Primary School | Community School | Good | 0.52 KM |
| Fitzharrys School | Academy Converter | 0.57 KM | |
| Dunmore Primary School | Community School | Good | 0.58 KM |
| Abingdon And Witney College | Further Education | Good | 0.85 KM |
| St Nicolas Church Of England Primary School, Abingdon | Voluntary Controlled School | Good | 1.06 KM |
Images
Nearby Streets
| Name | Average Price | Average Sqft | Distance |
|---|---|---|---|
| Pen Lane | £ 0 | 0 | 0.00 KM |
| St Mary's Green | £ 250,000 | 0 | 0.00 KM |
| Lammas Close | £ 0 | 0 | 0.00 KM |
| Crane Avenue | £ 0 | 0 | 0.00 KM |
| Prosser Way | £ 0 | 0 | 0.00 KM |
Nearby Transport
| Name | NLC | TLC | Distance |
|---|---|---|---|
| Radley | 3118 | RAD | 4.58 KM |
| Culham | 3107 | CUM | 6.19 KM |
| Appleford | 3109 | APF | 6.81 KM |
| Oxford | 3115 | OXF | 7.58 KM |
| Didcot Parkway | 3030 | DID | 9.44 KM |
Nearby Listings
| Address | Price | Type | Score | Distance |
|---|---|---|---|---|
| Eldridge Close, Abingdon, OX14 | £ 180,000 | BUY | 6 / 10 | 0.00 KM |
| Eldridge Close, Abingdon, OX14 | £ 160,000 | BUY | 6 / 10 | 0.00 KM |
| Eldridge Close, Abingdon, OX14 | £ 399,950 | BUY | 7 / 10 | 0.00 KM |
| Eldridge Close, Abingdon, OX14 | £ 310,000 | BUY | 6 / 10 | 0.00 KM |
| Eldridge Close, Abingdon | £ 325,000 | BUY | 6 / 10 | 0.01 KM |
Nearby Properties
| Address | Price | Distance |
|---|---|---|
| 2 Eldridge Close | £ 249,950 | 0.01 KM |
| 24 Eldridge Close | £ 207,500 | 0.01 KM |
| 14 Eldridge Close | £ 138,000 | 0.01 KM |
| 6 Eldridge Close | £ 234,000 | 0.01 KM |
| 5 Eldridge Close | £ 145,000 | 0.01 KM |