A
Tulip Road, Emersons Green, Bristol
By A J Homes
£ 410,000
Reviews
3 out of 5 stars
A J Homes says ..
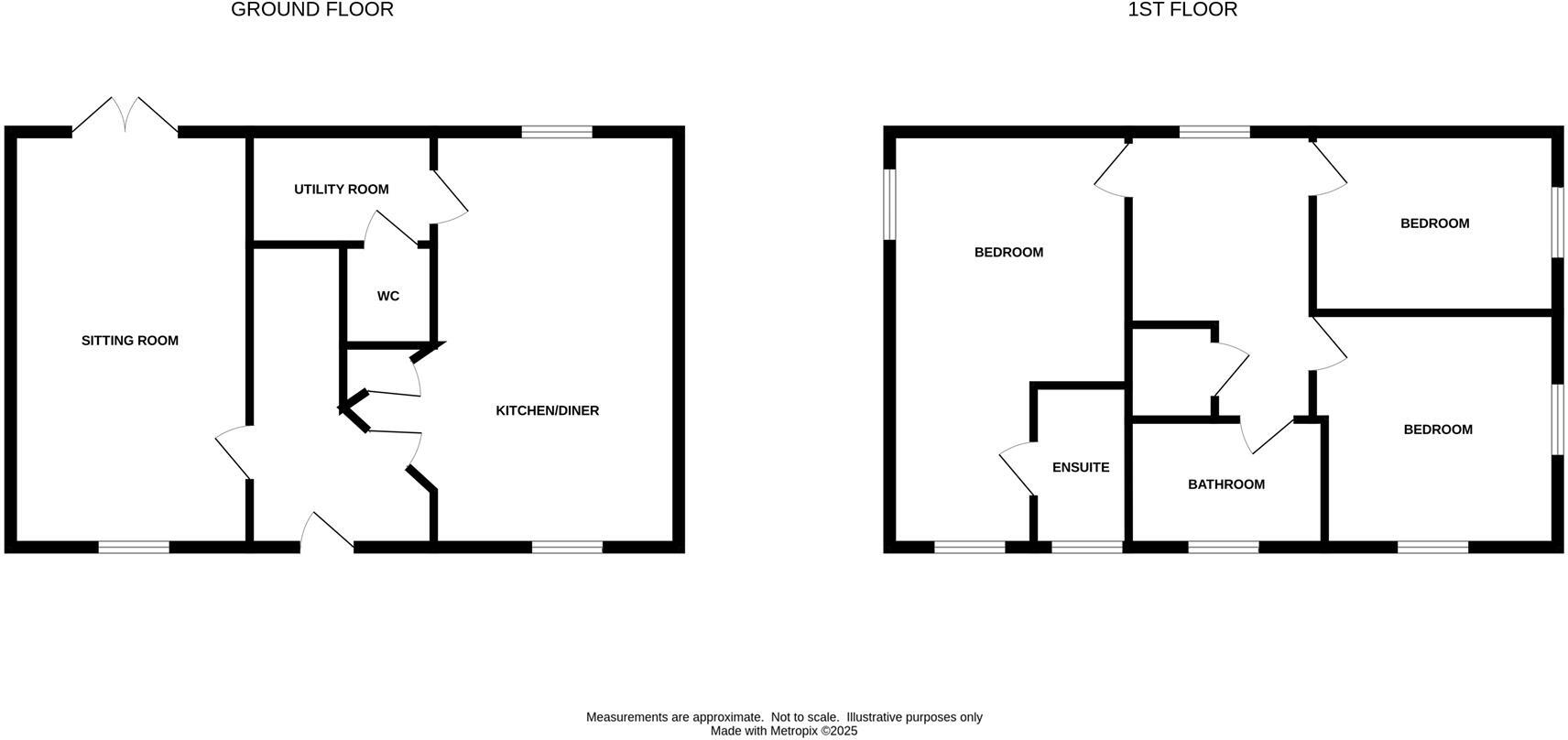
This modern detached home Persimmon home on Tulip Road offers contemporary living. With three well-proportioned bedrooms, this property is ideal for families or those seeking extra space. The master bedroom benefits from an en-suite shower room. There is a spacious lounge, which invites ...
Property Oracle says ..
Therefore, we give this property 7 / 10. *Disclaimer: This is our option and does constitute a recommendation or financial advice. Do your own research. *
- Price
- 6
- Condition
- 8
- Location
- 8
- Land
- 7
- Bedrooms
- 3
- Bathrooms
- 3
- Sqft (est)
- 923.00
The heatmap indicates the level of crime in the area. The color of the heatmap indicates the crime severity and recency.
Metrics Year-on-Year
- Average area value
- 399,497.00 £Decreased by 1.14 %
- Est sale value
- 410,735.00 £Increased by 19.62 %
- Average area rental value
- 1,402.00 £/moDecreased by 1.61 %
- Est letting value
- 923.00 £/moUnchanged by 0.00 %
- Est rental Yield
- 4.21 %Decreased by 0.47 %
- Crime Rate
- 47.00 %Unchanged by 0.00 %
from 404,099.00 £
from 343,356.00 £
from 1,425.00 £/mo
from 923.00 £/mo
from 4.23 %
from 47.00 %
Agent Activity
A J Homes created the listing.
Nearby Schools
| Name | Type | Ofsted | Distance |
|---|---|---|---|
| Lyde Green Primary School | Academy Sponsor Led | Good | 0.36 KM |
| Mangotsfield Church Of England Voluntary Controlled Primary School | Voluntary Controlled School | Outstanding | 1.87 KM |
| Emersons Green Primary School | Community School | Good | 1.91 KM |
| Blackhorse Primary School | Community School | Good | 2.07 KM |
| The Manor Church Of England Primary School | Voluntary Controlled School | Good | 2.52 KM |
Images
Nearby Streets
| Name | Average Price | Average Sqft | Distance |
|---|---|---|---|
| Lobelia Road | £ 300,000 | 0 | 0.00 KM |
| Marigold Close | £ 0 | 0 | 0.00 KM |
| Angelica Drive | £ 0 | 0 | 0.00 KM |
| Oakwood Drive | £ 0 | 0 | 0.00 KM |
| Chamomile Crescent | £ 0 | 0 | 0.00 KM |
Nearby Transport
| Name | NLC | TLC | Distance |
|---|---|---|---|
| Yate | 3380 | YAE | 5.94 KM |
| Bristol Parkway | 3230 | BPW | 8.37 KM |
| Keynsham | 3237 | KYN | 9.66 KM |
Nearby Listings
| Address | Price | Type | Score | Distance |
|---|---|---|---|---|
| Tulip Road, Lyde Green, Bristol, BS16 7NG | £ 410,000 | BUY | 8 / 10 | 0.00 KM |
| Tulip Road, Emersons Green, Bristol | £ 410,000 | BUY | 7 / 10 | 0.00 KM |
| Willowherb Road, Emersons Green, Bristol, BS16 7GT | £ 369,995 | BUY | 8 / 10 | 0.05 KM |
| Willowherb Road, Lyde Green | £ 360,000 | BUY | 7 / 10 | 0.06 KM |
| Tulip Road, Emersons Green, Bristol | £ 370,000 | BUY | 7 / 10 | 0.08 KM |
Nearby Properties
| Address | Price | Distance |
|---|---|---|
| 114 Jenner Boulevard | £ 291,995 | 0.17 KM |
| 150 Willowherb Road | £ 345,000 | 0.17 KM |
| 152 Willowherb Road | £ 345,000 | 0.17 KM |
| 231 Willowherb Road | £ 385,000 | 0.18 KM |
| 161 Willowherb Road | £ 290,000 | 0.18 KM |