Parkbrook Road, Wythenshawe, M23
By The Good Estate Agent
£ 330,000
Reviews
3 out of 5 stars
The Good Estate Agent says ..
New to the mark...
Property Oracle says ..
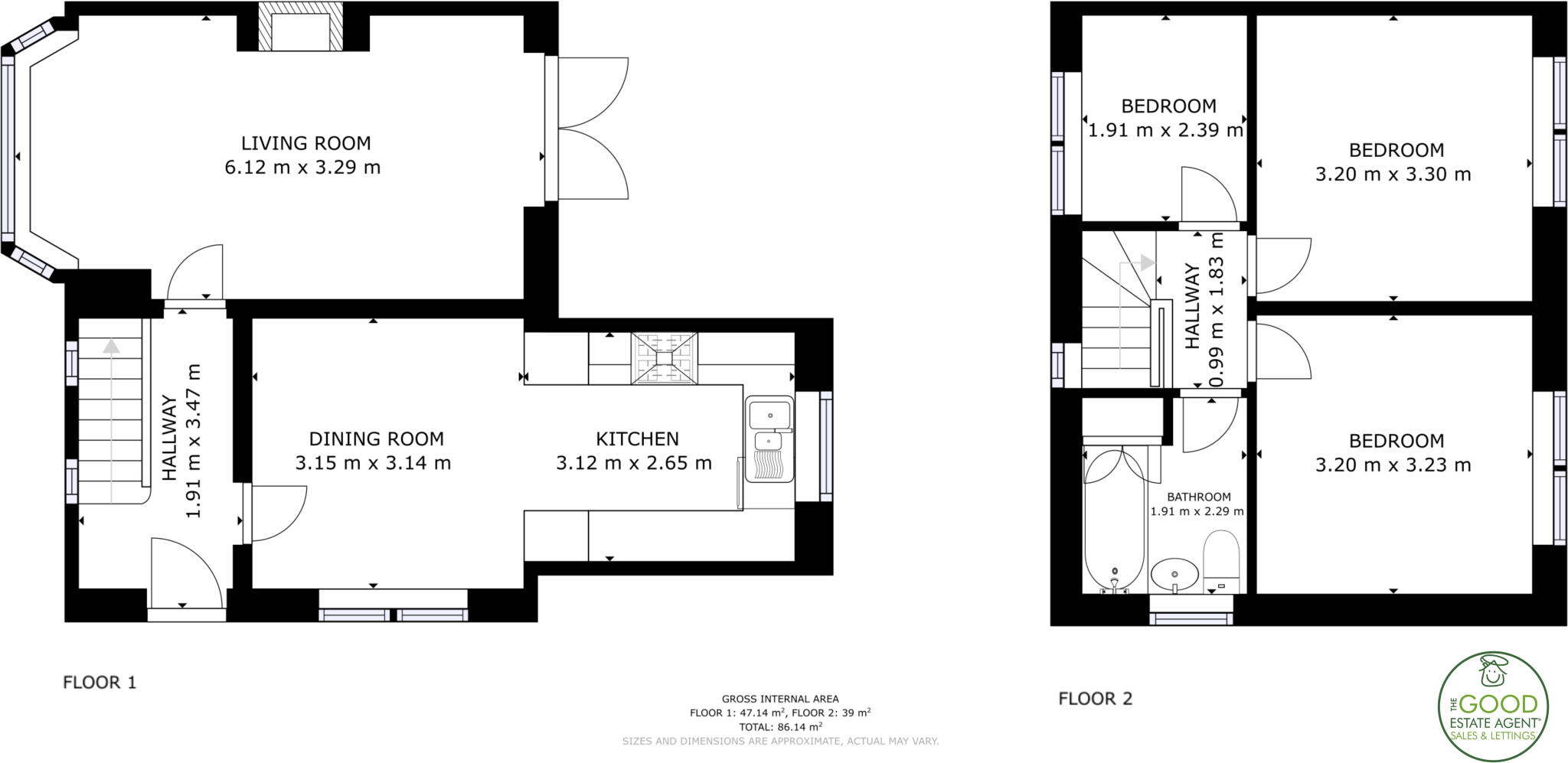
This is a well-presented semi-detached property on Parkbrook Road in Wythenshawe. The house benefits from a modern kitchen and bathroom, a fireplace, and a garden with a shed. The property is conveniently located near schools and transportation links, including Manchester Airport. The asking price of £330,000 is reasonable given the property’s condition, features, and location.
Therefore, we give this property 7 / 10. *Disclaimer: This is our option and does constitute a recommendation or financial advice. Do your own research. *
- Price
- 7
- Condition
- 8
- Location
- 7
- Land
- 7
- Bedrooms
- 3
- Bathrooms
- 1
The heatmap indicates the level of crime in the area. The color of the heatmap indicates the crime severity and recency.
Metrics Year-on-Year
- Average area value
- 480,222.00 £Decreased by 47.72 %
- Average area rental value
- 1,868.00 £/moIncreased by 9.11 %
- Est rental Yield
- 4.67 %Increased by 108.48 %
- Crime Rate
- 0.00 %
Agent Activity
The Good Estate Agent created the listing.
Nearby Schools
| Name | Type | Ofsted | Distance |
|---|---|---|---|
| St Aidan'S Catholic Primary School | Voluntary Aided School | Good | 1.01 KM |
| Benchill Primary School | Foundation School | Good | 1.05 KM |
| Rack House Primary School | Community School | Good | 1.20 KM |
| Baguley Hall Primary School | Foundation School | Good | 1.25 KM |
| Baguley Sure Start Childrens Centre | Children's Centre | 1.34 KM |
Images
Nearby Streets
| Name | Average Price | Average Sqft | Distance |
|---|---|---|---|
| Haybarn Road | £ 0 | 0 | 0.00 KM |
| Aberford Road | £ 260,000 | 0 | 0.00 KM |
| Marlcroft Close | £ 390,000 | 0 | 0.00 KM |
| Wythenshawe Road | £ 120,000 | 0 | 0.00 KM |
| Moat Gardens | £ 0 | 0 | 0.00 KM |
Nearby Transport
| Name | NLC | TLC | Distance |
|---|---|---|---|
| Manchester Airport | 2961 | MIA | 3.90 KM |
| Gatley | 2953 | GTY | 4.94 KM |
| Heald Green | 2860 | HDG | 5.47 KM |
| East Didsbury | 2949 | EDY | 5.99 KM |
| Styal | 2868 | SYA | 6.92 KM |
Nearby Listings
| Address | Price | Type | Score | Distance |
|---|---|---|---|---|
| Parkbrook Road, Wythenshawe, M23 | £ 330,000 | BUY | 7 / 10 | 0.00 KM |
| Parkbrook Road, Baguley | £ 300,000 | BUY | 6 / 10 | 0.01 KM |
| Altrincham Road, Wythenshawe, M23 | £ 290,000 | BUY | 6 / 10 | 0.04 KM |
| Parkbrook Road, Manchester, M23 | £ 360,000 | BUY | Unknown | 0.06 KM |
| Parkbrook Road, Wythenshawe, M23 | £ 352,000 | BUY | 7 / 10 | 0.06 KM |
Nearby Properties
| Address | Price | Distance |
|---|---|---|
| 50 Parkbrook Road | £ 185,000 | 0.00 KM |
| 52 Parkbrook Road | £ 165,000 | 0.00 KM |
| 28 Parkbrook Road | £ 245,000 | 0.00 KM |
| 12 Parkbrook Road | £ 152,500 | 0.00 KM |
| 42 Parkbrook Road | £ 240,000 | 0.00 KM |