Mooved says ..
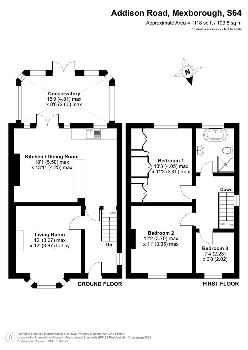
*NO ONWARD CHAIN* Mooved are proud to present this spacious and characterful three-bedroom semi-detached property, ideally located on Addison Road in the ever-popular town of Mexborough, S64
Property Oracle says ..
Therefore, we give this property 6 / 10. *Disclaimer: This is our option and does constitute a recommendation or financial advice. Do your own research. *
- Price
- 8
- Condition
- 4
- Location
- 7
- Land
- 6
- Bedrooms
- 3
- Bathrooms
- 1
- Sqft (est)
- 862.32
The heatmap indicates the level of crime in the area. The color of the heatmap indicates the crime severity and recency.
Metrics Year-on-Year
- Average area value
- 162,000.00 £Increased by 9.80 %
- Est sale value
- 138,833.52 £Decreased by 8.00 %
- Average area rental value
- 597.00 £/moDecreased by 12.46 %
- Est letting value
- 0.00 £/mo
- Est rental Yield
- 4.42 %Decreased by 20.36 %
- Crime Rate
- 24.00 %Unchanged by 0.00 %
from 147,536.00 £
from 150,906.00 £
from 682.00 £/mo
from 0.00 £/mo
from 5.55 %
from 24.00 %
Agent Activity
Mooved marked this listing as sold.
Mooved created the listing.
Nearby Schools
| Name | Type | Ofsted | Distance |
|---|---|---|---|
| New Pastures Primary School | Academy Converter | 0.53 KM | |
| Mexborough St John The Baptist Cofe Primary School | Academy Converter | Good | 0.80 KM |
| Windhill Primary School | Community School | Good | 0.81 KM |
| Montagu Academy | Academy Sponsor Led | 1.54 KM | |
| The Laurel Academy | Academy Sponsor Led | 2.27 KM |
Images
Nearby Streets
| Name | Average Price | Average Sqft | Distance |
|---|---|---|---|
| Haydock Close | £ 150,000 | 0 | 0.00 KM |
| Bronte Grove | £ 250,000 | 0 | 0.00 KM |
| Woodland View | £ 170,000 | 0 | 0.00 KM |
| Cobden Avenue | £ 0 | 0 | 0.00 KM |
| Wincanton Close | £ 499,995 | 0 | 0.00 KM |
Nearby Transport
| Name | NLC | TLC | Distance |
|---|---|---|---|
| Mexborough | 6707 | MEX | 1.53 KM |
| Swinton (South Yorks) | 6686 | SWN | 3.48 KM |
| Bolton-Upon-Dearne | 8536 | BTD | 4.54 KM |
| Conisbrough | 6488 | CNS | 4.75 KM |
| Goldthorpe | 8284 | GOE | 5.71 KM |
Nearby Listings
| Address | Price | Type | Score | Distance |
|---|---|---|---|---|
| Addison Road, Mexborough, S64 0 | £ 135,000 | BUY | 6 / 10 | 0.00 KM |
| Addison Road, Mexborough | £ 160,000 | BUY | Unknown | 0.03 KM |
| Addison Road, Mexborough | £ 120,000 | BUY | 6 / 10 | 0.03 KM |
| Addison Road, Mexborough | £ 95,000 | BUY | Unknown | 0.03 KM |
| Byron Road, Mexborough | £ 110,000 | BUY | 5 / 10 | 0.07 KM |
Nearby Properties
| Address | Price | Distance |
|---|---|---|
| 16 Addison Road | £ 79,000 | 0.03 KM |
| 22 Addison Road | £ 71,000 | 0.03 KM |
| 3 Addison Road | £ 135,000 | 0.03 KM |
| 7 Addison Road | £ 120,000 | 0.03 KM |
| 19 Morton Road | £ 78,000 | 0.06 KM |