TH
Court Road, Orpington
By Thomas Brown Estates
£ 650,000
Reviews
3 out of 5 stars
Thomas Brown Estates says ..
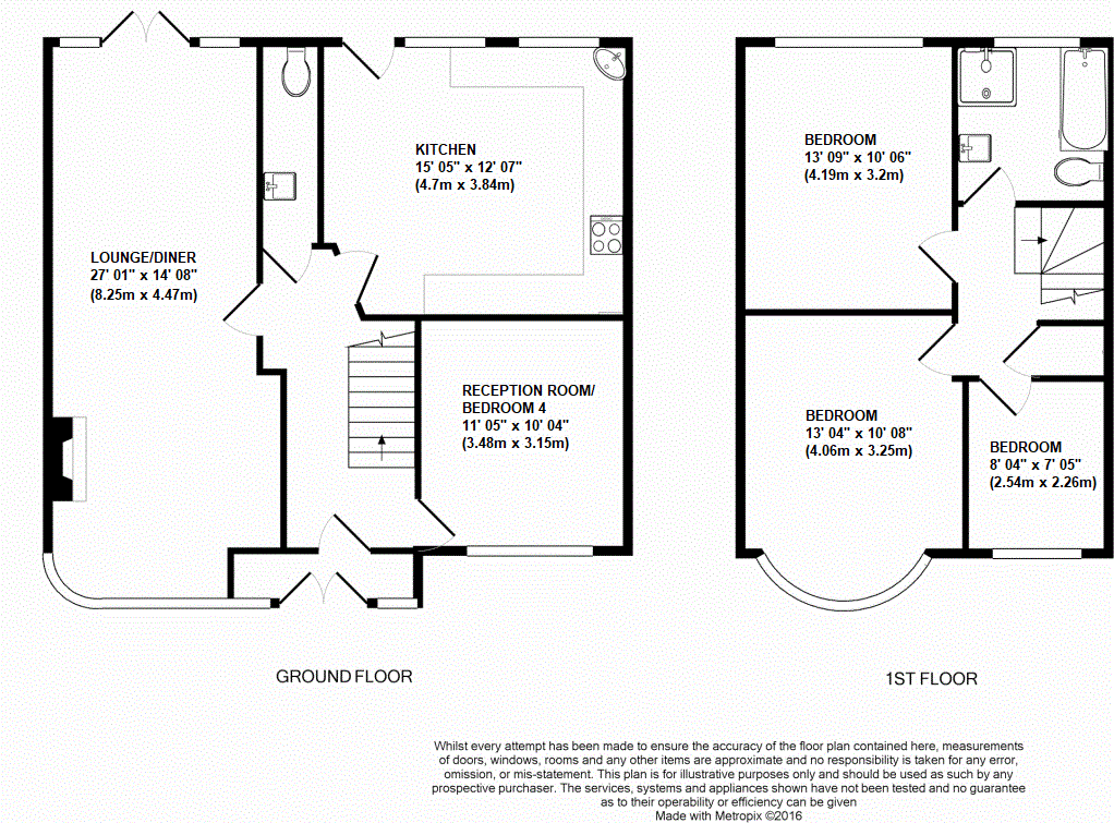
Thomas Brown Estates are delighted to offer this side extended, three/four bedroom detached property situated within walking distance to Orpington High Street and Station, boasting the potential to extend further into the loft space and/or across the rear (STPP) as many have done in the locality....
Property Oracle says ..
Therefore, we give this property 7 / 10. *Disclaimer: This is our option and does constitute a recommendation or financial advice. Do your own research. *
- Price
- 6
- Condition
- 7
- Location
- 8
- Land
- 7
- Bedrooms
- 4
- Bathrooms
- 1
- Sqft (est)
- 1,078.11
The heatmap indicates the level of crime in the area. The color of the heatmap indicates the crime severity and recency.
Metrics Year-on-Year
- Average area value
- 515,714.00 £Decreased by 11.04 %
- Est sale value
- 468,977.85 £Unchanged by 0.00 %
- Average area rental value
- 1,870.00 £/moIncreased by 8.03 %
- Est letting value
- 1,078.11 £/moUnchanged by 0.00 %
- Est rental Yield
- 4.35 %Increased by 21.51 %
- Crime Rate
- 9.00 %Unchanged by 0.00 %
from 579,739.00 £
from 468,977.85 £
from 1,731.00 £/mo
from 1,078.11 £/mo
from 3.58 %
from 9.00 %
Agent Activity
Thomas Brown Estates created the listing.
Nearby Schools
| Name | Type | Ofsted | Distance |
|---|---|---|---|
| Blenheim Children And Family Centre | Children's Centre | 0.72 KM | |
| Harris Academy Orpington | Academy Sponsor Led | Requires improvement | 0.73 KM |
| St Olave'S And St Saviour'S Grammar School | Voluntary Aided School | Outstanding | 0.85 KM |
| Bromley Beacon Academy | Academy Special Sponsor Led | Good | 0.87 KM |
| Blenheim Primary School | Academy Converter | Good | 0.88 KM |
Images
Nearby Streets
| Name | Average Price | Average Sqft | Distance |
|---|---|---|---|
| Lych Gate Road | £ 300,000 | 0 | 0.00 KM |
| Dryden Way | £ 0 | 0 | 0.00 KM |
| Eton Road | £ 525,000 | 0 | 0.00 KM |
| Court Road | £ 0 | 0 | 0.00 KM |
| Stanton Close | £ 0 | 0 | 0.00 KM |
Nearby Transport
| Name | NLC | TLC | Distance |
|---|---|---|---|
| Chelsfield | 5098 | CLD | 1.66 KM |
| Orpington | 5122 | ORP | 2.32 KM |
| St Mary Cray | 5073 | SMY | 2.66 KM |
| Knockholt | 5109 | KCK | 3.65 KM |
| Petts Wood | 5123 | PET | 4.38 KM |
Nearby Listings
| Address | Price | Type | Score | Distance |
|---|---|---|---|---|
| Court Road, Orpington | £ 650,000 | BUY | 7 / 10 | 0.00 KM |
| Poynings Close, Orpington, BR6 | £ 550,000 | BUY | 6 / 10 | 0.08 KM |
| Avalon Road, Orpington | £ 785,000 | BUY | 7 / 10 | 0.10 KM |
| Court Road, Orpington, Kent, BR6 9DF | £ 750,000 | BUY | Unknown | 0.13 KM |
| Court Road, Orpington, BR6 | £ 525,000 | BUY | 7 / 10 | 0.13 KM |
Nearby Properties
| Address | Price | Distance |
|---|---|---|
| 7 Poynings Close | £ 536,000 | 0.09 KM |
| 3 Poynings Close | £ 498,000 | 0.09 KM |
| 6 Poynings Close | £ 425,000 | 0.09 KM |
| 14 Avalon Road | £ 412,500 | 0.12 KM |
| 23 Avalon Road | £ 480,000 | 0.12 KM |