Gloucester Road, Kingston Upon Thames
By Gibson Lane
£ 850,000
Reviews
4 out of 5 stars
Gibson Lane says ..
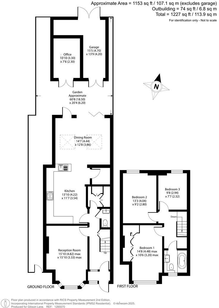
This beautifully presented three-bedroom semi-detached home offers a delightful blend of modern living and traditional comfort providing spacious accommodation arranged over two floors. The ground floor provides a fantastic front reception room with large bay window and fireplace, downs...
Property Oracle says ..
This property is a three-bedroom semi-detached house located on Gloucester Road in Norbiton, Kingston Upon Thames. The property benefits from a modern extension to the rear, creating a spacious open-plan kitchen/dining/living area. The extension also leads to a well-maintained garden. The property is close to Norbiton train station, providing convenient access to London Waterloo. There are also several schools nearby, including St Paul’s C of E Primary School which has a good Ofsted rating. The list price of £850,000 is higher than the average price for the area (£492,892), but this is likely due to the property’s size (2,435 sqft), modern extension, and desirable location. Nearby comparable properties on Gloucester Road range from £495,000 to £950,000, with the average price per sqft in the area being £656. While the property is in good condition and has a garden, the lack of information on nearby property sqft makes a definitive price comparison challenging.
Therefore, we give this property 8 / 10. *Disclaimer: This is our option and does constitute a recommendation or financial advice. Do your own research. *
- Price
- 7
- Condition
- 9
- Location
- 9
- Land
- 7
- Bedrooms
- 3
- Bathrooms
- 1
- Sqft (est)
- 2,435.00
- Lot (est)
- 1,227.00
The heatmap indicates the level of crime in the area. The color of the heatmap indicates the crime severity and recency.
Metrics Year-on-Year
- Average area value
- 511,100.00 £Decreased by 7.14 %
- Est sale value
- 2,147,670.00 £Increased by 34.04 %
- Average area rental value
- 2,056.00 £/moDecreased by 0.24 %
- Est letting value
- 7,305.00 £/moIncreased by 50.00 %
- Est rental Yield
- 4.83 %Increased by 7.57 %
- Crime Rate
- 2.00 %Unchanged by 0.00 %
Agent Activity
Gibson Lane created the listing.
Nearby Schools
| Name | Type | Ofsted | Distance |
|---|---|---|---|
| Park Hill School | Other Independent School | 0.94 KM | |
| St Paul'S Cofe Primary School, Kingston Hill | Voluntary Aided School | Good | 0.97 KM |
| Kingston Hill Children'S Centre | Children's Centre Linked Site | 1.00 KM | |
| Alexandra Primary School | Community School | Requires improvement | 1.01 KM |
| Norbiton Children'S Centre | Children's Centre | 1.15 KM |
Images
Nearby Streets
| Name | Average Price | Average Sqft | Distance |
|---|---|---|---|
| Neville Road | £ 1,225,000 | 0 | 0.00 KM |
| Sylvestrus Close | £ 0 | 0 | 0.00 KM |
| St Peters Road | £ 0 | 0 | 0.00 KM |
| Gloucester Road | £ 0 | 0 | 0.00 KM |
| Backwater Place | £ 0 | 0 | 0.00 KM |
Nearby Transport
| Name | NLC | TLC | Distance |
|---|---|---|---|
| Norbiton | 5568 | NBT | 0.38 KM |
| Berrylands | 5581 | BRS | 1.17 KM |
| Kingston | 5565 | KNG | 1.93 KM |
| Surbiton | 5571 | SUR | 2.86 KM |
| New Malden | 5567 | NEM | 3.16 KM |
Nearby Listings
| Address | Price | Type | Score | Distance |
|---|---|---|---|---|
| Gloucester Road, Kingston Upon Thames | £ 850,000 | BUY | 8 / 10 | 0.00 KM |
| Gloucester Road, Kingston Upon Thames | £ 950,000 | BUY | Unknown | 0.01 KM |
| Gloucester Road, Kingston Upon Thames | £ 875,000 | BUY | 6 / 10 | 0.04 KM |
| Gloucester Road, Kingston Upon Thames, KT1 | £ 925,000 | BUY | 6 / 10 | 0.04 KM |
| Gloucester Road, Kingston Upon Thames, KT1 | £ 575,000 | BUY | Unknown | 0.07 KM |
Nearby Properties
| Address | Price | Distance |
|---|---|---|
| 124 Gloucester Road | £ 368,000 | 0.04 KM |
| 104 Gloucester Road | £ 370,000 | 0.04 KM |
| 110 Gloucester Road | £ 825,000 | 0.04 KM |
| 102 Gloucester Road | £ 495,000 | 0.04 KM |
| 116 Gloucester Road | £ 855,000 | 0.04 KM |