DA
Off Leake Road, Gotham, Nottinghamshire, NG11 0JN
By Davidsons Homes
£ 325,000
Reviews
3 out of 5 stars
Davidsons Homes says ..
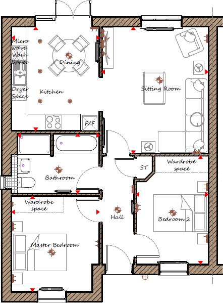
Full of charm, this Georgian-inspired 2 bedroom bungalow, designed for modern living, is perfect for downsizers. Discover the open plan kitchen/dining room with patio doors leading to the private garden and spacious living room.
Property Oracle says ..
Therefore, we give this property 6 / 10. *Disclaimer: This is our option and does constitute a recommendation or financial advice. Do your own research. *
- Price
- 6
- Condition
- 9
- Location
- 7
- Land
- 3
- Bedrooms
- 2
- Bathrooms
- 0
- Sqft (est)
- 482.82
The heatmap indicates the level of crime in the area. The color of the heatmap indicates the crime severity and recency.
Metrics Year-on-Year
- Average area value
- 307,772.00 £Increased by 19.74 %
- Est sale value
- 252,514.86 £Increased by 90.88 %
- Average area rental value
- 871.00 £/moDecreased by 8.32 %
- Est letting value
- 482.82 £/moUnchanged by 0.00 %
- Est rental Yield
- 3.40 %Decreased by 23.42 %
- Crime Rate
- 17.00 %Unchanged by 0.00 %
from 257,040.00 £
from 132,292.68 £
from 950.00 £/mo
from 482.82 £/mo
from 4.44 %
from 17.00 %
Agent Activity
Davidsons Homes created the listing.
Nearby Schools
| Name | Type | Ofsted | Distance |
|---|---|---|---|
| Gotham Primary School | Community School | Requires improvement | 0.62 KM |
| Highbank Primary And Nursery School | Academy Sponsor Led | Good | 4.28 KM |
| Keyworth Children'S Centre | Children's Centre | 4.63 KM | |
| Lantern Lane Primary And Nursery School | Community School | Good | 4.64 KM |
| East Leake Children'S Centre | Children's Centre | 4.64 KM |
Images
Nearby Streets
| Name | Average Price | Average Sqft | Distance |
|---|---|---|---|
| Home Farm Close | £ 0 | 0 | 0.00 KM |
| Windmill Close | £ 0 | 0 | 0.00 KM |
Nearby Transport
| Name | NLC | TLC | Distance |
|---|---|---|---|
| Attenborough | 1624 | ATB | 5.56 KM |
| East Midlands Parkway | 1901 | EMD | 6.36 KM |
| Beeston | 1625 | BEE | 6.40 KM |
| Long Eaton | 1829 | LGE | 9.36 KM |
| Loughborough | 1897 | LBO | 9.45 KM |
Nearby Listings
| Address | Price | Type | Score | Distance |
|---|---|---|---|---|
| Off Leake Road, Gotham, Nottinghamshire, NG11 0JN | £ 300,000 | BUY | 6 / 10 | 0.00 KM |
| Off Leake Road, Gotham, Nottinghamshire, NG11 0JN | £ 390,000 | BUY | 6 / 10 | 0.00 KM |
| Off Leake Road, Gotham, Nottinghamshire, NG11 0JN | £ 280,000 | BUY | 6 / 10 | 0.00 KM |
| Off Leake Road, Gotham, Nottinghamshire, NG11 0JN | £ 325,000 | BUY | 6 / 10 | 0.00 KM |
| Off Leake Road, Gotham, Nottinghamshire, NG11 0JN | £ 300,000 | BUY | 6 / 10 | 0.00 KM |
Nearby Properties
| Address | Price | Distance |
|---|---|---|
| 10 Monks Lane | £ 205,000 | 0.20 KM |
| 1 Monks Lane | £ 388,000 | 0.20 KM |
| 24 Hill Road | £ 380,000 | 0.25 KM |
| 34 Hill Road | £ 412,000 | 0.25 KM |
| 14 Hill Road | £ 435,000 | 0.25 KM |