Reading Road, Woodley, Reading
RO

Reading Road, Woodley, Reading

By Romans

£ 550,000

Reviews

3 out of 5 stars

Romans says ..

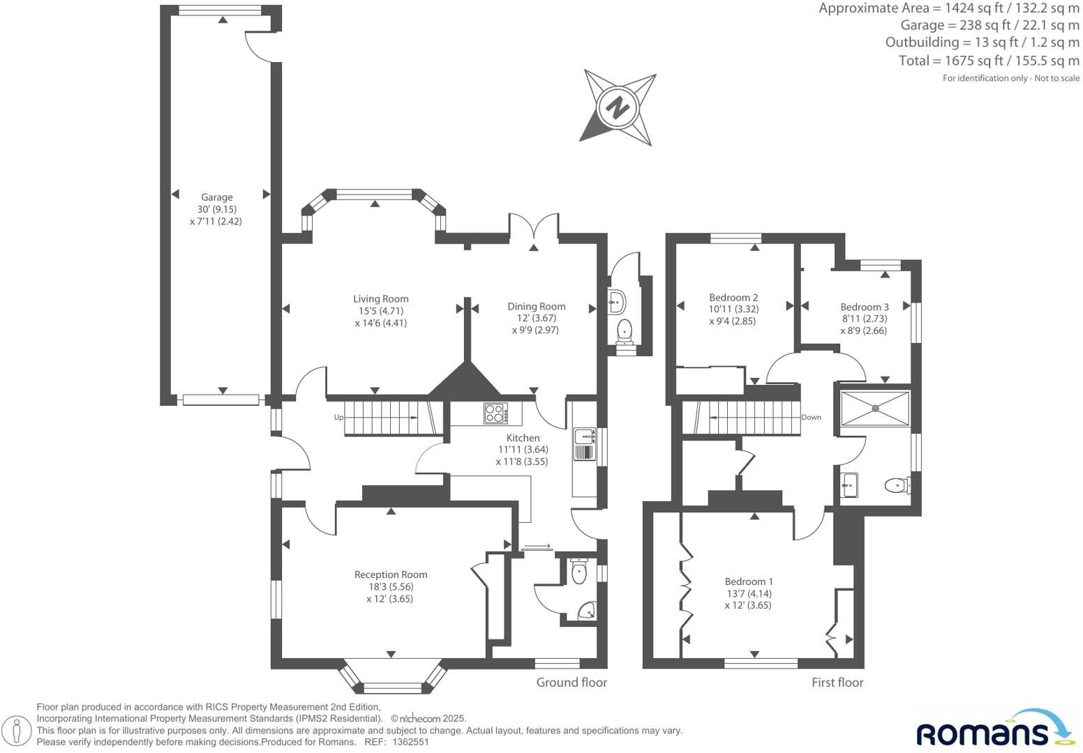
Romans are delighted to bring to the market this well-presented 3 bedroom detached chalet style home set in a large plot on a sought after road in North Woodley. The property benefits from 3 reception rooms, 3 good size bedrooms, double length garage, large garden, and potential to extend subject...

Property Oracle says ..

This is a detached property located on Reading Road, Woodley. It features three bedrooms and one bathroom, with a total square footage of 1,675. The property includes a large garden with mature trees, a greenhouse, and a shed. The interior features a modern kitchen and bathroom, but some areas could benefit from updating. The location is well-connected, with access to transportation and nearby schools, including highly-rated primary and secondary schools. The list price of £550,000 appears reasonable compared to the average area price of £875,000.

Therefore, we give this property 7 / 10. *Disclaimer: This is our option and does constitute a recommendation or financial advice. Do your own research. *

Price
7
Condition
7
Location
7
Land
8
Bedrooms
3
Bathrooms
1
Sqft (est)
1,675.00

The heatmap indicates the level of crime in the area. The color of the heatmap indicates the crime severity and recency.

Metrics Year-on-Year

Average area value
875,000.00 £
Increased by 62.64 %
from 537,995.00 £
Est sale value
715,225.00 £
Increased by 23.05 %
from 581,225.00 £
Average area rental value
1,792.00 £/mo
Increased by 12.63 %
from 1,591.00 £/mo
Est letting value
0.00 £/mo
Decreased by 100.00 %
from 1,675.00 £/mo
Est rental Yield
2.46 %
Decreased by 30.70 %
from 3.55 %
Crime Rate
7.00 %
Unchanged by 0.00 %
from 7.00 %

Agent Activity

  • Romans created the listing.

Nearby Schools

NameTypeOfstedDistance
St Dominic Savio Catholic Primary SchoolVoluntary Aided SchoolOutstanding0.49 KM
The Bulmershe SchoolCommunity SchoolGood0.75 KM
Addington SchoolCommunity Special SchoolOutstanding0.86 KM
Highwood Primary SchoolCommunity SchoolRequires improvement0.88 KM
The Ambleside CentreLocal Authority Nursery SchoolOutstanding0.97 KM

Images

1362551-15-68e52f... 1362551-6-68e52f3... 1362551-22-68e52f... 1362551-17-68e52f... 1362551-16-68e52f... 1362551-5-68e52f2... 1362551-12-68e52f... 1362551-13-68e52f... 1362551-18-68e52f... 1362551-24-68e52f... 1362551-21-68e52f... 1362551-9-68e52f4... 1362551-20-68e52f... 1362551-14-68e52f... 1362551-10-68e52f... 1362551-25-68e52f... 1362551-7-68e52f3... 1362551-4-68e52f0... 1362551-8-68e52f3...

Nearby Streets

NameAverage PriceAverage SqftDistance
Shepherds Walk £ 000.00 KM
West Drive £ 1,100,00000.00 KM
Tiverton Close £ 550,00000.00 KM
Maxwell Close £ 435,00000.00 KM
Sussex Gardens £ 575,00000.00 KM

Nearby Transport

NameNLCTLCDistance
Earley5694EAR1.93 KM
Winnersh Triangle5698WTI3.19 KM
Winnersh5697WNS4.87 KM
Twyford3155TWY5.71 KM
Wargrave3158WGV5.98 KM

Nearby Listings

AddressPriceTypeScoreDistance
Reading Road, Woodley, Reading £ 550,000BUY7 / 100.00 KM
Reading Road, Woodley, Reading, Berkshire, RG5 3AD £ 450,000BUY6 / 100.07 KM
Wheble Drive, Reading, RG5 £ 475,000BUY6 / 100.09 KM
Steggles Close, Woodley, Reading, Berkshire, RG5 3AH £ 800,000BUY7 / 100.12 KM
Selcourt Close, Woodley, Berkshire, RG5 £ 900,000BUYUnknown0.14 KM

Nearby Properties

AddressPriceDistance
105a Reading Road £ 695,0000.02 KM
97 Reading Road £ 395,0000.02 KM
103a Reading Road £ 299,9500.02 KM
75 Reading Road £ 295,0000.02 KM
138 Wheble Drive £ 176,0000.09 KM