Moor Park, Clevedon, North Somerset, BS21
RE

Moor Park, Clevedon, North Somerset, BS21

By Reeds Rains

£ 335,000

Reviews

3 out of 5 stars

Reeds Rains says ..

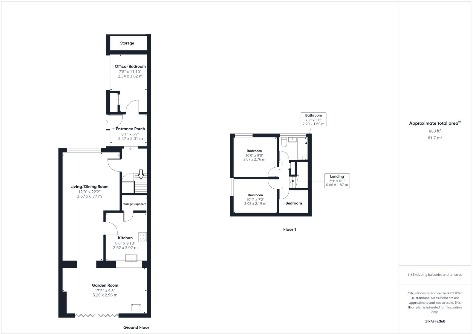
Set just moments from Yeo Moor Primary School and within easy walking distance to Clevedon Town Centre, this beautifully appointed home blends modern style with family-friendly functionality. Generously proportioned throughout, the ground floor offers a spacious entrance porch, dual-as...

Property Oracle says ..

Therefore, we give this property 7 / 10. *Disclaimer: This is our option and does constitute a recommendation or financial advice. Do your own research. *

Price
8
Condition
6
Location
7
Land
7
Bedrooms
3
Bathrooms
1
Sqft (est)
886.62

The heatmap indicates the level of crime in the area. The color of the heatmap indicates the crime severity and recency.

Metrics Year-on-Year

Average area value
881,250.00 £
Increased by 10.74 %
from 795,785.00 £
Est sale value
611,767.80 £
Increased by 54.71 %
from 395,432.52 £
Average area rental value
1,300.00 £/mo
Decreased by 43.36 %
from 2,295.00 £/mo
Est letting value
886.62 £/mo
Unchanged by 0.00 %
from 886.62 £/mo
Est rental Yield
1.77 %
Decreased by 48.84 %
from 3.46 %
Crime Rate
17.00 %
Unchanged by 0.00 %
from 17.00 %

Agent Activity

  • Reeds Rains created the listing.

Nearby Schools

NameTypeOfstedDistance
Seven HillsOther Independent Special School0.52 KM
Yeo Moor Primary SchoolAcademy Sponsor LedGood0.54 KM
St Nicholas Chantry Church Of England Primary SchoolAcademy Converter0.72 KM
Clevedon Children'S CentreChildren's Centre1.16 KM
All Saints Church Of England Primary SchoolAcademy Converter1.22 KM

Images

Picture No. 33 Picture No. 28 Picture No. 32 Picture No. 15 Picture No. 08 Picture No. 11 Picture No. 06 Picture No. 26 Picture No. 02 Picture No. 31 Picture No. 05 Picture No. 14 Picture No. 13 Picture No. 17 Picture No. 18 Picture No. 25 Picture No. 16 Picture No. 20 Picture No. 21 Picture No. 09 Picture No. 03 Picture No. 07 Picture No. 12 Picture No. 19 Picture No. 22 Front

Nearby Streets

NameAverage PriceAverage SqftDistance
Meadow Road £ 300,00000.00 KM
The Paddock £ 000.00 KM
Wells Road £ 000.00 KM
Park Road £ 000.00 KM
Hansons Way £ 000.00 KM

Nearby Transport

NameNLCTLCDistance
Yatton3392YAT5.03 KM

Nearby Listings

AddressPriceTypeScoreDistance
Moor Park, Clevedon, North Somerset, BS21 £ 335,000BUY7 / 100.00 KM
Moor Park, Clevedon, North Somerset, BS21 £ 315,000BUYUnknown0.00 KM
Modern apartment in central Clevedon £ 234,950BUYUnknown0.07 KM
Moor Park Court, Clevedon £ 349,950BUY6 / 100.07 KM
Modern living in a central Clevedon location £ 214,950BUY6 / 100.08 KM

Nearby Properties

AddressPriceDistance
68 Moor Park £ 100,0000.01 KM
66 Moor Park £ 260,0000.01 KM
56 Moor Park £ 291,0000.05 KM
58 Moor Park £ 202,5000.05 KM
62 Moor Park £ 44,9500.05 KM