BE
Honestone Street, Bideford, EX39
By Bettermove
£ 160,000
Reviews
3 out of 5 stars
Bettermove says ..
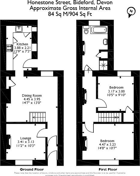
A SPACIOUS home in the sought after area of Bideford, available CHAIN FREE for IMMEDIATE possession. Call for details! Bettermove are proud to present this 2 bedroom house in Bideford, available with no forward chain. The property benefits from double glazing, gas centr...
Property Oracle says ..
Therefore, we give this property 6 / 10. *Disclaimer: This is our option and does constitute a recommendation or financial advice. Do your own research. *
- Price
- 7
- Condition
- 6
- Location
- 7
- Land
- 7
- Bedrooms
- 2
- Bathrooms
- 1
- Sqft (est)
- 666.50
The heatmap indicates the level of crime in the area. The color of the heatmap indicates the crime severity and recency.
Metrics Year-on-Year
- Average area value
- 236,000.00 £Decreased by 21.21 %
- Est sale value
- 162,626.00 £Decreased by 6.51 %
- Average area rental value
- 913.00 £/moIncreased by 21.90 %
- Est letting value
- 0.00 £/mo
- Est rental Yield
- 4.64 %Increased by 54.67 %
- Crime Rate
- 16.00 %Unchanged by 0.00 %
from 299,515.00 £
from 173,956.50 £
from 749.00 £/mo
from 0.00 £/mo
from 3.00 %
from 16.00 %
Agent Activity
Bettermove marked this listing as sold.
Bettermove created the listing.
Nearby Schools
| Name | Type | Ofsted | Distance |
|---|---|---|---|
| West Croft School | Community School | Requires improvement | 0.57 KM |
| St Mary'S Church Of England Primary School | Voluntary Controlled School | Good | 0.99 KM |
| Kingsley School | Other Independent School | 1.08 KM | |
| Bideford College | Academy Sponsor Led | Requires improvement | 1.16 KM |
| Bideford Bay Children'S Centre | Children's Centre | 1.25 KM |
Images
Nearby Streets
| Name | Average Price | Average Sqft | Distance |
|---|---|---|---|
| Old Town | £ 105,000 | 0 | 0.00 KM |
| Providence Row | £ 310,000 | 0 | 0.00 KM |
| Abbotsham Road | £ 365,000 | 0 | 0.00 KM |
| Grenville Street | £ 0 | 0 | 0.00 KM |
| Market Place | £ 60,000 | 0 | 0.00 KM |
Nearby Listings
| Address | Price | Type | Score | Distance |
|---|---|---|---|---|
| Honestone Street, Bideford, EX39 | £ 160,000 | BUY | 6 / 10 | 0.00 KM |
| Bideford, Devon | £ 185,000 | BUY | 5 / 10 | 0.03 KM |
| Victoria Gardens, Bideford, Devon | £ 215,000 | BUY | 7 / 10 | 0.04 KM |
| High Street, Bideford, EX39 | £ 172,000 | BUY | Unknown | 0.07 KM |
| High Street, Bideford, EX39 | £ 89,950 | BUY | 4 / 10 | 0.07 KM |
Nearby Properties
| Address | Price | Distance |
|---|---|---|
| 42 Honestone Street | £ 147,500 | 0.01 KM |
| 30 Honestone Street | £ 120,000 | 0.01 KM |
| 44 Honestone Street | £ 125,000 | 0.01 KM |
| 89 Honestone Street | £ 115,000 | 0.01 KM |
| 34 Honestone Street | £ 125,000 | 0.01 KM |