East Street, Tonbridge
IB

East Street, Tonbridge

By Ibbett Mosely

£ 1,850,000

Reviews

3 out of 5 stars

Ibbett Mosely says ..

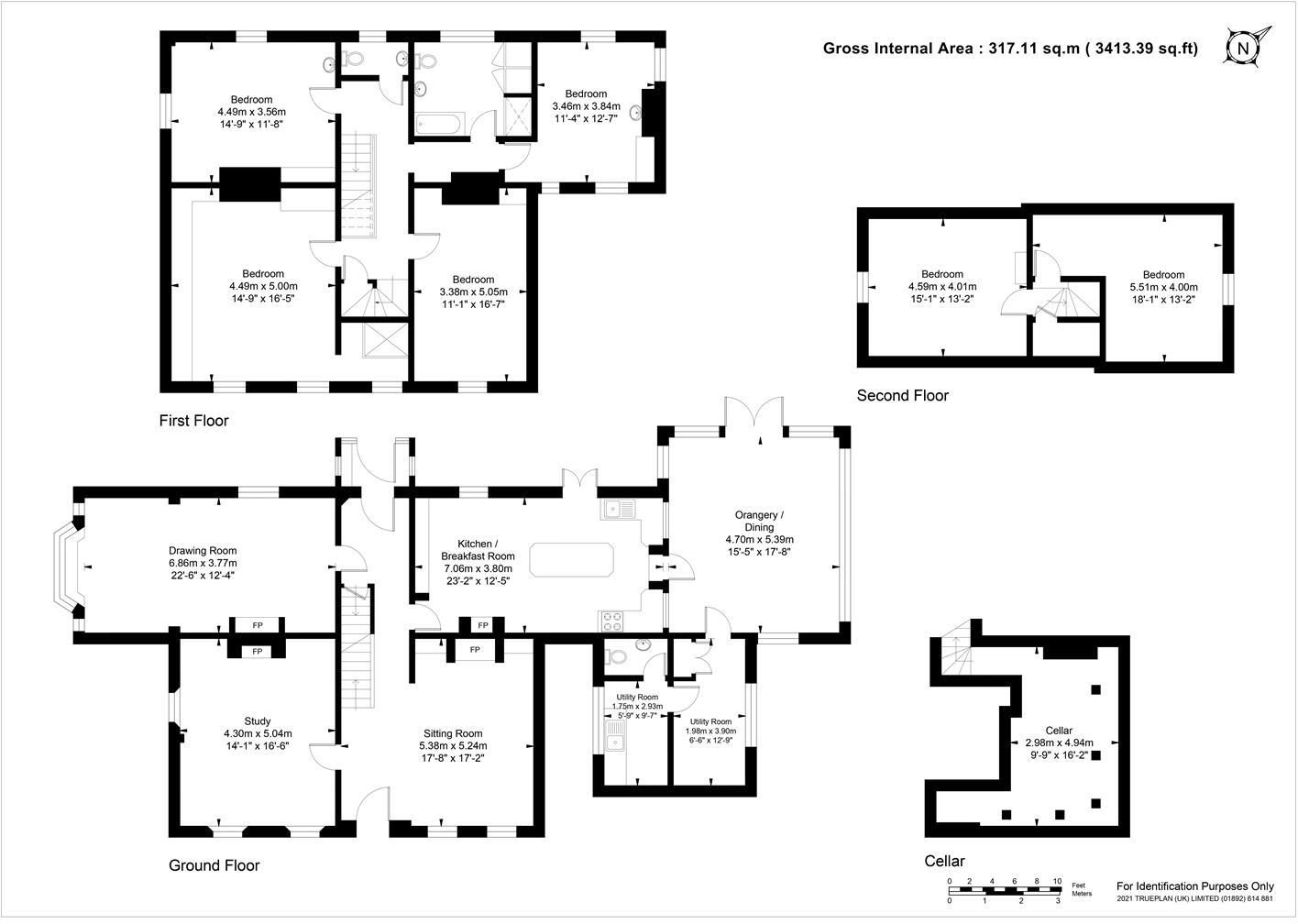
This distinctive and charming property is in a prime central location close to high Street, schools, and the station. The gardens are an oasis of tranquillity and calm including lawns, mature established planting, and mature trees. Gorgeous period features include exposed timbers, fireplaces, Jac...

Property Oracle says ..

This property in East Street, Tonbridge, presents a charming blend of period features and modern updates. The exterior showcases the character of a traditional property. The photos of the interior show the property’s character with exposed beams and fireplaces in several rooms. It appears to be well-maintained and in good condition, with rooms showing a mix of period features and more modern decor. The extensive garden adds considerably to the property’s appeal, providing a tranquil retreat in a desirable Kent location. The proximity to Tonbridge town center and Tonbridge train station contributes to the property’s high desirability for family living. However, a complete analysis needs more detailed specifications on square footage and precise plot size for accurate valuation, plus a fuller understanding of the condition of any older parts of the house that may require renovation or maintenance. The high price reflects this desirability and size. A full survey would be necessary to determine the suitability and value of the property and highlight any potential issues. Overall, the property presents a strong option for someone seeking a substantial home with period charm in a prime location, though prospective buyers should budget accordingly for a property of this age and type.

Therefore, we give this property 7 / 10. *Disclaimer: This is our option and does constitute a recommendation or financial advice. Do your own research. *

Price
7
Condition
7
Location
8
Land
7
Bedrooms
6
Bathrooms
3
Sqft (est)
3,413.39

The heatmap indicates the level of crime in the area. The color of the heatmap indicates the crime severity and recency.

Metrics Year-on-Year

Average area value
456,000.00 £
Increased by 25.16 %
from 364,328.00 £
Est sale value
2,450,814.02 £
Increased by 65.44 %
from 1,481,411.26 £
Average area rental value
1,667.00 £/mo
Increased by 20.45 %
from 1,384.00 £/mo
Est letting value
6,826.78 £/mo
Increased by 100.00 %
from 3,413.39 £/mo
Est rental Yield
4.39 %
Decreased by 3.73 %
from 4.56 %
Crime Rate
4.00 %
Unchanged by 0.00 %
from 4.00 %

Agent Activity

  • Ibbett Mosely created the listing.

Nearby Schools

NameTypeOfstedDistance
Tonbridge SchoolOther Independent School0.49 KM
Slade Primary School And Attached Unit For Children With Hearing ImpairmentCommunity SchoolOutstanding0.71 KM
Hilden Oaks Preparatory School And NurseryOther Independent School0.95 KM
South Tonbridge Children'S CentreChildren's Centre0.95 KM
Hilden Grange SchoolOther Independent School0.95 KM

Images

front2.jpg _DSC8575.jpg _DSC8553.jpg _DSC8556.jpg _DSC8558.jpg _DSC8559.jpg _DSC8561.jpg _DSC8562.jpg _DSC8563.jpg _DSC8564.jpg _DSC8566.jpg _DSC8567.jpg _DSC8568.jpg _DSC8574.jpg _DSC8577.jpg DJI_0084.jpg _DSC8938.jpg _DSC8942.jpg _DSC8944.jpg _DSC8569.jpg _DSC8588.jpg _DSC8591.jpg _DSC8593.jpg _DSC8596.jpg _DSC8598.jpg _DSC8602.jpg _DSC8604.jpg _DSC8608.jpg _DSC8934.jpg _DSC8935.jpg

Nearby Streets

NameAverage PriceAverage SqftDistance
Lyons Crescent £ 330,35700.00 KM
Tannery Road £ 000.00 KM
Castle Street £ 290,00000.00 KM
Morley Road £ 300,00000.00 KM
High Street £ 260,50000.00 KM

Nearby Transport

NameNLCTLCDistance
Tonbridge5229TON1.04 KM
High Brooms5235HIB5.31 KM
Hildenborough5236HLB5.94 KM
Leigh (Kent)5294LIH7.52 KM
Tunbridge Wells5230TBW7.64 KM

Nearby Listings

AddressPriceTypeScoreDistance
East Street, Tonbridge £ 1,850,000BUY7 / 100.00 KM
East Street, Tonbridge £ 225,000BUY4 / 100.03 KM
East Street, Tonbridge £ 320,000BUY6 / 100.07 KM
East Street, Tonbridge £ 325,000BUY6 / 100.07 KM
East Street, Tonbridge £ 285,000BUY5 / 100.11 KM

Nearby Properties

AddressPriceDistance
50 Lyons Crescent £ 725,0000.12 KM
46 Lyons Crescent £ 842,0000.12 KM
31 Lyons Crescent £ 249,5000.12 KM
43 Lyons Crescent £ 645,0000.12 KM
35 Lyons Crescent £ 212,5000.12 KM