C
Haydons Road, Wimbledon
By C James & Co
£ 2,700
C James & Co says ..
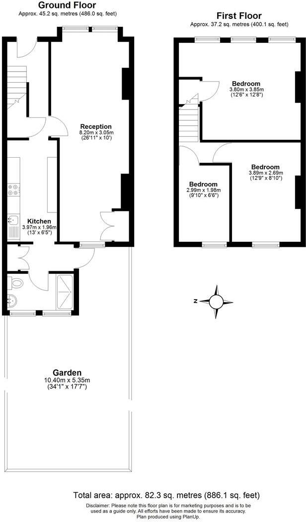
C James & Co are please to present this recently refurbished property to the rental market. With three well proportioned bedrooms, it is perfectly suited for families or sharers seeking a comfortable and modern home. The interior has been thoughtfully updated throughout, benefitting from...
- Bedrooms
- 3
- Bathrooms
- 1
The heatmap indicates the level of crime in the area. The color of the heatmap indicates the crime severity and recency.
Metrics Year-on-Year
- Average area value
- 350,323.00 £Decreased by 1.18 %
- Average area rental value
- 1,334.00 £/moDecreased by 2.49 %
- Est rental Yield
- 4.57 %Decreased by 1.30 %
- Crime Rate
- 4.00 %Unchanged by 0.00 %
from 354,508.00 £
from 1,368.00 £/mo
from 4.63 %
from 4.00 %
Agent Activity
C James & Co created the listing.
Nearby Schools
| Name | Type | Ofsted | Distance |
|---|---|---|---|
| Harris Academy Wimbledon | Free Schools | 0.38 KM | |
| Abbey Children'S Centre | Children's Centre Linked Site | 0.42 KM | |
| All Saints' Cofe Primary School | Voluntary Aided School | Good | 0.52 KM |
| Merton Abbey Primary School | Community School | Good | 0.55 KM |
| Garfield Primary School | Community School | Good | 0.78 KM |
Images
Nearby Streets
| Name | Average Price | Average Sqft | Distance |
|---|---|---|---|
| Trafalgar Road | £ 975,000 | 0 | 0.00 KM |
| Abbey Road | £ 425,000 | 0 | 0.00 KM |
| Norman Road | £ 845,000 | 0 | 0.00 KM |
| Laburnum Road | £ 546,667 | 0 | 0.00 KM |
| Station Road | £ 525,000 | 0 | 0.00 KM |
Nearby Transport
| Name | NLC | TLC | Distance |
|---|---|---|---|
| Haydons Road | 5289 | HYR | 0.95 KM |
| Wimbledon | 5578 | WIM | 2.15 KM |
| South Merton | 5292 | SMO | 2.51 KM |
| Morden South | 5291 | MDS | 2.68 KM |
| Earlsfield | 5584 | EAD | 2.81 KM |
Nearby Listings
| Address | Price | Type | Score | Distance |
|---|---|---|---|---|
| Haydons Road, London, SW19 | £ 2,975 | RENT | Unknown | 0.02 KM |
| Haydons Road, London, SW19 | £ 2,750 | RENT | Unknown | 0.02 KM |
| Victory Road London | £ 3,000 | RENT | Unknown | 0.07 KM |
| Haydons Road, London | £ 1,900 | RENT | Unknown | 0.09 KM |
| Hotham Road, Wimbledon, London, SW19 | £ 1,800 | RENT | Unknown | 0.10 KM |
Nearby Properties
| Address | Price | Distance |
|---|---|---|
| 41 Haydons Road | £ 280,000 | 0.04 KM |
| 51a Haydons Road | £ 332,762 | 0.04 KM |
| 39 Haydons Road | £ 315,000 | 0.04 KM |
| 47a Haydons Road | £ 427,000 | 0.04 KM |
| 13 Haydons Road | £ 540,000 | 0.04 KM |