Irlams says ..
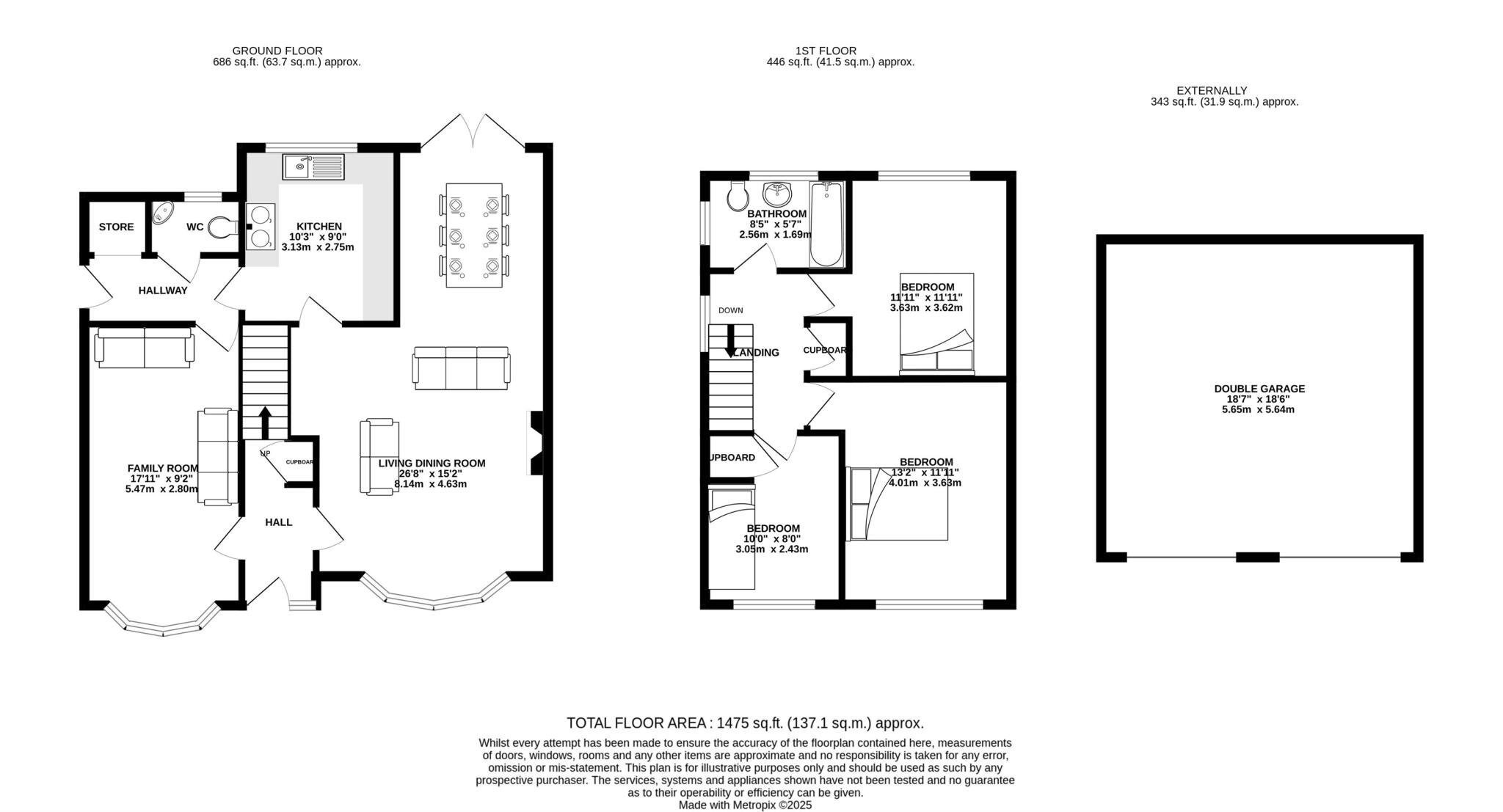
A well-presented, extended three bedroom detached property sitting in a private position on this ever-popular development offering scope for further extension and refurbishment. Driveway providing ample parking, detached double garage, enclosed gardens.
Property Oracle says ..
This is a detached property in Mobberley, Cheshire East. The property has three bedrooms and one bathroom. The property is in reasonable condition, but the kitchen and bathroom would benefit from modernisation. The property has a good-sized garden and off-street parking. The property is located close to local amenities, including a primary school and a train station. The property is listed for £450,000, which is below the average price for a detached property in Mobberley.
Therefore, we give this property 6 / 10. *Disclaimer: This is our option and does constitute a recommendation or financial advice. Do your own research. *
- Price
- 7
- Condition
- 6
- Location
- 7
- Land
- 7
- Bedrooms
- 3
- Bathrooms
- 1
- Sqft (est)
- 1,526.00
The heatmap indicates the level of crime in the area. The color of the heatmap indicates the crime severity and recency.
Metrics Year-on-Year
- Average area value
- 607,999.00 £Decreased by 19.74 %
- Est sale value
- 650,076.00 £Decreased by 8.58 %
- Average area rental value
- 1,708.00 £/moDecreased by 59.57 %
- Est letting value
- 1,526.00 £/moDecreased by 50.00 %
- Est rental Yield
- 3.37 %Decreased by 49.63 %
- Crime Rate
- 40.00 %Unchanged by 0.00 %
Agent Activity
Irlams created the listing.
Nearby Schools
| Name | Type | Ofsted | Distance |
|---|---|---|---|
| Mobberley Cofe Primary School | Voluntary Controlled School | Outstanding | 1.31 KM |
| Adelaide Heath Academy | Academy Special Sponsor Led | 3.04 KM | |
| Knutsford Children'S Centre | Children's Centre | 3.84 KM | |
| Manor Park Primary School And Nursery | Academy Converter | 3.85 KM | |
| St Vincent'S Catholic Primary School | Voluntary Aided School | Good | 3.95 KM |
Images
Nearby Streets
| Name | Average Price | Average Sqft | Distance |
|---|---|---|---|
| Summerfield Road | £ 0 | 0 | 0.00 KM |
Nearby Transport
| Name | NLC | TLC | Distance |
|---|---|---|---|
| Mobberley | 2849 | MOB | 1.84 KM |
| Ashley | 2850 | ASY | 4.90 KM |
| Knutsford | 2848 | KNF | 5.25 KM |
| Chelford (Cheshire) | 2764 | CEL | 7.02 KM |
| Hale (Manchester) | 2845 | HAL | 7.53 KM |
Nearby Listings
| Address | Price | Type | Score | Distance |
|---|---|---|---|---|
| Carlisle Close, WA16 | £ 450,000 | BUY | 6 / 10 | 0.00 KM |
| Appleby Crescent, Mobberley, WA16 | £ 529,950 | BUY | 7 / 10 | 0.06 KM |
| Appleby Crescent, Mobberley, WA16 | £ 250,000 | BUY | 6 / 10 | 0.06 KM |
| Carlisle Close, Mobberley, WA16 | £ 624,950 | BUY | 8 / 10 | 0.06 KM |
| Appleby Crescent, Mobberley, WA16 | £ 340,000 | BUY | 7 / 10 | 0.06 KM |
Nearby Properties
| Address | Price | Distance |
|---|---|---|
| 32 Appleby Crescent | £ 275,000 | 0.06 KM |
| 8 Appleby Crescent | £ 490,000 | 0.06 KM |
| 26 Appleby Crescent | £ 181,000 | 0.06 KM |
| 2 Appleby Crescent | £ 136,000 | 0.06 KM |
| 6 Appleby Crescent | £ 470,000 | 0.06 KM |