Ladysmith Road, St. Albans, Hertfordshire, AL3
By Ashtons
£ 650,000
Reviews
3 out of 5 stars
Ashtons says ..
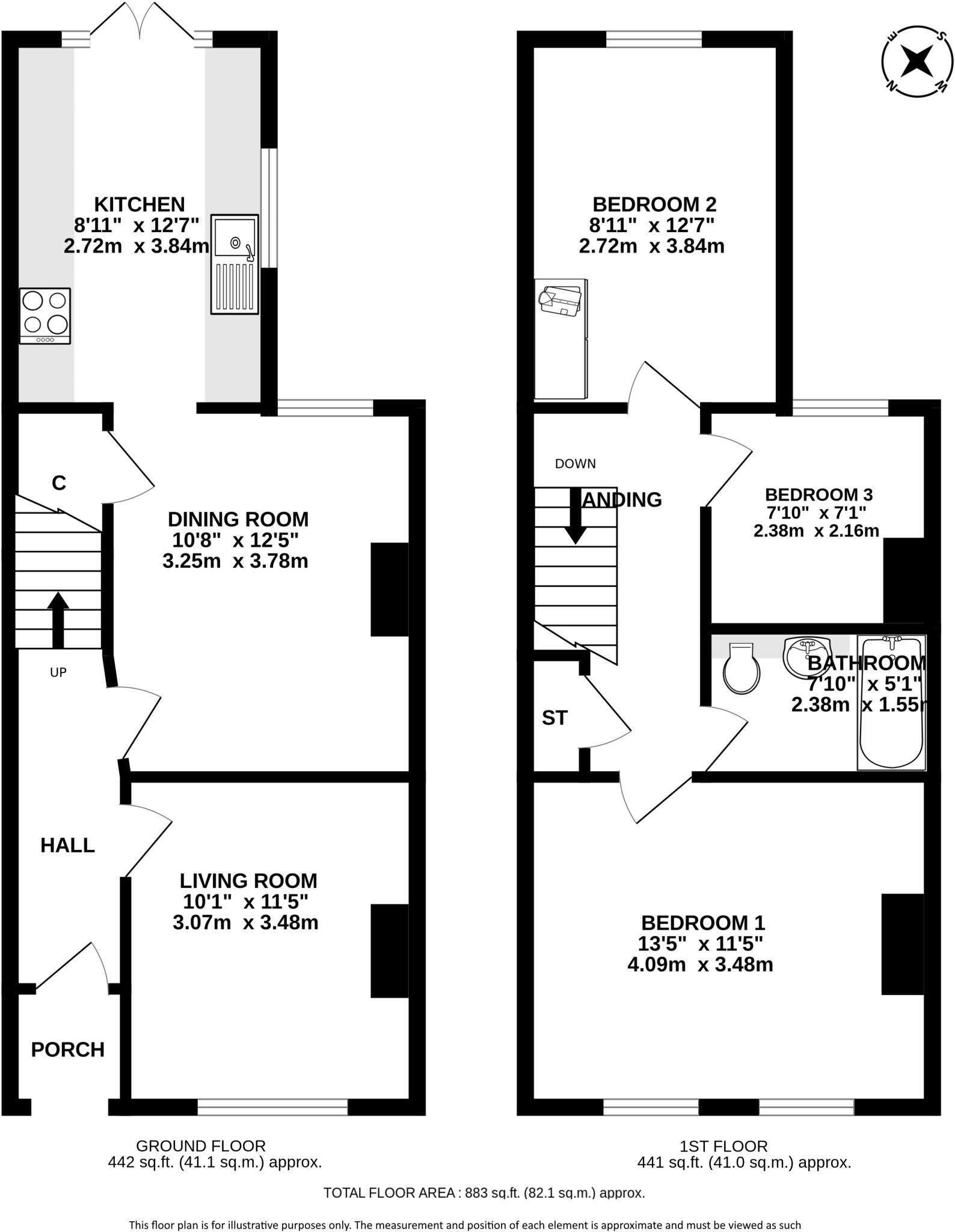
Wonderfully charming 3 bedroom home in the conservation area with period features, modern finishes, a private garden, and easy access to the city centre, station and schools.
Property Oracle says ..
This is a three-bedroom terraced house on Ladysmith Road in St. Albans. The property is in a good location, close to schools and transportation. The house appears to be in decent condition, with a modern bathroom. The property benefits from a garden. The asking price seems reasonable for the area and the property’s features.
Therefore, we give this property 6 / 10. *Disclaimer: This is our option and does constitute a recommendation or financial advice. Do your own research. *
- Price
- 7
- Condition
- 7
- Location
- 7
- Land
- 6
- Bedrooms
- 3
- Bathrooms
- 1
The heatmap indicates the level of crime in the area. The color of the heatmap indicates the crime severity and recency.
Metrics Year-on-Year
- Average area value
- 636,667.00 £Decreased by 17.62 %
- Average area rental value
- 2,030.00 £/moIncreased by 3.89 %
- Est rental Yield
- 3.83 %Increased by 26.40 %
- Crime Rate
- 3.00 %Unchanged by 0.00 %
Agent Activity
Ashtons created the listing.
Nearby Schools
| Name | Type | Ofsted | Distance |
|---|---|---|---|
| Muriel Green Nursery School | Local Authority Nursery School | Good | 0.40 KM |
| Aboyne Lodge Junior Mixed And Infant School | Community School | Good | 0.47 KM |
| Batchwood School | Community Special School | Requires improvement | 0.83 KM |
| Garden Fields Junior Mixed And Infant School | Academy Converter | 0.84 KM | |
| Sa6 St Albans Family Centre | Children's Centre | 0.84 KM |
Images
Nearby Streets
| Name | Average Price | Average Sqft | Distance |
|---|---|---|---|
| Cross Street | £ 0 | 0 | 0.00 KM |
| Cattle Walk | £ 0 | 0 | 0.00 KM |
| St Bernard's Road | £ 0 | 0 | 0.00 KM |
| Folly Lane | £ 1,000,000 | 0 | 0.00 KM |
| Jubilee Square | £ 200,833 | 0 | 0.00 KM |
Nearby Transport
| Name | NLC | TLC | Distance |
|---|---|---|---|
| St Albans Abbey | 1562 | SAA | 1.49 KM |
| St Albans City | 1548 | SAC | 1.78 KM |
| Park Street | 1561 | PKT | 3.63 KM |
| How Wood (Hertfordshire) | 1563 | HWW | 4.50 KM |
| Bricket Wood | 1560 | BWO | 6.17 KM |
Nearby Listings
| Address | Price | Type | Score | Distance |
|---|---|---|---|---|
| Ladysmith Road, St. Albans, Hertfordshire, AL3 | £ 650,000 | BUY | 6 / 10 | 0.00 KM |
| Ladysmith Road, St. Albans, Hertfordshire, AL3 | £ 650,000 | BUY | 6 / 10 | 0.00 KM |
| Ladysmith Road, St. Albans, AL3 | £ 650,000 | BUY | 6 / 10 | 0.01 KM |
| Ladysmith Road, St. Albans, AL3 | £ 650,000 | BUY | 6 / 10 | 0.01 KM |
| Ladysmith Road, St. Albans, Hertfordshire, AL3 | £ 725,000 | BUY | 6 / 10 | 0.03 KM |
Nearby Properties
| Address | Price | Distance |
|---|---|---|
| 40 Ladysmith Road | £ 806,000 | 0.03 KM |
| 20 Ladysmith Road | £ 385,000 | 0.03 KM |
| 16 Ladysmith Road | £ 628,000 | 0.03 KM |
| 44 Ladysmith Road | £ 675,000 | 0.03 KM |
| 2 Ladysmith Road | £ 810,000 | 0.03 KM |