Dean Street, Swindon, SN1
RI

Dean Street, Swindon, SN1

By Richard James

£ 215,000

Reviews

3 out of 5 stars

Richard James says ..

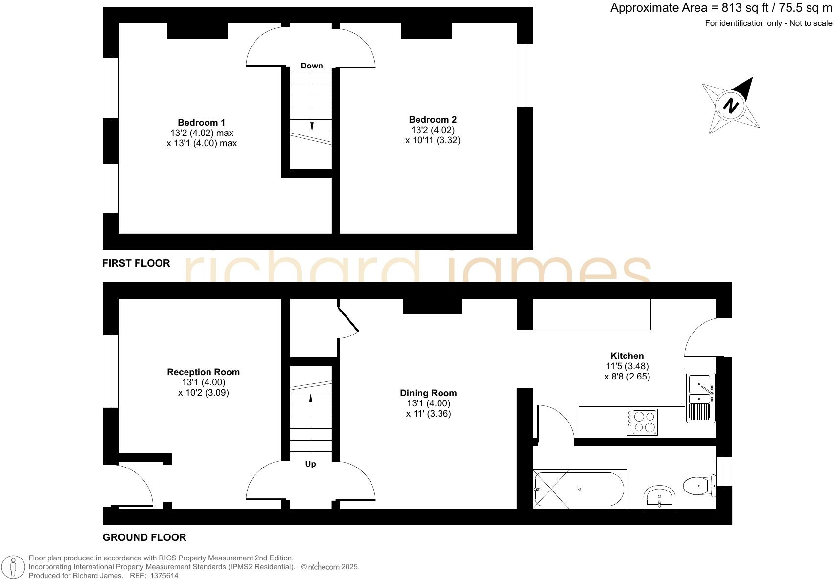
This two bedroom terrace house is located in the heart of Swindon Town Centre and is just a short walk from Swindon Train Station.

Property Oracle says ..

This is a terraced property located on Dean Street in Swindon. It features two bedrooms and one bathroom, with a total square footage of 812.68 sqft. The property includes a garden. While the property is in a central location with good access to schools and transportation, it appears to be in need of some renovation. The asking price of £215,000 seems reasonable given the location and size of the property.

Therefore, we give this property 6 / 10. *Disclaimer: This is our option and does constitute a recommendation or financial advice. Do your own research. *

Price
7
Condition
5
Location
6
Land
6
Bedrooms
2
Bathrooms
1
Sqft (est)
812.68

The heatmap indicates the level of crime in the area. The color of the heatmap indicates the crime severity and recency.

Metrics Year-on-Year

Average area value
487,124.00 £
Increased by 94.35 %
from 250,641.00 £
Est sale value
500,610.88 £
Increased by 112.41 %
from 235,677.20 £
Average area rental value
1,220.00 £/mo
Increased by 6.46 %
from 1,146.00 £/mo
Est letting value
812.68 £/mo
Unchanged by 0.00 %
from 812.68 £/mo
Est rental Yield
3.01 %
Decreased by 45.17 %
from 5.49 %
Crime Rate
4.00 %
Unchanged by 0.00 %
from 4.00 %

Agent Activity

  • Richard James created the listing.

Nearby Schools

NameTypeOfstedDistance
Robert Le Kyng Primary SchoolCommunity SchoolGood0.34 KM
Utc SwindonUniversity Technical CollegeRequires improvement0.73 KM
Even Swindon Primary SchoolCommunity SchoolGood1.09 KM
The Commonweal SchoolAcademy ConverterGood1.69 KM
Ferndale Primary School & NurseryAcademy ConverterGood1.72 KM

Images

1f7cd273f72f4365a329e673249b2cab 20bcbc75f7614f3b9d873737f8a0245d b11ed9e0e9004311bf3160dda708d981 b69efca8de244bb4b868218f2096a01d 172a1d809e094dc9a0791a5c53de1b13 af29df9ebb23484c86cda1c7d30a12e4 f8de18710a454b40affe12cf420da4bb 1c32227d2904479fbb407f7195473011 a272b2c3c541461b9f21bebd7ccf5bd7 725872b6032d4eaeb27c0b4d81014128 1bd2f6fca4ea4b979848cc7b9756ec27 e9234a5b85114739957e89f35187fead 858cf0951dc946d092701644a9529349 29f5bb7844674815bd13a95d433ff784 c68742cc23d543cd99f09c8cd2beba4b ae3d33e5f7724c9e910cb5548284f8de

Nearby Streets

NameAverage PriceAverage SqftDistance
Turner Street £ 000.00 KM
Marlborough Street £ 000.00 KM
Canal Cottages £ 000.00 KM
Joseph Street £ 000.00 KM
Chester Street £ 240,00000.00 KM

Nearby Transport

NameNLCTLCDistance
Swindon (Wilts)3333SWI1.75 KM

Nearby Listings

AddressPriceTypeScoreDistance
Dean Street, Swindon, SN1 £ 215,000BUY6 / 100.00 KM
Dean Street, Swindon, SN1 £ 144,000BUY6 / 100.01 KM
Ford Street, Kingshill, Swindon, SN1 £ 220,000BUY6 / 100.11 KM
Ford Street, Swindon, Wiltshire £ 220,000BUY7 / 100.12 KM
Butterworth Street, Rodbourne, Swindon, SN1 £ 235,000BUY7 / 100.17 KM

Nearby Properties

AddressPriceDistance
40 Dean Street £ 114,0000.01 KM
29 Dean Street £ 90,0000.01 KM
31 Dean Street £ 230,0000.01 KM
57 Dean Street £ 160,0000.01 KM
53 Dean Street £ 155,0000.01 KM