Forest Lodge Lane, Port Talbot, West Glamorgan, SA13 2RX
By MRE - Peter Morgan Real Estate, Powered by eXp
£ 150,000
Reviews
3 out of 5 stars
MRE - Peter Morgan Real Estate, Powered by eXp says ..
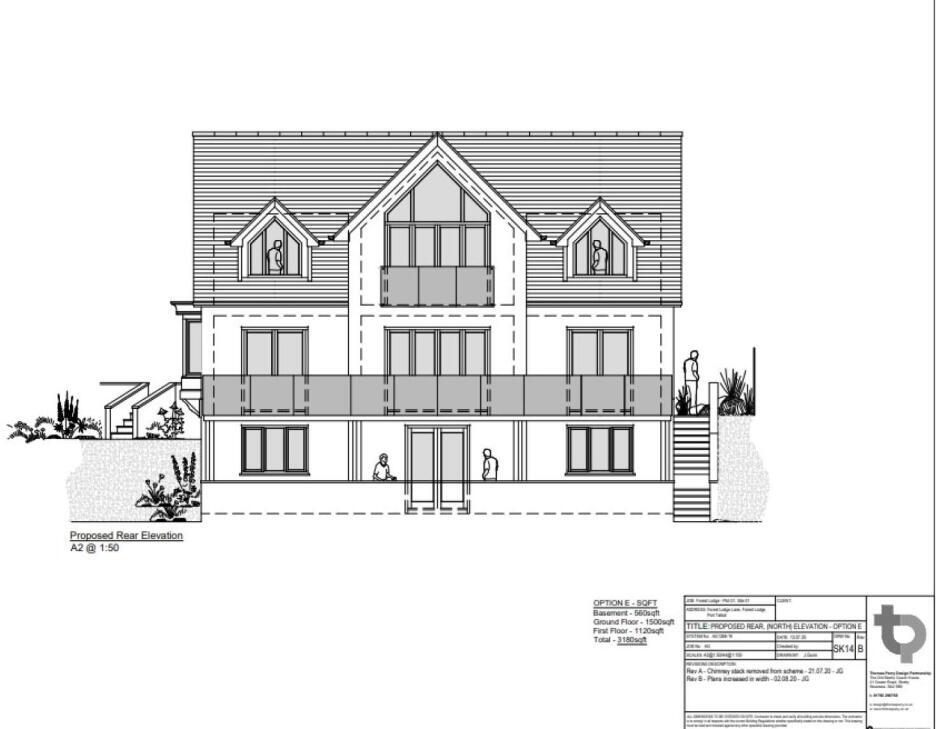
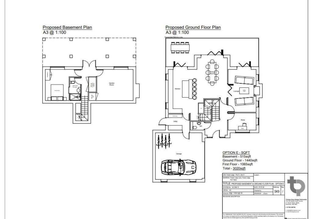
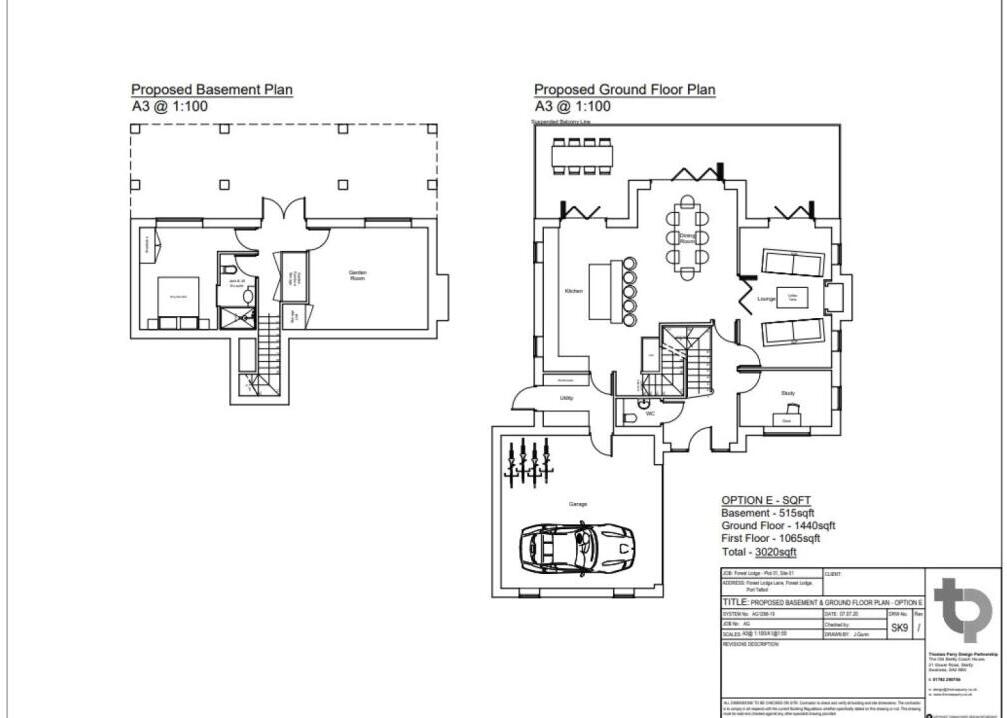
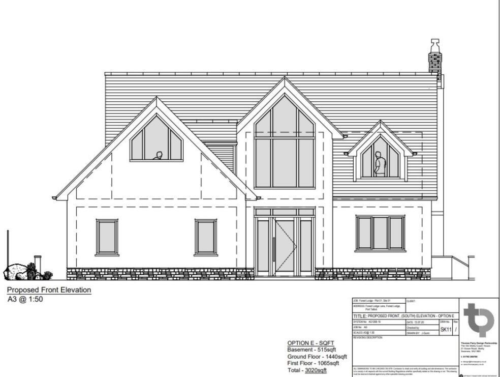
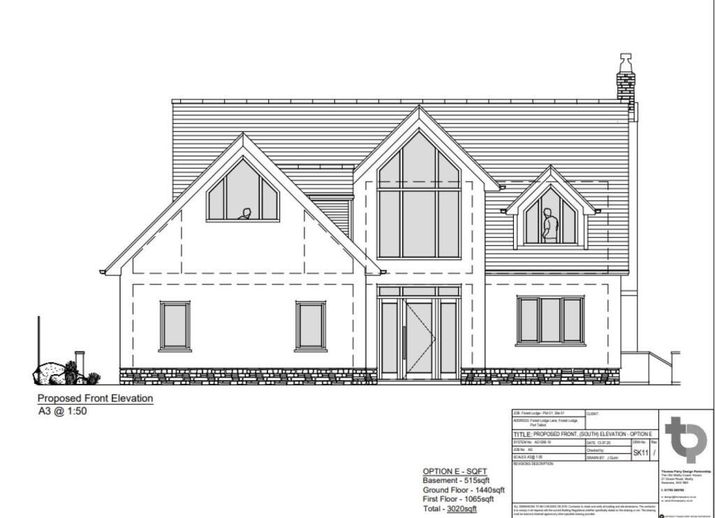
Development Opportunity | Planning Approved For Four Bed Detached Executive Home | Popular And Desirable Location | Ample Off Road Parking | Executive Private Estate | Easy Access To The M4 Corridor For Commuting | Rare To Market In This Location | Approved Planning Available | Thr...
Property Oracle says ..
This is a plot of land for sale in Forest Lodge Lane, Port Talbot. The plot appears to be located in a semi-rural area, surrounded by trees and other houses. It is located close to Port Talbot Parkway train station and several schools.
Therefore, we give this property 7 / 10. *Disclaimer: This is our option and does constitute a recommendation or financial advice. Do your own research. *
- Price
- 8
- Condition
- 0
- Location
- 7
- Land
- 8
- Bedrooms
- 0
- Bathrooms
- 0
- Sqft (est)
- 3,020.00
The heatmap indicates the level of crime in the area. The color of the heatmap indicates the crime severity and recency.
Metrics Year-on-Year
- Average area value
- 406,364.00 £Increased by 51.98 %
- Est sale value
- 993,580.00 £Increased by 29.02 %
- Average area rental value
- 1,294.00 £/moIncreased by 17.32 %
- Est letting value
- 3,020.00 £/moUnchanged by 0.00 %
- Est rental Yield
- 3.82 %Decreased by 22.83 %
- Crime Rate
- 3.00 %Unchanged by 0.00 %
Agent Activity
MRE - Peter Morgan Real Estate, Powered by eXp created the listing.
Nearby Schools
| Name | Type | Ofsted | Distance |
|---|---|---|---|
| Eastern Primary School | Welsh Establishment | 3.25 KM | |
| St Joseph'S Catholic Infant School | Welsh Establishment | 4.04 KM | |
| Groes Primary School | Welsh Establishment | 4.39 KM | |
| Ysgol Cwm Brombil | Welsh Establishment | 4.43 KM | |
| St Joseph'S Rc School And 6Th Form Centre | Welsh Establishment | 4.46 KM |
Images
Nearby Streets
| Name | Average Price | Average Sqft | Distance |
|---|---|---|---|
| Ynys Lee | £ 649,500 | 0 | 0.00 KM |
| Dan-Y-Coed | £ 0 | 0 | 0.00 KM |
| Stryd Fawr | £ 110,000 | 0 | 0.00 KM |
| Brynheulog | £ 0 | 0 | 0.00 KM |
Nearby Transport
| Name | NLC | TLC | Distance |
|---|---|---|---|
| Port Talbot Parkway | 4181 | PTA | 3.59 KM |
| Baglan | 4186 | BAJ | 6.11 KM |
| Briton Ferry | 4187 | BNF | 7.56 KM |
| Neath | 4216 | NTH | 7.96 KM |
Nearby Listings
| Address | Price | Type | Score | Distance |
|---|---|---|---|---|
| Forest Lodge Lane, Port Talbot, West Glamorgan, SA13 2RX | £ 150,000 | BUY | 7 / 10 | 0.00 KM |
| Forest Lodge Lane, Port Talbot, West Glamorgan, SA13 2RX | £ 150,000 | BUY | 8 / 10 | 0.00 KM |
| Forest Lodge Lane, Port Talbot, West Glamorgan, SA13 2RX | £ 150,000 | BUY | 7 / 10 | 0.00 KM |
| Forest Lodge Lane, Cwmavon, Port Talbot, Neath Port Talbot, SA13 | £ 399,995 | BUY | 6 / 10 | 0.03 KM |
| Forest Lodge Lane, Cwmavon, Port Talbot, Neath Port Talbot, SA13 2RX | £ 150,000 | BUY | Unknown | 0.03 KM |
Nearby Properties
| Address | Price | Distance |
|---|---|---|
| Tuskar House | £ 405,000 | 0.01 KM |
| Cedar Lodge | £ 410,000 | 0.07 KM |
| Cedar House | £ 442,000 | 0.07 KM |
| 4 Hawthorn Close | £ 104,000 | 0.35 KM |
| 13 Hawthorn Close | £ 132,500 | 0.35 KM |