Trimaran Road, Warsash
TA

Trimaran Road, Warsash

By Taylor Hill & Bond

£ 375,000

Reviews

3 out of 5 stars

Taylor Hill & Bond says ..

Situated in the popular Boat Estate, close towards Warsash Village, green spaces and with good local schooling nearby, a semi-detached three bedroom property which has been the subject of updating works during my clients ownership of over 4 years and benefiting from off-road parking, a single gar...

Property Oracle says ..

This three-bedroom semi-detached house in Warsash, Fareham, is presented in good condition, benefiting from a recently updated kitchen and bathroom. The property features a modern interior, with a good-sized living area and a conservatory that opens onto a garden with a decking area. The location in Warsash is attractive, with good local schools (Hook-With-Warsash Church of England Academy and Brookfield Community School being noteworthy) and relatively easy access to nearby railway stations, although a car is likely necessary for convenient travel. The lack of precise plot size information prevents a definitive assessment of the land value. While the list price of £375,000 seems reasonable given the location and condition, more detailed information on comparable properties in the area, particularly regarding square footage, would be needed to provide a more precise market valuation. A survey is recommended to confirm the property’s condition and identify any potential issues. Overall, this property presents a solid option for those seeking a comfortable home in a desirable location, but potential buyers should factor in the relatively small garden size and the need for a car for convenient access to broader amenities.

Therefore, we give this property 6 / 10. *Disclaimer: This is our option and does constitute a recommendation or financial advice. Do your own research. *

Price
7
Condition
8
Location
7
Land
4
Bedrooms
3
Bathrooms
1
Sqft (est)
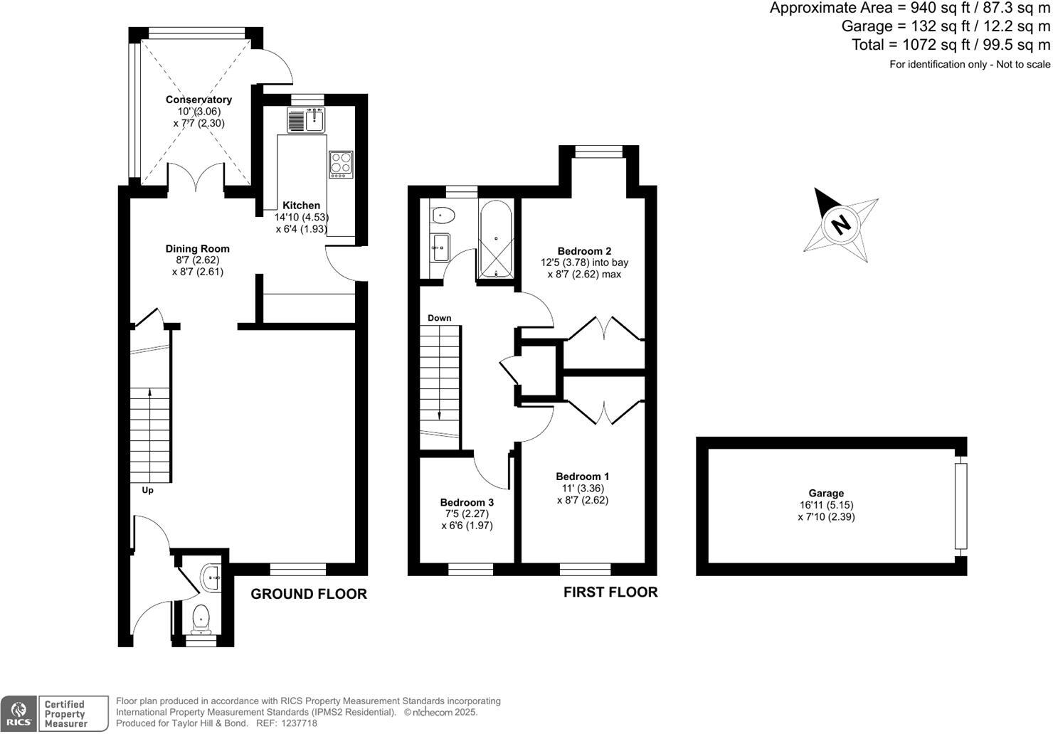
1,072.00

The heatmap indicates the level of crime in the area. The color of the heatmap indicates the crime severity and recency.

Metrics Year-on-Year

Average area value
691,555.00 £
Increased by 13.60 %
from 608,749.00 £
Est sale value
450,240.00 £
Decreased by 1.18 %
from 455,600.00 £
Average area rental value
1,511.00 £/mo
Decreased by 13.06 %
from 1,738.00 £/mo
Est letting value
0.00 £/mo
Decreased by 100.00 %
from 1,072.00 £/mo
Est rental Yield
2.62 %
Decreased by 23.62 %
from 3.43 %
Crime Rate
4.00 %
Unchanged by 0.00 %
from 4.00 %

Agent Activity

  • Taylor Hill & Bond created the listing.

Nearby Schools

NameTypeOfstedDistance
Hook-With-Warsash Church Of England AcademyAcademy ConverterGood0.77 KM
Sovereign And Strawberry Meadow Children'S CentreChildren's Centre1.35 KM
Brookfield Community SchoolCommunity SchoolGood1.50 KM
Locks Heath Junior SchoolCommunity SchoolGood1.61 KM
Sarisbury Infant SchoolCommunity SchoolOutstanding1.63 KM

Images

1237718 (1).jpg 1237718 (2).jpg 1237718 (14).jpg 1237718 (9).jpg 1237718 (15).jpg 1237718 (13).jpg 1237718 (4).jpg 1237718 (8).jpg 1237718 (3).jpg 1237718 (5).jpg 1237718 (17).jpg 1237718 (16).jpg 1237718 (7).jpg 1237718 (6).jpg 1237718 (10).jpg IMG_1622.JPG IMG_1631.JPG IMG_1633.JPG IMG_1630.JPG

Nearby Streets

NameAverage PriceAverage SqftDistance
Dibles Road (East) £ 491,66700.00 KM
Greenaway Lane £ 685,00000.00 KM
Dibles Road (West) £ 550,00000.00 KM
Sartoris Close £ 250,00000.00 KM
Warsash Road £ 399,95000.00 KM

Nearby Transport

NameNLCTLCDistance
Swanwick5920SNW3.55 KM
Bursledon5927BUO3.86 KM
Hamble5947HME4.93 KM
Netley5911NTL6.38 KM
Botley5894BOE7.76 KM

Nearby Listings

AddressPriceTypeScoreDistance
Trimaran Road, Warsash £ 365,000BUY8 / 100.00 KM
Trimaran Road, Warsash £ 425,000BUYUnknown0.06 KM
TRIMARAN ROAD, WARSASH. GUIDE PRICE £375,000 - £399,950 £ 375,000BUY7 / 100.06 KM
Trimaran Road, Warsash £ 425,000BUY7 / 100.07 KM
Westerley Close, Southampton, SO31 £ 550,000BUYUnknown0.09 KM

Nearby Properties

AddressPriceDistance
41 Trimaran Road £ 220,0000.05 KM
7 Trimaran Road £ 375,0000.05 KM
43 Trimaran Road £ 212,0000.05 KM
35 Trimaran Road £ 310,0000.06 KM
37 Trimaran Road £ 380,0000.06 KM