Hunters says ..
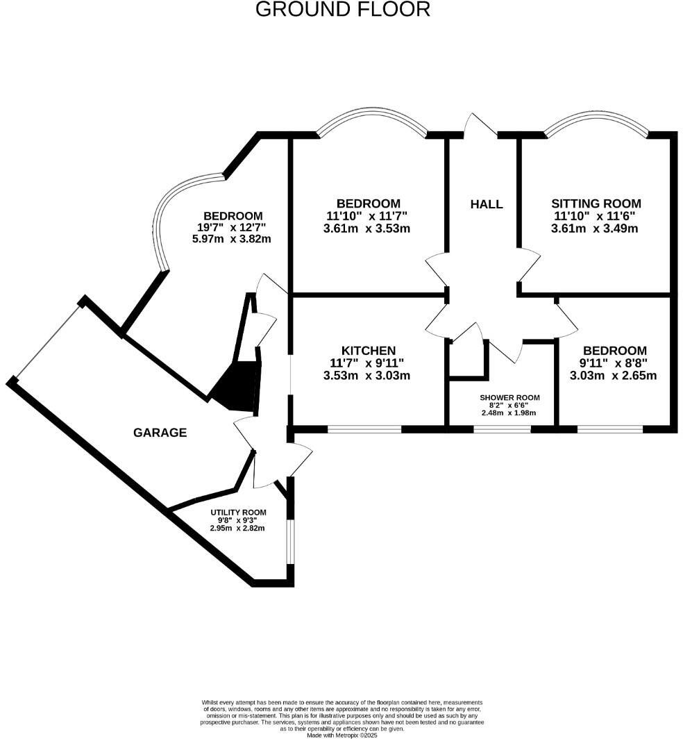
GUIDE PRICE £450,000 - £475,000 Nestled on the charming Povey Avenue in Wainscott, this delightful semi-detached Ballard bungalow offers a perfect blend of comfort and modern living. Built in 1957, the property has been thoughtfully modernised throughout, ensuring a welcoming atmosphere ...
Property Oracle says ..
Therefore, we give this property 7 / 10. *Disclaimer: This is our option and does constitute a recommendation or financial advice. Do your own research. *
- Price
- 6
- Condition
- 8
- Location
- 7
- Land
- 7
- Bedrooms
- 3
- Bathrooms
- 1
- Sqft (est)
- 862.34
The heatmap indicates the level of crime in the area. The color of the heatmap indicates the crime severity and recency.
Metrics Year-on-Year
- Average area value
- 397,500.00 £Decreased by 6.87 %
- Est sale value
- 301,819.00 £Decreased by 5.91 %
- Average area rental value
- 1,383.00 £/moDecreased by 19.36 %
- Est letting value
- 862.34 £/moUnchanged by 0.00 %
- Est rental Yield
- 4.18 %Decreased by 13.28 %
- Crime Rate
- 2.00 %Unchanged by 0.00 %
from 426,822.00 £
from 320,790.48 £
from 1,715.00 £/mo
from 862.34 £/mo
from 4.82 %
from 2.00 %
Agent Activity
Hunters created the listing.
Nearby Schools
| Name | Type | Ofsted | Distance |
|---|---|---|---|
| Hilltop Primary Academy | Academy Converter | 0.35 KM | |
| Temple Mill Primary School | Academy Sponsor Led | Good | 0.71 KM |
| The Children'S Centre At Temple Mill | Children's Centre | 0.71 KM | |
| English Martyrs' Catholic Primary School | Voluntary Aided School | Good | 0.80 KM |
| Wainscott Primary School | Academy Sponsor Led | 1.10 KM |
Images
Nearby Streets
| Name | Average Price | Average Sqft | Distance |
|---|---|---|---|
| RS124 | £ 380,000 | 0 | 0.00 KM |
| RRX60 | £ 280,000 | 0 | 0.00 KM |
| RS238 | £ 0 | 0 | 0.00 KM |
| Watermill Close | £ 0 | 0 | 0.00 KM |
| Shalom | £ 0 | 0 | 0.00 KM |
Nearby Transport
| Name | NLC | TLC | Distance |
|---|---|---|---|
| Strood (Kent) | 5191 | SOO | 1.33 KM |
| Rochester | 5203 | RTR | 2.73 KM |
| Chatham | 5199 | CTM | 3.82 KM |
| Higham | 5202 | HGM | 4.37 KM |
| Cuxton | 5201 | CUX | 5.83 KM |
Nearby Listings
| Address | Price | Type | Score | Distance |
|---|---|---|---|---|
| Povey Avenue, Wainscott | £ 450,000 | BUY | 7 / 10 | 0.00 KM |
| Grasmere Grove, Rochester | £ 375,000 | BUY | 7 / 10 | 0.14 KM |
| Hollywood Lane, Wainscott, Rochester, Kent. ME3 | £ 450,000 | BUY | 7 / 10 | 0.20 KM |
| Hollywood Lane, Wainscott, Rochester, Kent, ME3 | £ 650,000 | BUY | 7 / 10 | 0.22 KM |
| Hollywood Lane, Wainscott, Rochester, Kent, ME3 | £ 550,000 | BUY | 6 / 10 | 0.24 KM |
Nearby Properties
| Address | Price | Distance |
|---|---|---|
| 42 Povey Avenue | £ 310,000 | 0.00 KM |
| 18 Povey Avenue | £ 291,000 | 0.00 KM |
| 34 Povey Avenue | £ 245,000 | 0.00 KM |
| 5 Povey Avenue | £ 255,000 | 0.00 KM |
| 19 Povey Avenue | £ 400,000 | 0.00 KM |