Riverside Quays, Bell Street, North Shields, NE30
By Bradley Hall Chartered Surveyors & Estate Agents
£ 265,000
Reviews
2 out of 5 stars
Bradley Hall Chartered Surveyors & Estate Agents says ..
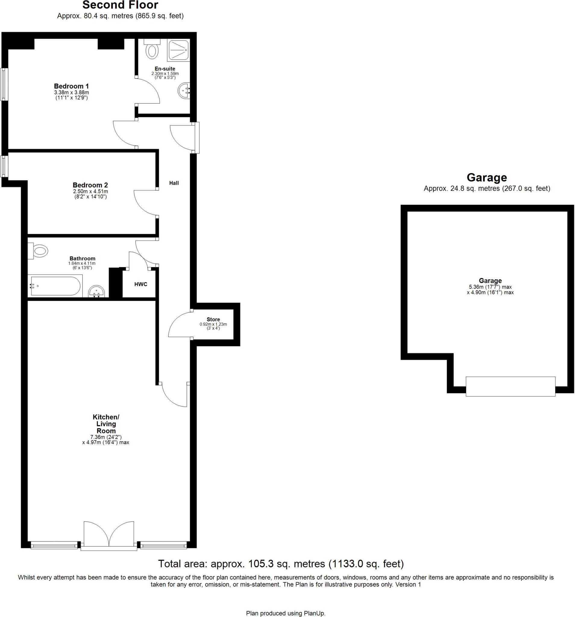
This spacious two-bedroom top-floor apartment offers unrivalled 180-degree views of the River Tyne. Located in the heart of North Shields Fish Quay, the property benefits from a wide range of bars, restaurants, and nearby beaches. Whether you are looking to downsize or purchase your first home, R...
Property Oracle says ..
This two-bedroom, two-bathroom apartment in Riverside Quays, North Shields, presents a compelling opportunity for buyers seeking a modern and conveniently located property. The apartment’s standout feature is undoubtedly its stunning panoramic river views, offering a unique and desirable living experience. The interior photographs reveal a well-maintained and modern space, with a contemporary kitchen and updated bathrooms. The open-plan living area is bright and airy, further enhanced by the large windows offering uninterrupted views. The apartment’s location in Riverside Quays offers potential for a vibrant lifestyle, although further information on local amenities and transport links would enrich the overall assessment. While the apartment lacks a private garden or extensive outdoor space, the presence of a garage adds a practical benefit. The list price of £265,000 requires further analysis relative to local property values to determine its full competitiveness within the market. Overall, the apartment presents a visually appealing and potentially advantageous residential proposition in a desirable location. More information is needed to obtain a fuller and more detailed analysis.
Therefore, we give this property 5 / 10. *Disclaimer: This is our option and does constitute a recommendation or financial advice. Do your own research. *
- Price
- 7
- Condition
- 7
- Location
- 7
- Land
- 1
- Bedrooms
- 2
- Bathrooms
- 2
- Sqft (est)
- 1,133.44
The heatmap indicates the level of crime in the area. The color of the heatmap indicates the crime severity and recency.
Metrics Year-on-Year
- Average area value
- 911,990.00 £Increased by 52.54 %
- Est sale value
- 541,784.32 £Decreased by 4.59 %
- Average area rental value
- 1,200.00 £/moDecreased by 18.81 %
- Est letting value
- 0.00 £/moDecreased by 100.00 %
- Est rental Yield
- 1.58 %Decreased by 46.80 %
- Crime Rate
- 4.00 %Unchanged by 0.00 %
Agent Activity
Bradley Hall Chartered Surveyors & Estate Agents created the listing.
Nearby Schools
| Name | Type | Ofsted | Distance |
|---|---|---|---|
| Hadrian Primary School | Community School | Outstanding | 0.89 KM |
| Christ Church Cofe Primary School | Voluntary Aided School | Good | 0.90 KM |
| Sir James Knott Memorial Nursery School | Local Authority Nursery School | Good | 1.09 KM |
| King Edward Primary School | Foundation School | Good | 1.09 KM |
| St Cuthbert'S Catholic Primary School, North Shields | Academy Converter | 1.35 KM |
Images
Nearby Streets
| Name | Average Price | Average Sqft | Distance |
|---|---|---|---|
| Charlotte Street | £ 250,000 | 0 | 0.00 KM |
| Queen Street | £ 0 | 0 | 0.00 KM |
| Mile End Road | £ 120,000 | 0 | 0.00 KM |
| Walker Place | £ 300,000 | 0 | 0.00 KM |
| Heron Drive | £ 0 | 0 | 0.00 KM |
Nearby Listings
| Address | Price | Type | Score | Distance |
|---|---|---|---|---|
| Riverside Quays, Bell Street, North Shields, NE30 | £ 265,000 | BUY | 5 / 10 | 0.00 KM |
| Waterfront Apartments, Bell Street, North Shields, NE30 | £ 245,000 | BUY | 6 / 10 | 0.08 KM |
| Quayside Court, North Shields | £ 105,000 | BUY | 5 / 10 | 0.09 KM |
| Waterfront Apartments, Bell Street, North Shields, NE30 | £ 219,995 | BUY | 5 / 10 | 0.19 KM |
| Linskill Street, North Shields | £ 295,000 | BUY | 7 / 10 | 0.21 KM |
Nearby Properties
| Address | Price | Distance |
|---|---|---|
| 37 Linskill Street | £ 205,000 | 0.15 KM |
| 4 Linskill Street | £ 159,950 | 0.15 KM |
| 2 Linskill Street | £ 155,250 | 0.15 KM |
| 43 Linskill Street | £ 180,000 | 0.15 KM |
| 22 Linskill Street | £ 160,000 | 0.15 KM |