River View, Haworth, Keighley, BD22
By Day & Co Estate Agents Limited
£ 235,000
Reviews
3 out of 5 stars
Day & Co Estate Agents Limited says ..
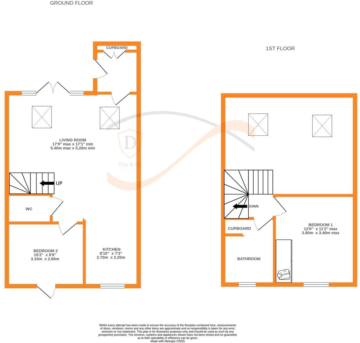
** MID MEWS TOWN HOUSE, TWO DOUBLE BEDROOMS, FEATURE OPEN PLAN LIVING ACCOMMODATION, ENCLOSED FRONT PATIO GARDEN, OFF ROAD PARKING SPACE, VIEWS TO REAR OF THE WORTH VALLEY RAILWAY, VIEWING ADVISED, EPC RATING B **
Property Oracle says ..
This is a modern terraced property located in the Worth Valley area of Haworth. The property benefits from a modern interior, a patio area, and proximity to local amenities and schools. The property is well-presented and appears to be in good condition. A unique feature of this property is the close proximity to the Keighley and Worth Valley Railway line.
Therefore, we give this property 7 / 10. *Disclaimer: This is our option and does constitute a recommendation or financial advice. Do your own research. *
- Price
- 7
- Condition
- 9
- Location
- 7
- Land
- 6
- Bedrooms
- 2
- Bathrooms
- 1
- Sqft (est)
- 161.46
The heatmap indicates the level of crime in the area. The color of the heatmap indicates the crime severity and recency.
Metrics Year-on-Year
- Average area value
- 856,250.00 £Increased by 15.74 %
- Est sale value
- 114,636.60 £Increased by 21.37 %
- Average area rental value
- 2,000.00 £/moDecreased by 15.25 %
- Est letting value
- 161.46 £/moUnchanged by 0.00 %
- Est rental Yield
- 2.80 %Decreased by 26.89 %
- Crime Rate
- 11.00 %Unchanged by 0.00 %
Agent Activity
Day & Co Estate Agents Limited created the listing.
Nearby Schools
| Name | Type | Ofsted | Distance |
|---|---|---|---|
| Treetops Children'S Centre | Children's Centre Linked Site | 0.74 KM | |
| Haworth Primary School | Academy Converter | Good | 0.74 KM |
| Lees Primary School | Academy Converter | 1.58 KM | |
| Oxenhope Cofe Primary School | Academy Converter | Good | 1.91 KM |
| Oakworth Primary School | Academy Converter | 1.92 KM |
Images
Nearby Streets
| Name | Average Price | Average Sqft | Distance |
|---|---|---|---|
| Thomas Street | £ 0 | 0 | 0.00 KM |
| Pine Street | £ 0 | 0 | 0.00 KM |
| Park Street | £ 0 | 0 | 0.00 KM |
| May Street | £ 0 | 0 | 0.00 KM |
| Bright Street | £ 149,995 | 0 | 0.00 KM |
Nearby Transport
| Name | NLC | TLC | Distance |
|---|---|---|---|
| Keighley | 8468 | KEI | 6.84 KM |
| Steeton And Silsden | 8469 | SON | 8.03 KM |
Nearby Listings
| Address | Price | Type | Score | Distance |
|---|---|---|---|---|
| River View, Haworth, Keighley, BD22 | £ 235,000 | BUY | 7 / 10 | 0.00 KM |
| River View, Haworth, Keighley, West Yorkshire, BD22 | £ 320,000 | BUY | 7 / 10 | 0.06 KM |
| Bridgehouse Mills, River View, Haworth, BD22 8SB | £ 220,000 | BUY | 6 / 10 | 0.06 KM |
| River View, Haworth, Keighley, BD22 | £ 380,000 | BUY | 7 / 10 | 0.07 KM |
| River View, Haworth, Keighley | £ 240,000 | BUY | 6 / 10 | 0.08 KM |
Nearby Properties
| Address | Price | Distance |
|---|---|---|
| 10 Surgery Street | £ 92,000 | 0.09 KM |
| 2 Thomas Street | £ 155,000 | 0.18 KM |
| 2 Pine Street | £ 86,000 | 0.19 KM |
| 3 Station Road | £ 122,000 | 0.20 KM |
| 28 Ivy Bank Lane | £ 250,000 | 0.20 KM |