Eastmoor Park, Cuffern, Roch
West Wales Properties logo

Eastmoor Park, Cuffern, Roch

By West Wales Properties

£ 70,000

Reviews

2 out of 5 stars

West Wales Properties says ..

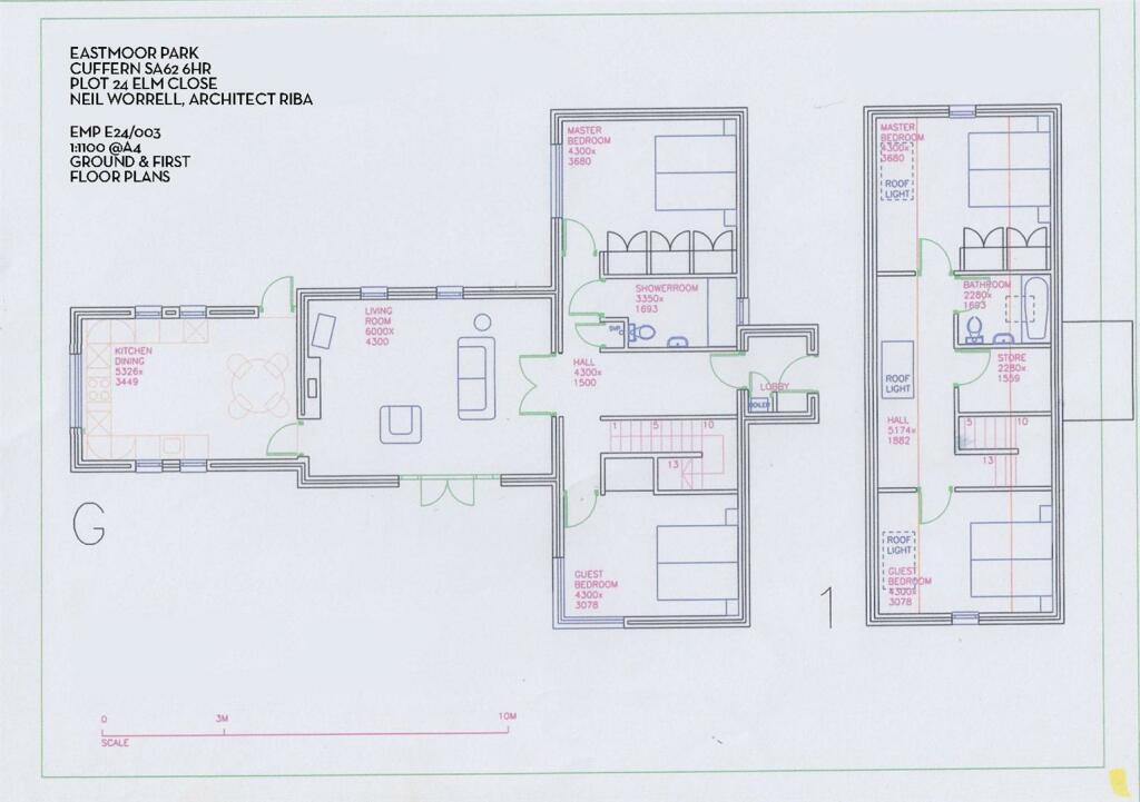
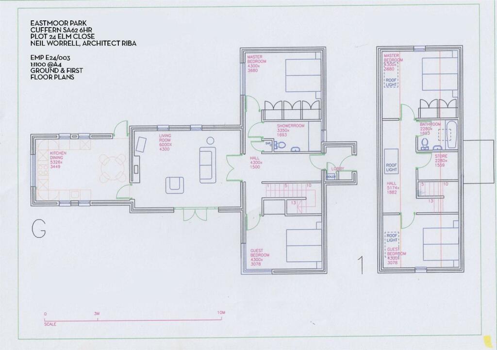
An opportunity to purchase the last available Freehold building plot on an established rural residential development, within 1.5 miles of the historic Roch Castle, and less than 4 miles from the award winning long sandy beach at Newgale. The permission is for a four bedroom, two bathroom...

Property Oracle says ..

This listing presents an opportunity to acquire a freehold building plot in the desirable location of Cuffern, Pembrokeshire. Situated within the Eastmoor Park development, the plot offers the potential to build a home in a tranquil setting yet relatively close to local amenities and attractions. The nearby streets show some variability in average house pricing, indicating a range of potential future value dependent on the size and style of the property constructed on this plot. The proximity to the coast and Roch Castle adds appeal for those seeking a balance between rural life and access to coastal attractions. However, potential buyers need to carefully factor in the costs associated with building a new home, including planning permissions, construction, and other associated fees. The absence of specific plot dimensions and the lack of information about the permitted build make it crucial to conduct thorough due diligence before making a purchase decision. Information about nearby schools would be beneficial, with further research required on Ofsted ratings to assess their quality thoroughly. Transportation links appear somewhat limited locally, though nearby towns likely offer better access. Overall, this represents a development opportunity; however, buyers should carefully consider all associated costs and undertake detailed research to assess suitability.

Therefore, we give this property 5 / 10. *Disclaimer: This is our option and does constitute a recommendation or financial advice. Do your own research. *

Price
7
Condition
1
Location
7
Land
6
Bedrooms
0
Bathrooms
0

The heatmap indicates the level of crime in the area. The color of the heatmap indicates the crime severity and recency.

Metrics Year-on-Year

Average area value
278,905.00 £
Increased by 2.67 %
from 271,663.00 £
Average area rental value
800.00 £/mo
Decreased by 34.53 %
from 1,222.00 £/mo
Est rental Yield
3.44 %
Decreased by 36.30 %
from 5.40 %
Crime Rate
2,673.00 %
Unchanged by 0.00 %
from 2,673.00 %

Agent Activity

  • West Wales Properties created the listing.

Nearby Schools

NameTypeOfstedDistance
Roch C.P. SchoolWelsh Establishment4.44 KM
Marlowe St David'S Education UnitWelsh Establishment9.47 KM
Broad Haven C.P. SchoolWelsh Establishment9.62 KM
Portfield SchoolWelsh Establishment9.96 KM

Images

EMP E24 004 Elevations.jpg EMP E24 005 Garage.jpg EMP E24 004 Elevations.jpg 2 (3).jpg 3 (2).jpg EMP E24 003 Plan.jpg EMP E24 003 Plan.jpg Plot24 Elm Close.jpg 1 (5).jpg 4 (1).jpg 5 (1).jpg

Nearby Streets

NameAverage PriceAverage SqftDistance
Chapel Road £ 350,00000.00 KM

Nearby Listings

AddressPriceTypeScoreDistance
Eastmoor Park, Cuffern, Roch £ 70,000BUY5 / 100.00 KM
Eastmoor Park, Cuffern, Roch, Haverfordwest, SA62 £ 340,000BUY7 / 100.06 KM
Eastmoor Park, Cuffern, Roch, Haverfordwest, SA62 £ 350,000BUYUnknown0.06 KM
The Woodlands, Cuffern, Roch,, Haverfordwest £ 59,995BUY6 / 100.17 KM
Roch, Haverfordwest, Pembrokeshire, SA62 £ 61,000BUYUnknown0.24 KM

Nearby Properties

AddressPriceDistance
4 Dudwell Farm Cottages £ 109,5001.69 KM
2 Dudwell Farm Cottages £ 135,0001.74 KM
The Dower House £ 227,0001.88 KM
Abbots Leigh £ 235,0001.88 KM
Gateways £ 245,0001.88 KM