Queens School House, School Lane, Newport, NP20 1LE
By Seel & Co Ltd
£ 100,000
Reviews
3 out of 5 stars
Seel & Co Ltd says ..
FOR SALE BY PUBLIC AUCTION: The auction will take place online on 28th October 2025 at 04:18 PM with registration through our website.
Property Oracle says ..
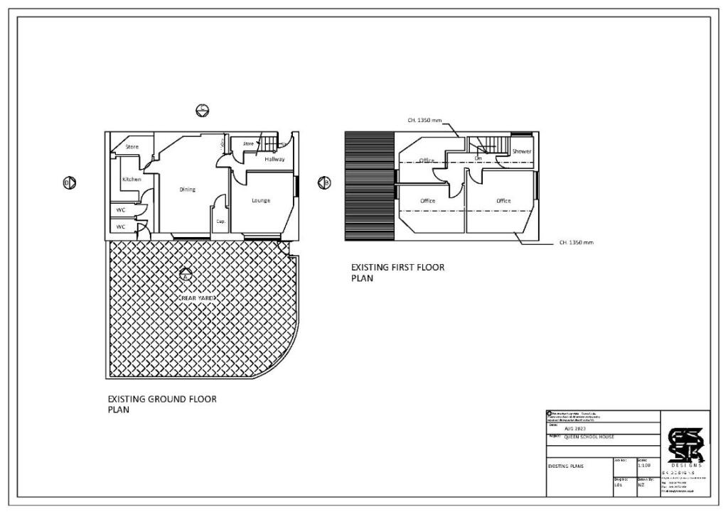
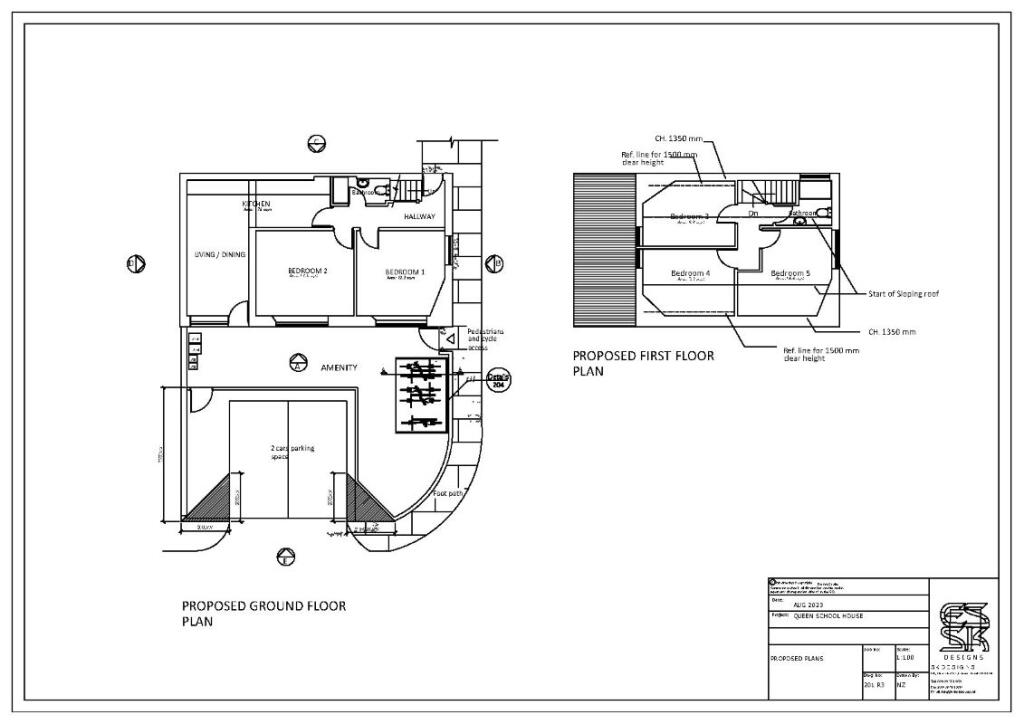
The property at Queens School House presents a unique opportunity. While it requires significant renovation and modernization, its location near schools and transportation, combined with a below-average list price, makes it an attractive investment. The presence of a garden, despite its current condition, adds to the property’s potential. The floor plans suggest the possibility of converting the space into residential units, increasing its value further. However, the property’s condition and the mixed nature of the surrounding area should be carefully considered.
Therefore, we give this property 6 / 10. *Disclaimer: This is our option and does constitute a recommendation or financial advice. Do your own research. *
- Price
- 8
- Condition
- 4
- Location
- 7
- Land
- 6
- Bedrooms
- 0
- Bathrooms
- 2
The heatmap indicates the level of crime in the area. The color of the heatmap indicates the crime severity and recency.
Metrics Year-on-Year
- Average area value
- 360,833.00 £Decreased by 13.57 %
- Average area rental value
- 1,178.00 £/moIncreased by 8.17 %
- Est rental Yield
- 3.92 %Increased by 25.24 %
- Crime Rate
- 10.00 %Unchanged by 0.00 %
Agent Activity
Seel & Co Ltd created the listing.
Nearby Schools
| Name | Type | Ofsted | Distance |
|---|---|---|---|
| St Woolos Primary School | Welsh Establishment | 0.21 KM | |
| St Mary'S R.C. Primary School | Welsh Establishment | 0.67 KM | |
| Maindee C.P. School | Welsh Establishment | 1.11 KM | |
| Pillgwenlly C.P. School | Welsh Establishment | 1.13 KM | |
| St Michael'S R.C. Primary School | Welsh Establishment | 1.39 KM |
Images
Nearby Streets
| Name | Average Price | Average Sqft | Distance |
|---|---|---|---|
| Bailey Street | £ 152,500 | 0 | 0.00 KM |
| West Street | £ 160,000 | 0 | 0.00 KM |
| St. Mary Street | £ 136,250 | 0 | 0.00 KM |
| Havelock Street | £ 0 | 0 | 0.00 KM |
| Victoria Crescent | £ 166,667 | 0 | 0.00 KM |
Nearby Transport
| Name | NLC | TLC | Distance |
|---|---|---|---|
| Newport (South Wales) | 3674 | NWP | 0.39 KM |
| Pye Corner | 1663 | PYE | 4.30 KM |
| Rogerstone | 9921 | ROR | 7.55 KM |
| Cwmbran | 3738 | CWM | 8.12 KM |
Nearby Listings
| Address | Price | Type | Score | Distance |
|---|---|---|---|---|
| Queens School House, School Lane, Newport, NP20 1LE | £ 100,000 | BUY | 6 / 10 | 0.00 KM |
| Bailey Street, Newport | £ 210,000 | BUY | 7 / 10 | 0.04 KM |
| St Mary Street, Newport | £ 170,000 | BUY | 5 / 10 | 0.07 KM |
| Jones Street, Newport, NP20 | £ 140,000 | BUY | 6 / 10 | 0.10 KM |
| Jones Street, Newport. NP20 4GJ | £ 145,000 | BUY | 6 / 10 | 0.10 KM |
Nearby Properties
| Address | Price | Distance |
|---|---|---|
| 5 Beaufort Terrace | £ 117,000 | 0.04 KM |
| 1 Beaufort Terrace | £ 142,000 | 0.06 KM |
| 4 Beaufort Terrace | £ 119,000 | 0.06 KM |
| 3 Beaufort Terrace | £ 132,000 | 0.06 KM |
| 16 St Mary Street | £ 42,000 | 0.06 KM |