haart says ..
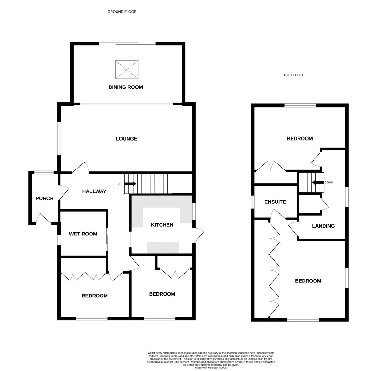
This spacious and beautifully extended 4-bedroom detached chalet bungalow offers an exceptional blend of comfort, style, and modern living. Located in a sought-after area, the property boasts an expansive layout that is perfect for family life
Property Oracle says ..
This property is located in St Osyth, Essex, a village with a mix of housing types. The property itself is a four-bedroom house with two bathrooms, and a good-sized garden with a decked area and a covered swimming pool. The interior appears well-maintained and recently updated, with a modern kitchen and bathrooms. The location is relatively quiet, and while it may not be in the heart of a bustling town, it offers proximity to coastal areas and has a number of schools within a reasonable distance. The price seems reasonable considering the size of the house, the condition of the property, and the inclusion of a garden. However, a more detailed comparison with similar properties in the area would be needed to fully assess its value.
Therefore, we give this property 7 / 10. *Disclaimer: This is our option and does constitute a recommendation or financial advice. Do your own research. *
- Price
- 7
- Condition
- 8
- Location
- 7
- Land
- 7
- Bedrooms
- 4
- Bathrooms
- 2
- Sqft (est)
- 1,430.00
The heatmap indicates the level of crime in the area. The color of the heatmap indicates the crime severity and recency.
Metrics Year-on-Year
- Average area value
- 350,323.00 £Decreased by 1.18 %
- Est sale value
- 616,330.00 £Increased by 20.73 %
- Average area rental value
- 1,334.00 £/moDecreased by 2.49 %
- Est letting value
- 1,430.00 £/moUnchanged by 0.00 %
- Est rental Yield
- 4.57 %Decreased by 1.30 %
- Crime Rate
- 25.00 %Unchanged by 0.00 %
Agent Activity
haart created the listing.
Nearby Schools
| Name | Type | Ofsted | Distance |
|---|---|---|---|
| Brightlingsea Primary School And Nursery | Community School | Requires improvement | 2.57 KM |
| Colne Community School And College (Secondary And 16 To 19 Provision) | Academy Converter | 3.32 KM | |
| St Osyth Church Of England Primary School | Academy Sponsor Led | Requires improvement | 4.86 KM |
| Great Bentley Primary School | Community School | Outstanding | 6.92 KM |
| Alresford Primary School | Community School | Good | 7.44 KM |
Images
Nearby Streets
| Name | Average Price | Average Sqft | Distance |
|---|---|---|---|
| Shipyard Estate | £ 0 | 0 | 0.00 KM |
Nearby Transport
| Name | NLC | TLC | Distance |
|---|---|---|---|
| Great Bentley | 6855 | GRB | 6.96 KM |
| Alresford (Essex) | 6847 | ALR | 7.89 KM |
Nearby Listings
| Address | Price | Type | Score | Distance |
|---|---|---|---|---|
| Alpha Road, Clacton-On-Sea | £ 350,000 | BUY | 7 / 10 | 0.00 KM |
| Alpha Road, St. Osyth, Clacton-On-Sea | £ 340,000 | BUY | 7 / 10 | 0.00 KM |
| Alpha Road, St. Osyth | £ 299,950 | BUY | 7 / 10 | 0.09 KM |
| Alpha Road, St. Osyth | £ 201,000 | BUY | 6 / 10 | 0.10 KM |
| Alpha Road, Point Clear, CO16 | £ 450,000 | BUY | 7 / 10 | 0.10 KM |
Nearby Properties
| Address | Price | Distance |
|---|---|---|
| 21 Alpha Road | £ 144,000 | 0.08 KM |
| Rosewood | £ 178,000 | 0.08 KM |
| Benru | £ 107,500 | 0.08 KM |
| The Willows | £ 146,000 | 0.08 KM |
| 21a Alpha Road | £ 208,000 | 0.10 KM |