FREEHOLD INVESTMENT OPPORTUNITY - High Street, Tonbridge, TN9 1DR - (19 Apartments)
By Bracketts Chartered Surveyors
£ 6,950,000
Reviews
2 out of 5 stars
Bracketts Chartered Surveyors says ..
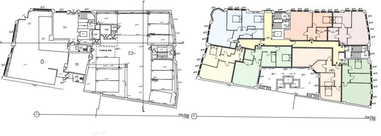
FREEHOLD RESIDENTIAL INVESTMENT – TONBRIDGE TOWN CENTRE 19 High Quality Apartments Fully Let to Tonbridge & Malling Borough CouncilPassing Income: £309,500 per annumInvestment Summary. A rare opportunity to acquire a newly converted and extended freehold residential investment in ...
Property Oracle says ..
This property represents a freehold investment opportunity comprising 19 apartments on High Street, Tonbridge. The location is central, offering good access to local amenities and transport links. The building’s condition appears fair from the exterior, but internal inspections are necessary. There is no garden. The asking price of £6,950,000 equates to approximately £365,789 per apartment, which is below the average property price in Tonbridge. This could be an attractive investment, subject to the condition of the apartments and their rental potential.
Therefore, we give this property 5 / 10. *Disclaimer: This is our option and does constitute a recommendation or financial advice. Do your own research. *
- Price
- 7
- Condition
- 6
- Location
- 8
- Land
- 1
- Bedrooms
- 1
- Bathrooms
- 1
The heatmap indicates the level of crime in the area. The color of the heatmap indicates the crime severity and recency.
Metrics Year-on-Year
- Average area value
- 456,000.00 £Increased by 25.16 %
- Average area rental value
- 1,667.00 £/moIncreased by 20.45 %
- Est rental Yield
- 4.39 %Decreased by 3.73 %
- Crime Rate
- 32.00 %Unchanged by 0.00 %
Agent Activity
Bracketts Chartered Surveyors created the listing.
Nearby Schools
| Name | Type | Ofsted | Distance |
|---|---|---|---|
| Slade Primary School And Attached Unit For Children With Hearing Impairment | Community School | Outstanding | 0.42 KM |
| Tonbridge School | Other Independent School | 0.49 KM | |
| South Tonbridge Children'S Centre | Children's Centre | 0.58 KM | |
| Hilden Oaks Preparatory School And Nursery | Other Independent School | 0.96 KM | |
| Hilden Grange School | Other Independent School | 0.96 KM |
Images
Nearby Streets
| Name | Average Price | Average Sqft | Distance |
|---|---|---|---|
| Castle Street | £ 290,000 | 0 | 0.00 KM |
| Lyons Crescent | £ 330,357 | 0 | 0.00 KM |
| High Street | £ 260,500 | 0 | 0.00 KM |
| Tannery Road | £ 0 | 0 | 0.00 KM |
| Stafford Road | £ 0 | 0 | 0.00 KM |
Nearby Transport
| Name | NLC | TLC | Distance |
|---|---|---|---|
| Tonbridge | 5229 | TON | 0.68 KM |
| High Brooms | 5235 | HIB | 5.18 KM |
| Hildenborough | 5236 | HLB | 5.66 KM |
| Leigh (Kent) | 5294 | LIH | 7.16 KM |
| Tunbridge Wells | 5230 | TBW | 7.43 KM |
Nearby Listings
| Address | Price | Type | Score | Distance |
|---|---|---|---|---|
| FREEHOLD INVESTMENT OPPORTUNITY - High Street, Tonbridge, TN9 1DR - (19 Apartments) | £ 6,950,000 | BUY | 5 / 10 | 0.00 KM |
| Lyons Crescent, Tonbridge, Kent, TN9 | £ 475,000 | BUY | 8 / 10 | 0.05 KM |
| Lyons Crescent, Tonbridge | £ 260,000 | BUY | 7 / 10 | 0.08 KM |
| Medway Wharf Road, Tonbridge | £ 120,000 | BUY | 5 / 10 | 0.09 KM |
| Medway Wharf Road, Tonbridge | £ 240,000 | BUY | 6 / 10 | 0.09 KM |
Nearby Properties
| Address | Price | Distance |
|---|---|---|
| 9 Lyons Crescent | £ 578,000 | 0.10 KM |
| 2k Lyons Crescent | £ 190,000 | 0.10 KM |
| 2a Lyons Crescent | £ 218,000 | 0.11 KM |
| 27 East Street | £ 780,000 | 0.14 KM |
| 2e Lyons Crescent | £ 220,000 | 0.14 KM |