Miles & Barr says ..
Introducing this beautifully presented, three bedroom mid terraced house, located conveniently close to an array of local amenities. Situated in a sought after neighbourhood, this property boasts an impressive range of features that are sure to capture the attention of discerning buyers.
Property Oracle says ..
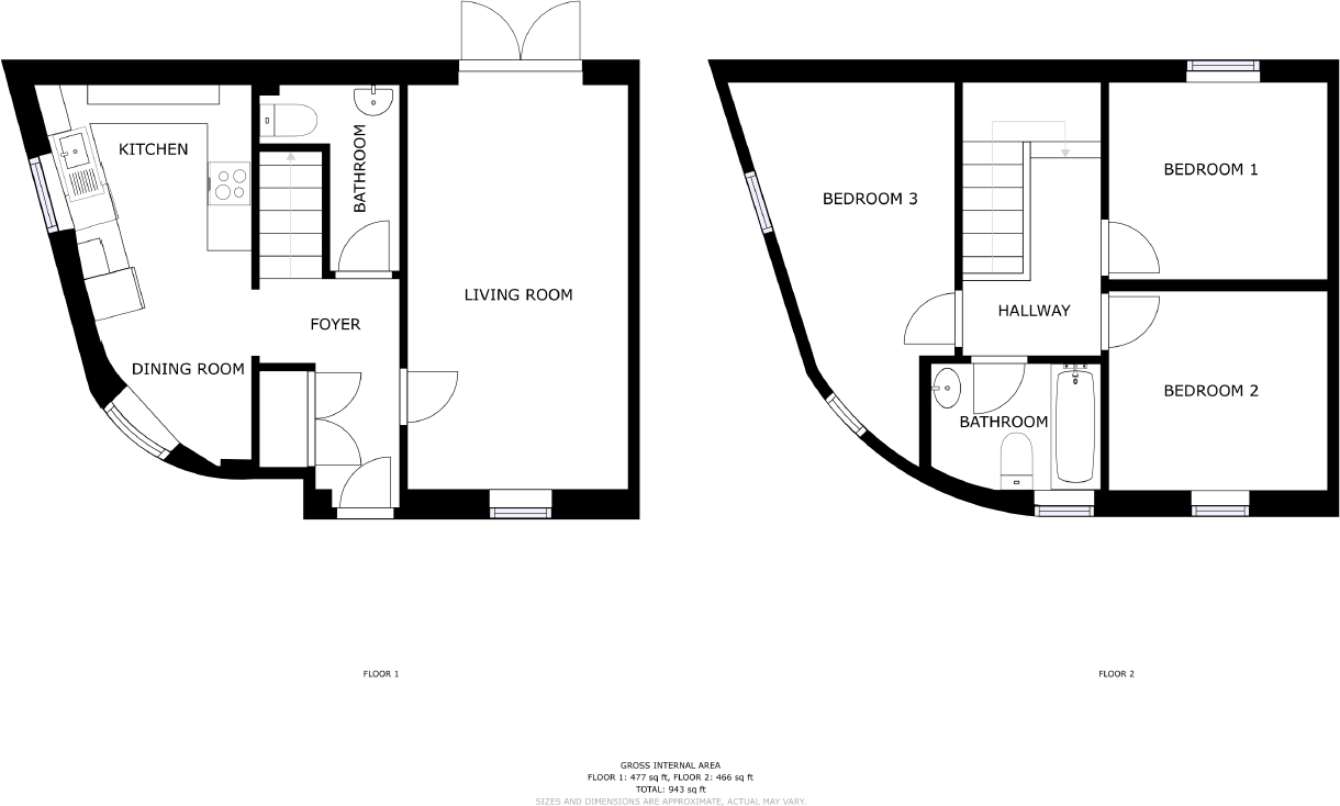
The property is a 3-bedroom terraced house located on Hereson Road in Ramsgate, Kent. It has a small enclosed rear garden. The property is presented in good condition and benefits from a modern fitted kitchen and bathroom. The location is convenient, with nearby schools and transportation links. The list price of £225,000 is slightly below the average price for the area (£277,719), but the average price per sqft is £342 compared to this property’s size of 943 sqft, making the price seem reasonable. Nearby comparable properties on Hereson Road are listed between £165,000 and £260,000, supporting the valuation. The property benefits from being close to good schools, including St Ethelbert’s Catholic Primary School (Good Ofsted rating) and Ramsgate Holy Trinity Church of England Primary School (Outstanding Ofsted rating), both within a kilometer. The proximity to Dumpton Park train station provides convenient access to transportation. Based on the provided images, the property appears to be well-maintained and in good condition. There is no evidence to suggest that it requires significant renovation. The small rear garden, while not extensive, provides some outdoor space.
Therefore, we give this property 6 / 10. *Disclaimer: This is our option and does constitute a recommendation or financial advice. Do your own research. *
- Price
- 7
- Condition
- 8
- Location
- 7
- Land
- 4
- Bedrooms
- 3
- Bathrooms
- 1
- Sqft (est)
- 943.00
- Lot (est)
- 943.00
The heatmap indicates the level of crime in the area. The color of the heatmap indicates the crime severity and recency.
Metrics Year-on-Year
- Average area value
- 338,398.00 £Increased by 11.63 %
- Est sale value
- 354,568.00 £Increased by 5.92 %
- Average area rental value
- 995.00 £/moDecreased by 10.28 %
- Est letting value
- 943.00 £/moUnchanged by 0.00 %
- Est rental Yield
- 3.53 %Decreased by 19.59 %
- Crime Rate
- 9.00 %Unchanged by 0.00 %
Agent Activity
Miles & Barr created the listing.
Nearby Schools
| Name | Type | Ofsted | Distance |
|---|---|---|---|
| St Ethelbert'S Catholic Primary School | Voluntary Aided School | Good | 0.15 KM |
| Newlands Children'S Centre | Children's Centre | 0.85 KM | |
| Newlands Primary School | Academy Sponsor Led | Good | 0.85 KM |
| Ramsgate, Holy Trinity Church Of England Primary School | Voluntary Aided School | Outstanding | 0.99 KM |
| Chatham & Clarendon Grammar School | Academy Converter | Good | 1.12 KM |
Images
Nearby Streets
| Name | Average Price | Average Sqft | Distance |
|---|---|---|---|
| Mulberry Close | £ 260,000 | 0 | 0.00 KM |
| St. George's Road | £ 253,200 | 0 | 0.00 KM |
| Thanet Road | £ 231,900 | 0 | 0.00 KM |
| Union Road | £ 270,000 | 0 | 0.00 KM |
| Salisbury Avenue | £ 226,100 | 0 | 0.00 KM |
Nearby Transport
| Name | NLC | TLC | Distance |
|---|---|---|---|
| Dumpton Park | 5034 | DMP | 0.64 KM |
| Ramsgate | 5023 | RAM | 2.13 KM |
| Broadstairs | 5006 | BSR | 2.46 KM |
| Margate | 5018 | MAR | 7.80 KM |
Nearby Listings
| Address | Price | Type | Score | Distance |
|---|---|---|---|---|
| Hereson Road, Ramsgate, CT11 | £ 225,000 | BUY | 6 / 10 | 0.00 KM |
| Hereson Road, Ramsgate, CT11 7DU | £ 225,000 | BUY | 5 / 10 | 0.04 KM |
| Mulberry Close, Ramsgate, CT11 8EW | £ 349,995 | BUY | 5 / 10 | 0.08 KM |
| Lillian Road, Ramsgate, Kent, CT11 | £ 350,000 | BUY | 6 / 10 | 0.11 KM |
| Lillian Road, Ramsgate | £ 350,000 | BUY | Unknown | 0.11 KM |
Nearby Properties
| Address | Price | Distance |
|---|---|---|
| 95 Hereson Road | £ 152,500 | 0.05 KM |
| 85 Hereson Road | £ 246,000 | 0.05 KM |
| 97 Hereson Road | £ 165,000 | 0.05 KM |
| 100 Hereson Road | £ 165,000 | 0.05 KM |
| 81 Hereson Road | £ 174,995 | 0.05 KM |