Waterfords says ..
Offered to the market is this 2-bedroom home with private rear garden, electric car charger and presented in excellent condition throughout making it ideal for first-time buyers and investors alike.
Property Oracle says ..
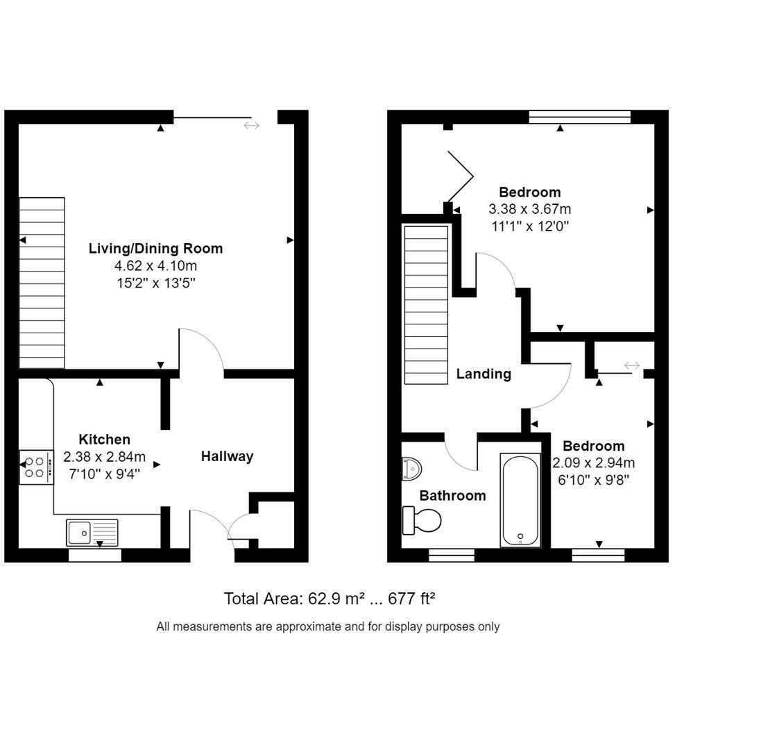
This 2-bedroom end-of-terrace house in Fleet, Hampshire, presents a compelling proposition for potential buyers. Located near Fleet railway station, the property benefits from convenient access to commuting routes. The inclusion of a private rear garden adds to its appeal. The property appears well-maintained, with updated kitchen and bathroom facilities, as seen in the images. While specific information regarding the property size in square feet and the exact plot size is unavailable, the images show it to be a compact property with a reasonably sized garden. The list price of £340,000 is worth examining against recently sold properties in the immediate vicinity to allow for a full market valuation. The presence of good schools in relatively close proximity adds to the property’s family-friendliness, making it potentially attractive to first-time buyers and families alike. Further investigation into the specific amenities and features of the neighbourhood would improve the assessment. Buyers should obtain a professional survey to confirm the property’s structural integrity before making a purchasing decision.
Therefore, we give this property 6 / 10. *Disclaimer: This is our option and does constitute a recommendation or financial advice. Do your own research. *
- Price
- 7
- Condition
- 8
- Location
- 7
- Land
- 4
- Bedrooms
- 2
- Bathrooms
- 1
- Sqft (est)
- 677.00
The heatmap indicates the level of crime in the area. The color of the heatmap indicates the crime severity and recency.
Metrics Year-on-Year
- Average area value
- 510,625.00 £Increased by 2.78 %
- Est sale value
- 420,417.00 £Increased by 48.21 %
- Average area rental value
- 1,150.00 £/moDecreased by 10.92 %
- Est letting value
- 677.00 £/moUnchanged by 0.00 %
- Est rental Yield
- 2.70 %Decreased by 13.46 %
- Crime Rate
- 26.00 %Unchanged by 0.00 %
Agent Activity
Waterfords marked this listing as sold.
Waterfords created the listing.
Nearby Schools
| Name | Type | Ofsted | Distance |
|---|---|---|---|
| Fleet Infant School | Community School | Outstanding | 2.34 KM |
| Velmead Junior School | Community School | Good | 2.38 KM |
| Heatherside Infant School | Community School | Outstanding | 2.69 KM |
| Heatherside Junior School | Community School | Outstanding | 2.69 KM |
| Fleet Fireflies Children'S Centre | Children's Centre Linked Site | 2.79 KM |
Images
Nearby Streets
| Name | Average Price | Average Sqft | Distance |
|---|---|---|---|
| Lyme Drive | £ 0 | 0 | 0.00 KM |
| Fleet Mill | £ 0 | 0 | 0.00 KM |
| B3013 | £ 268,333 | 0 | 0.00 KM |
| Barley Way | £ 0 | 0 | 0.00 KM |
| M3 | £ 0 | 0 | 0.00 KM |
Nearby Transport
| Name | NLC | TLC | Distance |
|---|---|---|---|
| Fleet | 5522 | FLE | 0.70 KM |
| Sandhurst (Berks) | 5646 | SND | 6.22 KM |
| Blackwater | 5625 | BAW | 6.84 KM |
| Farnborough (Main) | 5521 | FNB | 7.88 KM |
| Crowthorne | 5628 | CRN | 7.95 KM |
Nearby Listings
| Address | Price | Type | Score | Distance |
|---|---|---|---|---|
| Swaledale Gardens, Fleet, Hampshire, GU51 | £ 400,000 | BUY | 7 / 10 | 0.00 KM |
| Swaledale Gardens, Fleet, GU51 2TE | £ 600,000 | BUY | 7 / 10 | 0.04 KM |
| Cheviot Drive, Fleet, GU51 2TF | £ 385,000 | BUY | 7 / 10 | 0.06 KM |
| Cheviot Drive, Fleet, Hampshire, GU51 | £ 375,000 | BUY | 7 / 10 | 0.08 KM |
| Cherberry Close, Fleet | £ 180,000 | BUY | 7 / 10 | 0.11 KM |
Nearby Properties
| Address | Price | Distance |
|---|---|---|
| 27 Swaledale Gardens | £ 60,000 | 0.01 KM |
| 5 Swaledale Gardens | £ 300,000 | 0.01 KM |
| 28 Swaledale Gardens | £ 175,000 | 0.01 KM |
| 20 Swaledale Gardens | £ 81,000 | 0.01 KM |
| 2 Swaledale Gardens | £ 250,000 | 0.01 KM |