Seattle Avenue, Bispham, FY2
By The Square Room
£ 170,000
Reviews
3 out of 5 stars
The Square Room says ..
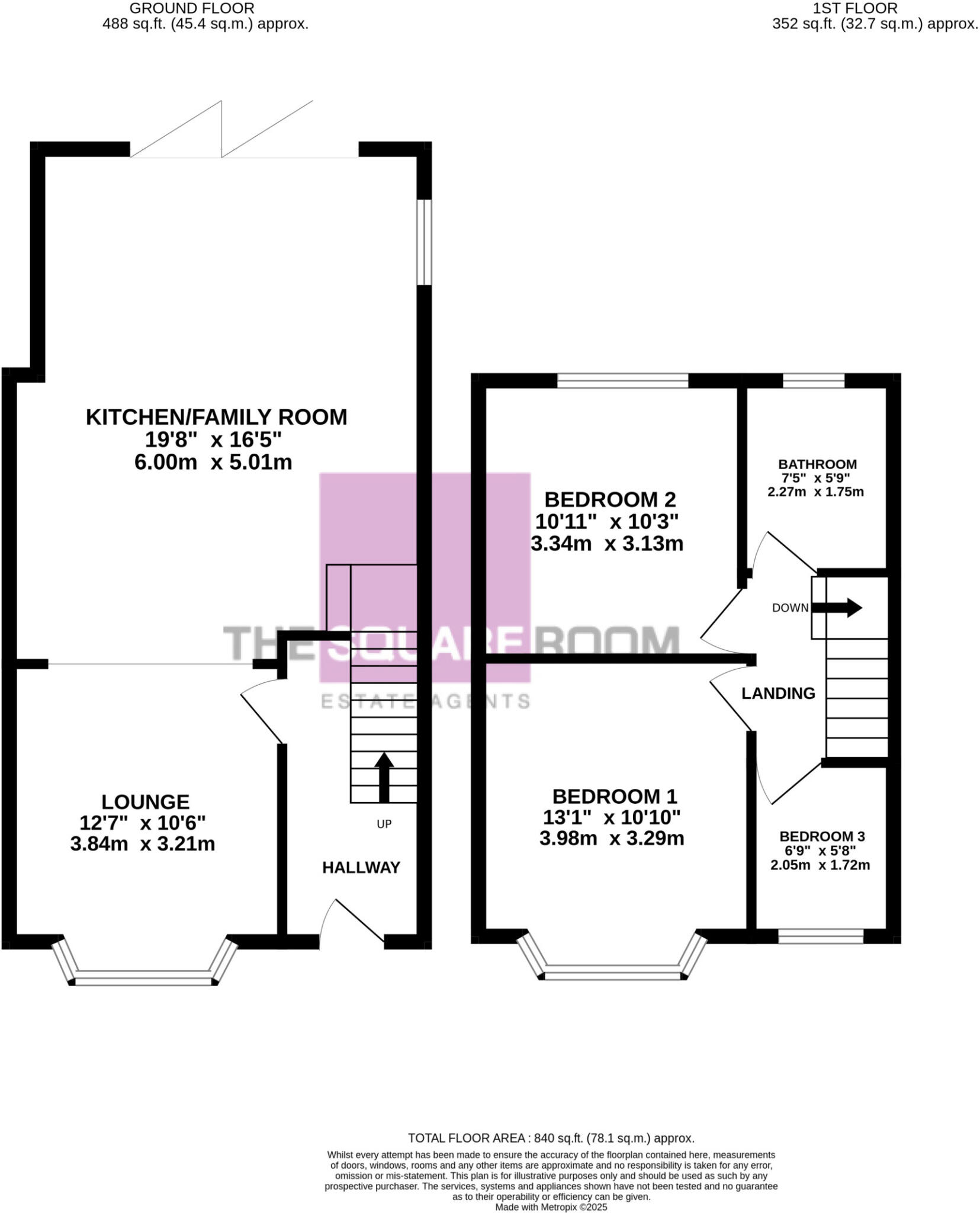
STUNNING AND EXTENDED THREE BEDROOM SEMI DETACHED FAMILY HOME - MODERN OPEN PLAN KITCHEN/FAMILY ROOM - MODERN FITTED BATHROOM - TASTEFULLY DECORATED THROUGHOUT - EASY ACCESS TO LOCAL SHOPS SCHOOLS AND BUS ROUTES - READY TO MOVE INTO -
Property Oracle says ..
This property is a three-bedroom semi-detached house located in Bispham, Blackpool. The property has undergone a significant extension and renovation, resulting in a modern and well-presented interior. The kitchen is a particular highlight, featuring a large open-plan design with a skylight, modern appliances, and ample storage. The garden is of a reasonable size and includes a shed and greenhouse, providing potential for outdoor activities and gardening. The property is conveniently located near several schools and transportation links, making it suitable for families and commuters. However, the average price per square foot in the area is significantly higher than that of the property, indicating a potentially lower price than might be expected given the condition and location.
Therefore, we give this property 7 / 10. *Disclaimer: This is our option and does constitute a recommendation or financial advice. Do your own research. *
- Price
- 7
- Condition
- 9
- Location
- 8
- Land
- 7
- Bedrooms
- 3
- Bathrooms
- 1
- Sqft (est)
- 780.00
- Lot (est)
- 840.00
The heatmap indicates the level of crime in the area. The color of the heatmap indicates the crime severity and recency.
Metrics Year-on-Year
- Average area value
- 290,444.00 £Increased by 45.57 %
- Est sale value
- 257,400.00 £Increased by 74.60 %
- Average area rental value
- 1,060.00 £/moIncreased by 29.74 %
- Est letting value
- 780.00 £/mo
- Est rental Yield
- 4.38 %Decreased by 10.79 %
- Crime Rate
- 5.00 %Unchanged by 0.00 %
Agent Activity
The Square Room created the listing.
Nearby Schools
| Name | Type | Ofsted | Distance |
|---|---|---|---|
| Moor Park Primary School | Community School | Good | 0.46 KM |
| Bispham Endowed Church Of England Primary School | Voluntary Controlled School | Good | 1.21 KM |
| Unity Academy Blackpool | Academy Sponsor Led | Good | 1.24 KM |
| Unity College Blackpool Children'S Centre | Children's Centre Linked Site | 1.29 KM | |
| Layton Primary School | Community School | Outstanding | 1.41 KM |
Images
Nearby Streets
| Name | Average Price | Average Sqft | Distance |
|---|---|---|---|
| Greenlands Road | £ 0 | 0 | 0.00 KM |
| Greenbanks | £ 0 | 0 | 0.00 KM |
| Holcombe Road | £ 0 | 0 | 0.00 KM |
| Depot Road | £ 0 | 0 | 0.00 KM |
| Regency Gardens | £ 227,500 | 0 | 0.00 KM |
Nearby Transport
| Name | NLC | TLC | Distance |
|---|---|---|---|
| Layton (Lancs) | 2669 | LAY | 0.82 KM |
| Blackpool North | 2739 | BPN | 3.09 KM |
| Poulton-Le-Fylde | 2671 | PFY | 4.47 KM |
| Blackpool South | 2740 | BPS | 5.28 KM |
| Blackpool Pleasure Beach | 2738 | BPB | 6.60 KM |
Nearby Listings
| Address | Price | Type | Score | Distance |
|---|---|---|---|---|
| Seattle Avenue, Bispham, FY2 | £ 170,000 | BUY | 7 / 10 | 0.00 KM |
| Low Moor Road, Blackpool, FY2 | £ 230,000 | BUY | Unknown | 0.09 KM |
| Washington Avenue, Bispham | £ 109,950 | BUY | 6 / 10 | 0.10 KM |
| Salmesbury Avenue, Blackpool | £ 170,000 | BUY | 7 / 10 | 0.12 KM |
| Salmesbury Avenue, Blackpool, FY2 | £ 145,000 | BUY | 5 / 10 | 0.12 KM |
Nearby Properties
| Address | Price | Distance |
|---|---|---|
| 5 Seattle Avenue | £ 110,000 | 0.03 KM |
| 23 Seattle Avenue | £ 52,000 | 0.03 KM |
| 9 Seattle Avenue | £ 119,000 | 0.03 KM |
| 20 Seattle Avenue | £ 95,000 | 0.03 KM |
| 25 Seattle Avenue | £ 46,000 | 0.03 KM |