AN
Clock House Road, Beckenham, London, BR3
By Andrew Kingsley
£ 655,000
Reviews
4 out of 5 stars
Andrew Kingsley says ..
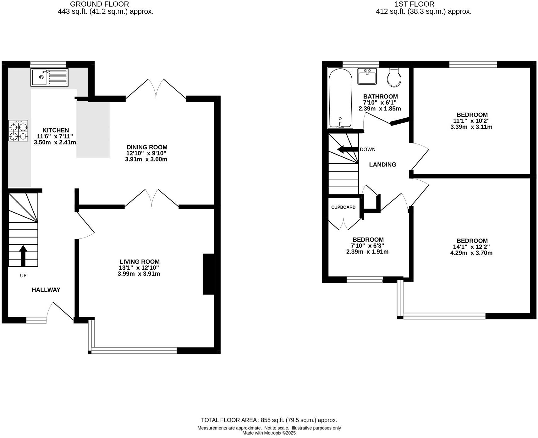
Andrew Kingsley is delighted to offer 'For Sale' this 3 Bed Terraced Family Home with off street parking for several vehicles plus a large rear Garden - immaculately presented & refurbished to a high modern standard and situated in a popular residential road. Balgowan and Marian Vian Catchment area.
Property Oracle says ..
Therefore, we give this property 8 / 10. *Disclaimer: This is our option and does constitute a recommendation or financial advice. Do your own research. *
- Price
- 9
- Condition
- 8
- Location
- 8
- Land
- 7
- Bedrooms
- 3
- Bathrooms
- 1
- Sqft (est)
- 2,565.00
The heatmap indicates the level of crime in the area. The color of the heatmap indicates the crime severity and recency.
Metrics Year-on-Year
- Average area value
- 666,950.00 £Increased by 20.68 %
- Est sale value
- 1,818,585.00 £Increased by 27.98 %
- Average area rental value
- 1,565.00 £/moDecreased by 5.89 %
- Est letting value
- 2,565.00 £/moUnchanged by 0.00 %
- Est rental Yield
- 2.82 %Decreased by 21.88 %
- Crime Rate
- 0.00 %
from 552,678.00 £
from 1,421,010.00 £
from 1,663.00 £/mo
from 2,565.00 £/mo
from 3.61 %
from 0.00 %
Agent Activity
Andrew Kingsley created the listing.
Nearby Schools
| Name | Type | Ofsted | Distance |
|---|---|---|---|
| Churchfields Primary School | Academy Converter | 0.52 KM | |
| Marian Vian Primary School | Academy Converter | Good | 0.71 KM |
| Balgowan Primary School | Academy Converter | Good | 0.83 KM |
| Eden Park High School | Free Schools | 1.03 KM | |
| Monks Orchard Primary School | Academy Converter | 1.14 KM |
Images
Nearby Streets
| Name | Average Price | Average Sqft | Distance |
|---|---|---|---|
| Priory Close | £ 625,000 | 0 | 0.00 KM |
| Chaffinch Road | £ 700,000 | 0 | 0.00 KM |
| Ash Tree Close | £ 725,000 | 0 | 0.00 KM |
| Garden Road | £ 750,000 | 0 | 0.00 KM |
| Grace Mews | £ 0 | 0 | 0.00 KM |
Nearby Transport
| Name | NLC | TLC | Distance |
|---|---|---|---|
| Elmers End | 5049 | ELE | 0.52 KM |
| Clock House | 5048 | CLK | 1.00 KM |
| Birkbeck | 5401 | BIK | 1.17 KM |
| Kent House | 5080 | KTH | 1.25 KM |
| New Beckenham | 5058 | NBC | 2.09 KM |
Nearby Listings
| Address | Price | Type | Score | Distance |
|---|---|---|---|---|
| Clock House Road, Beckenham, London, BR3 | £ 655,000 | BUY | 8 / 10 | 0.00 KM |
| Clock House Road, Beckenham, BR3 | £ 620,000 | BUY | 6 / 10 | 0.07 KM |
| Clock House Road, Beckenham | £ 695,000 | BUY | 7 / 10 | 0.14 KM |
| Clock House Road, Beckenham, Kent | £ 495,000 | BUY | Unknown | 0.19 KM |
| Forster Road, Beckenham, BR3 | £ 700,000 | BUY | Unknown | 0.20 KM |
Nearby Properties
| Address | Price | Distance |
|---|---|---|
| 220 Clock House Road | £ 335,000 | 0.00 KM |
| 194 Clock House Road | £ 520,000 | 0.00 KM |
| 190 Clock House Road | £ 470,000 | 0.00 KM |
| 206 Clock House Road | £ 311,000 | 0.00 KM |
| 188 Clock House Road | £ 520,000 | 0.00 KM |