Trinity House Main Door, 31 Lynedoch Street, Park, G3 6EF
By Corum
£ 295,000
Reviews
2 out of 5 stars
Corum says ..
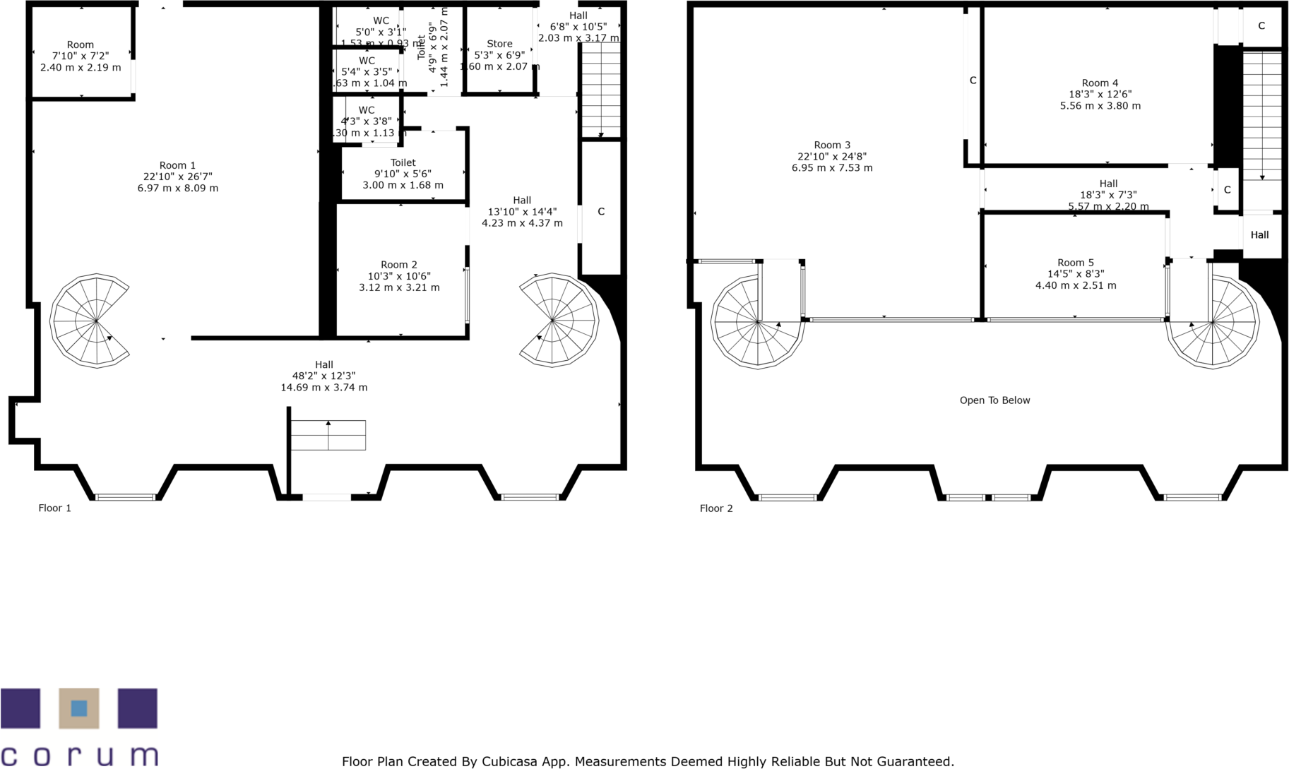
An outstanding, main door property, currently used as office space with residential conversion potential, subject to necessary consents.
Property Oracle says ..
This ground floor flat is located in the Park area of Glasgow City. The property is situated in a central location with good access to transportation. However, the interior photos suggest that the property is in need of renovation. The carpets appear worn, and the overall decor seems dated. The kitchen and bathroom, while functional, could benefit from modernization. The property has no garden or significant land associated with it. The list price of £295,000 seems relatively high considering the need for renovation.
Therefore, we give this property 4 / 10. *Disclaimer: This is our option and does constitute a recommendation or financial advice. Do your own research. *
- Price
- 6
- Condition
- 4
- Location
- 7
- Land
- 1
- Bedrooms
- 0
- Bathrooms
- 0
The heatmap indicates the level of crime in the area. The color of the heatmap indicates the crime severity and recency.
Metrics Year-on-Year
- Average area value
- 235,300.00 £Decreased by 27.76 %
- Average area rental value
- 1,777.00 £/moDecreased by 8.12 %
- Est rental Yield
- 9.06 %Increased by 27.07 %
- Crime Rate
- 0.00 %
Agent Activity
Corum created the listing.
Images
Nearby Streets
| Name | Average Price | Average Sqft | Distance |
|---|---|---|---|
| Lynedoch Terrace | £ 0 | 0 | 0.00 KM |
| Woodside Terrace | £ 0 | 0 | 0.00 KM |
| Somerset Place Meuse | £ 0 | 0 | 0.00 KM |
| Claremont Pass | £ 0 | 0 | 0.00 KM |
| Newton Terrace | £ 215,000 | 0 | 0.00 KM |
Nearby Transport
| Name | NLC | TLC | Distance |
|---|---|---|---|
| Charing Cross (Glasgow) | 9911 | CHC | 0.78 KM |
| Anderston | 9965 | AND | 1.08 KM |
| Exhibition Centre (Glasgow) | 9914 | EXG | 1.13 KM |
| Glasgow Central | 9813 | GLC | 2.23 KM |
| Glasgow Queen Street | 9950 | GLQ | 2.79 KM |
Nearby Listings
| Address | Price | Type | Score | Distance |
|---|---|---|---|---|
| Trinity House Main Door, 31 Lynedoch Street, Park, G3 6EF | £ 295,000 | BUY | 4 / 10 | 0.00 KM |
| Lynedoch Street, Park District | £ 239,000 | BUY | 5 / 10 | 0.02 KM |
| Flat 11, 35 Lynedoch Street, Park, G3 6AA | £ 220,000 | BUY | 5 / 10 | 0.02 KM |
| Lynedoch Street, Park, Glasgow | £ 229,000 | BUY | 6 / 10 | 0.02 KM |
| Lynedoch Street, Park, Glasgow | £ 195,000 | BUY | 7 / 10 | 0.02 KM |