Northwood Street, Birmingham, B3 1
By Centrick New Homes
£ 425,000
Reviews
3 out of 5 stars
Centrick New Homes says ..
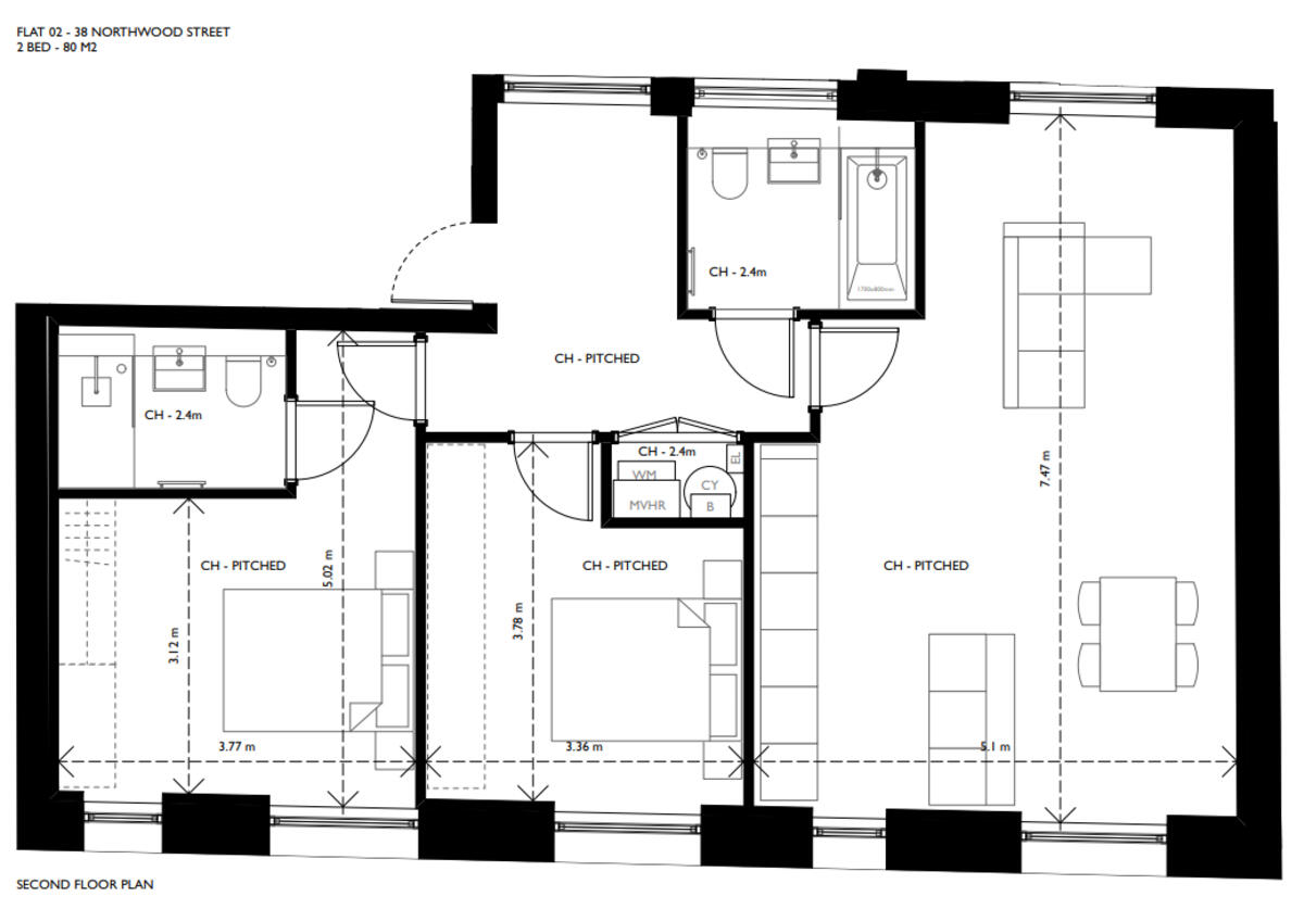
A TWO BEDROOM apartment full of CHARACTER features throughout, benefitting from exposed brick work. The modern finish throughout offers a STYLISH and MODERN space for buyers
Property Oracle says ..
This two-bedroom, two-bathroom apartment in Birmingham’s Jewellery Quarter presents a modern, stylish living space. The property benefits from a desirable location within easy reach of excellent transport links, good schools and city amenities. The interior boasts a high-quality finish, incorporating exposed brickwork that adds to its character and charm. The open-plan layout and modern kitchen suggest contemporary comfort. However, the lack of outdoor space is a notable consideration. The absence of plot size data in the provided listings makes a precise per sqft price comparison difficult but prices of similar properties in the area seem to support the asking price. The property would be ideal for professionals or couples looking for a stylish and well-located home in the city centre.
Therefore, we give this property 6 / 10. *Disclaimer: This is our option and does constitute a recommendation or financial advice. Do your own research. *
- Price
- 7
- Condition
- 9
- Location
- 8
- Land
- 1
- Bedrooms
- 2
- Bathrooms
- 2
- Sqft (est)
- 861.11
The heatmap indicates the level of crime in the area. The color of the heatmap indicates the crime severity and recency.
Metrics Year-on-Year
- Average area value
- 223,188.00 £Decreased by 13.36 %
- Est sale value
- 270,388.54 £Decreased by 2.48 %
- Average area rental value
- 1,283.00 £/moIncreased by 2.15 %
- Est letting value
- 861.11 £/moUnchanged by 0.00 %
- Est rental Yield
- 6.90 %Increased by 17.95 %
- Crime Rate
- 3.00 %Unchanged by 0.00 %
Agent Activity
Centrick New Homes created the listing.
Nearby Schools
| Name | Type | Ofsted | Distance |
|---|---|---|---|
| Arc Oakbridge School | Other Independent Special School | Good | 0.38 KM |
| Titan St Georges Academy | Free Schools Alternative Provision | Good | 0.43 KM |
| St George'S Church Of England Academy, Newtown | Academy Sponsor Led | Good | 0.53 KM |
| University College Birmingham | Higher Education Institutions | Good | 0.56 KM |
| Brearley Nursery School | Local Authority Nursery School | Outstanding | 0.84 KM |
Images
Nearby Streets
| Name | Average Price | Average Sqft | Distance |
|---|---|---|---|
| Great Hampton Row | £ 0 | 0 | 0.00 KM |
| Harford Street | £ 0 | 0 | 0.00 KM |
| Holland Street | £ 0 | 0 | 0.00 KM |
| Queensway | £ 0 | 0 | 0.00 KM |
| Golden Square | £ 0 | 0 | 0.00 KM |
Nearby Transport
| Name | NLC | TLC | Distance |
|---|---|---|---|
| Jewellery Quarter | 1097 | JEQ | 0.80 KM |
| Birmingham Snow Hill | 1006 | BSW | 0.90 KM |
| Birmingham New Street | 1127 | BHM | 1.22 KM |
| Birmingham Moor Street | 4515 | BMO | 1.77 KM |
| Five Ways | 4503 | FWY | 1.90 KM |
Nearby Listings
| Address | Price | Type | Score | Distance |
|---|---|---|---|---|
| Northwood Street, Birmingham, B3 | £ 295,000 | BUY | 6 / 10 | 0.01 KM |
| The Pressworks, 34-44 Northwood Street, Birmingham, B3 | £ 225,000 | BUY | 6 / 10 | 0.01 KM |
| Northwood Street, Birmingham, B3 | £ 295,000 | BUY | 6 / 10 | 0.01 KM |
| The Pressworks, Northwood Street, Birmingham, B3 | £ 415,000 | BUY | 7 / 10 | 0.01 KM |
| The Pressworks, Northwood Street, Birmingham, B3 | £ 399,995 | BUY | 6 / 10 | 0.01 KM |
Nearby Properties
| Address | Price | Distance |
|---|---|---|
| 27a Northwood Street | £ 135,500 | 0.04 KM |
| 25b Northwood Street | £ 136,500 | 0.04 KM |
| 29a Northwood Street | £ 189,500 | 0.04 KM |
| 29b Northwood Street | £ 125,000 | 0.04 KM |
| 27f Northwood Street | £ 155,000 | 0.04 KM |